15 Dixon Drive, Dumbarton, West Dunbartonshire, G82 4AP
Property Description
Main door Upper Conversion of a grand Victorian villa in the admired conservation area of Kirktonhill. Superbly upgraded by our client over the last five years and with views to the River Clyde and with its own, large, garden and a garage.
- Superbly presented Upper Conversion
- Private entranceway with Entrance Porch
- Reception Hall
- Sizeable Lounge with Clyde views
- High quality (2022) Kitchen
- 3 Bedrooms (two with Clyde views)
- Renewed (2020) luxury Shower Room
- Renewed sash and casement double glazed windows
- Gas central heating with Baxi combination boiler
- Beautiful, and sizable, private garden
- Single garage
- In the highly admired Kirktonhill conservation district
- Nearby the wonderful Levengrove Park
This is a very special home and a most successful Upper Conversion of this handsome Victorian detached villa. Entered from Dixon Drive via a sweeping gravel driveway the property has its own garage, its own area of garden (large, level, and very nicely planted/set), and its own private entrance door (access via staircase set to the rear of the house).
It affords some wonderful views southeasterly (from lounge, bedroom 1, bedroom 3) over the River Clyde and beyond to the Renfrewshire hills. Our client, who has owned the property since 2019, has upgraded, and invested considerably, since to make the superb home presented here.
Improvements include - kitchen; shower room; traditionally styled and double-glazed sash and casement windows; a new gas central heating system with combination boiler and radiators including some traditionally styled “column” radiators; the ‘dipping and stripping’ of the original Victorian doors; complete redecoration throughout; tending and improvement of its lovely garden.
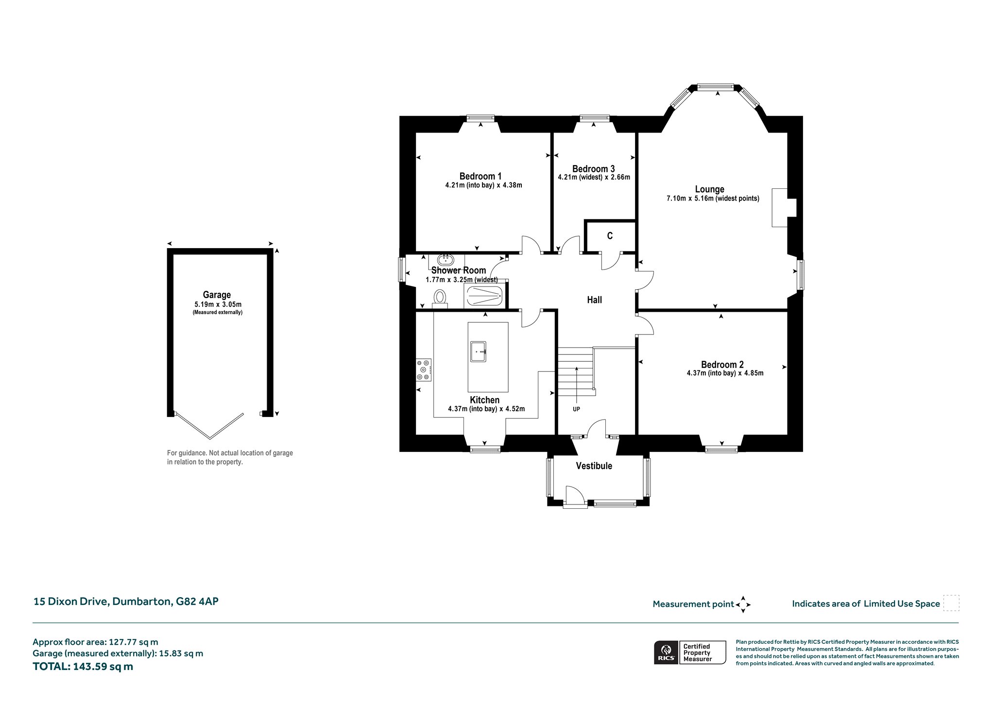
Accommodation
- Entrance Porch - accessed via a staircase to the rear of building through a very smart, new, composite door. Terrazzo tiled floor. Glass door and screens to reception hall.
- Reception Hall – a fine space with a seven-step stair from the entrance porch. Original cornicing. Oak floor. Cupboard.
- Lounge - this is a wonderful room of fine proportions with a bay window to the front viewing southeasterly with a further window to the side looking westerly. Original marble fireplace with a living flame gas fire inset. Gorgeous oak herringbone floor with central carpet well. Intricate Victorian cornicing and centre rose.
- Kitchen - renewed in 2022 by Wren kitchens and most tastefully done. The centre island has a solid composite worktop with semi inset “Belfast” sink. Other work surfaces are in a laminate style walnut strip. Appliances include - dishwasher, Smeg range cooker (6 gas hobs), cooker hood, washing machine.
- Bedroom 1 - large main bedroom with great view. Cornicing.
- Bedroom 2 another large double bedroom with window to the rear(northerly). A simpler ceiling cornice here.
- Bedroom 3 - single room, used as an office. Window to front with the view. Cornice.
- Shower Room - renewed in 2020 and beautifully done/designed. Includes a large “wet zone” shower enclosure with powerful thermostatic shower with both deluge and hand shower heads. Lovely vanity cabinet with curved corners and single-piece basin and top. Side window to the east.
Garden
The private garden is a fantastic space, is level, and lies mainly to grass. At the rear garden, and to Dixon Drive, are two stone walls and two privet hedges to provide privacy and the boundary. Drying green here. The side garden is laid with type-1 gravel upon which is a timber garden shed and to the side a stocked shrub bed.
The main area of garden to the southern side of the house is rather sizable, lies to grass, with a boundary wall to the east, a wall and hedge to the south, and a hedge and fence to the west side. Nicely planted including some trees. Sun patio.
Situation
Dumbarton was once the ancient capital of the Kingdom of Strathclyde and dates to the 5th Century. Dumbarton Rock and its Castle are the town’s landmark with the rock a two peak volcanic plug set at the confluence of the River Clyde and the River Leven. Historically, the Castle was where Mary Queen of Scots set off as a child to France in 1548.
Dumbarton was famed both for whisky and for ship building and indeed it was two ship building families who gifted the wonderful Levengrove Park to the folk of the town. The world-famous Clipper, the Cutty Sark, so now finally featured in dry dock at Greenwich was built in Dumbarton in 1869 by the Scott Linton Yard.
Dumbarton is still a bustling town with a very strong sense of community. It sits on the banks of the River Clyde but is just over 5 miles from the beautiful expanses of Loch Lomond and the stunning peaks that surround it. It has extensive local services and facilities and an excellent selection of shops, including the St James Retail Park. It provides a first-class base to commute to Glasgow City and indeed further afield with the A82 providing an easy 19-mile commute to Glasgow Centre. Glasgow Airport is only 13 miles away, over the Erskine Bridge. There are three Railway Stations in the town providing regular and speedy links on the North Clyde Line into Glasgow’s Queen Street Station as well as services through to Edinburgh Waverley and westbound to the coastal town of Helensburgh. Leisure interests are well catered for with Sandpoint Marina on the River Leven and a short drive away, at Balloch, magnificent Loch Lomond. For golfers there are excellent courses at Cardross and the Carrick (on Loch Lomond) along with the world-renowned Loch Lomond golf Club at Luss. Cameron House Hotel and Spa, with its private leisure club is but a ten-minute drive away. Walks, both low level and high, abound with miles of national cycle routes readily accessible
sat NAV ref: G82 4AP
TENURE : FREEHOLD
EPC : BAND D
COUNCIL TAX : BAND E
More Details
Situation: Private Garden
Council Tax Band: E
Tenure: Freehold
Your home may be repossessed if you do not keep up repayments on your mortgage. There may be a fee for mortgage advice. The actual amount you pay will depend upon your circumstances.
Similar Properties
Looking To Sell Or Let?
Rettie is one of the most trusted and well-respected names in property. Our unrivalled market knowledge helps people from around the world buy, sell, let and develop property in Scotland and the North East of England - from city apartments and rural cottages to large townhouses and prime country homes, farms and estates. We deal with some of the most prestigious properties on the market, but provide the same exceptional standards of service and value for money to all our clients.
