Offers Over £270,000
Semi Detached House
3 Bedrooms
1 Bathroom
2 Reception Rooms
Private Garden
Garage
Off Street Parking
Property Description
- Three bedroomed semi-detached villa
- Located in hugely popular pocket of Milngavie
- Part of quiet residential cul-de-sac to the foot of Craigmaddie Reservoir
- Modernisation required, superb potential
- Off street driveway parking and detached garage
- Beautifully arranged rear garden
- Milngavie Primary/Douglas Academy catchment
Situated amidst a peaceful, family friendly cul-de-sac to the north of Milngavie Village is No.36 Roselea Drive - a lovely example of the consistently popular semi-detached villas constructed by John Lawrence in the 1960s. The property enjoys a particularly tranquil/private position to the foot of the Craigmaddie Reservoir yet is placed under a mile from the amenity rich Village centre – a perfect marriage of peace, quiet and convenience.
The property itself has been well maintained across the duration of our client’s ownership yet affords the successful bidder plenty scope to redecorate/remodel according to budget and personal requirements. Potential also to extend to both side and rear elevations (permissions/warrants should be sought from the local authority). Despite any required modernisations, this is one of those homes with a really lovely feel and atmosphere.
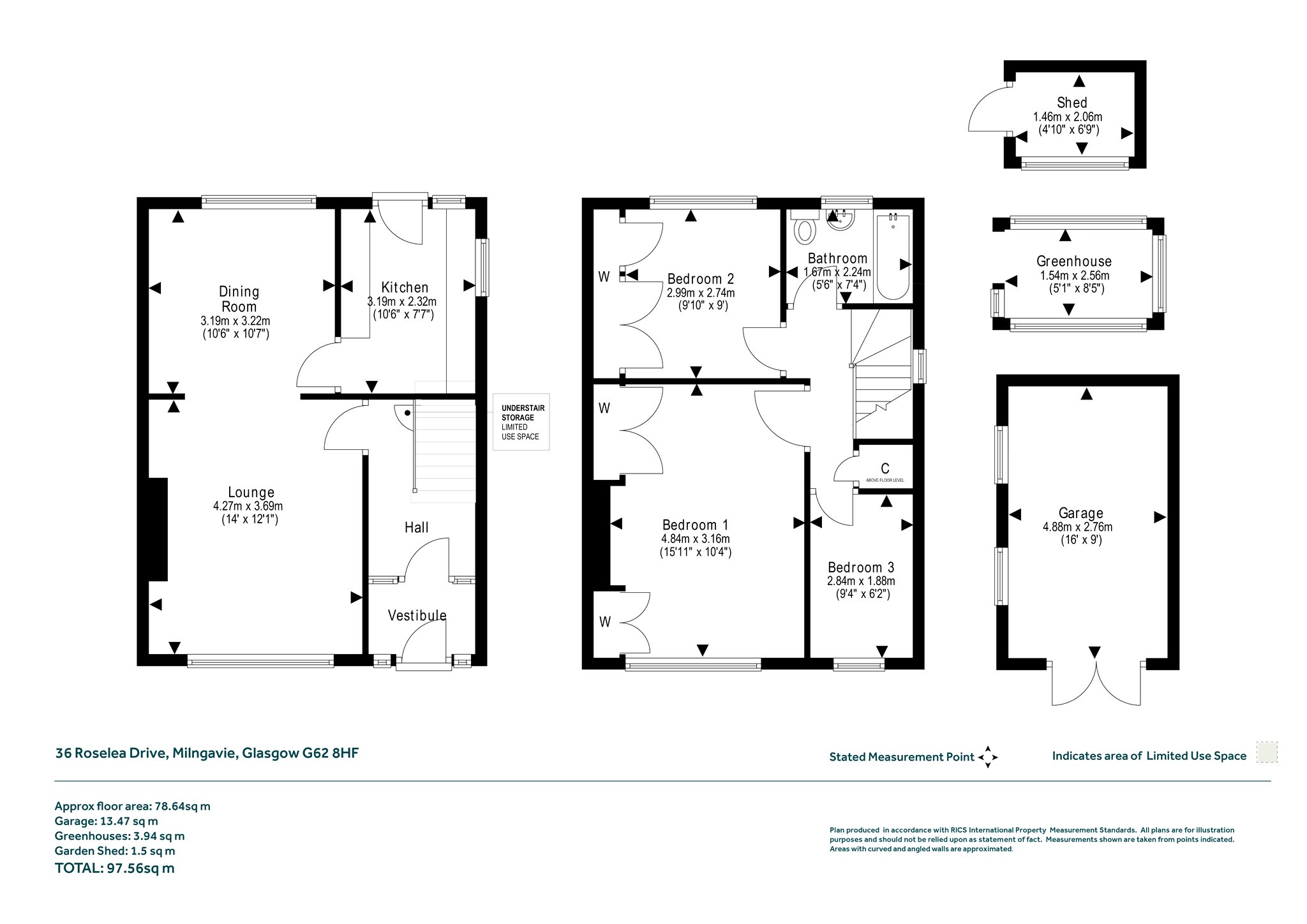
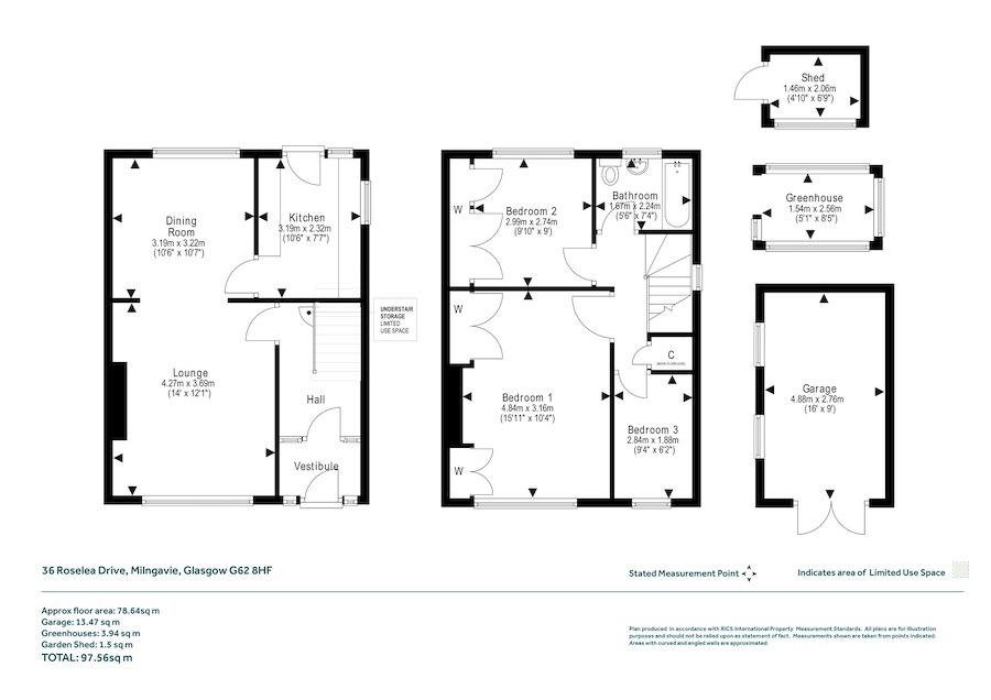
Our suite of HDR images, 360° immersive tour, HD video and floorplan will allow for thorough desktop appraisal of the property, with a summary of the accommodation to be found as follows:-
Summary of Accommodation
- Reception hallway with staircase to first floor
- Lounge
- Dining Room
- Kitchen
- Family Bathroom
- Three Bedrooms (Two doubles and additional single room)
The property features good garden space to rear, with sections of lawn and hard landscaping combining to great effect. Lovely aspects towards a mature tree line and the verges of Craigmaddie Reservoir.
Situation
The property is well positioned for access into Milngavie centre with its numerous retail options, train station and larger supermarkets. The reservoir is located directly behind Roselea Drive which is excellent for leisure activities and Mugdock Country Park is close by along with the West Highland Way.
Sat Nav Ref: G62 8hf
EPC : BAND D
COUNCIL TAX : BAND E
TENURE : FREEHOLD
More Details
Situation: Private Garden
Council Tax Band: E
Tenure: Freehold
Your home may be repossessed if you do not keep up repayments on your mortgage. There may be a fee for mortgage advice. The actual amount you pay will depend upon your circumstances.
Similar Properties
Looking To Sell Or Let?
Rettie is one of the most trusted and well-respected names in property. Our unrivalled market knowledge helps people from around the world buy, sell, let and develop property in Scotland and the North East of England - from city apartments and rural cottages to large townhouses and prime country homes, farms and estates. We deal with some of the most prestigious properties on the market, but provide the same exceptional standards of service and value for money to all our clients.
