82 Crawford Road, Milngavie, G62 7LF

Milngavie, G62 7LF
Sold
Pin View on map

Offers Over £410,000

House

Detached House

Bed

3 Bedrooms

Bathroom

2 Bathrooms

Reception

3 Reception Rooms

Tree

Private Garden

Garage

Garage

Parking

Off Street Parking

Telephone

Property Description

  • Detached three/four bedroomed villa by John Russell
  • Constructed post war in popular ‘Argyll’ style
  • Set upon sizeable corner plot in Milngavie’s Clober district
  • Great room sizes, six principal apartments (plus conservatory and breakfasting kitchen), floor space of approx. 1,420 ft²
  • Very well kept, room to redesign/extend according to taste
  • Off street driveway parking and attached garage
  • Douglas Academy catchment

An early post-war Detached House, by John Russell, in a desirable Milngavie location and set upon a wonderful garden plot that backs directly onto the fairways of Clober Golf Course. John Russell built some of Milngavie’s, and Bearsden’s, most admired family homes and the ‘Argyll’ model has proved to be a particularly popular house type for growing/established families.

Here, No.82 Crawford Road is a particularly fine example of its kind, offering a notably adaptable footprint across the six principal apartments (could be utilised as three bedrooms/three public or two/four) plus a breakfasting kitchen and the addition of a good quality conservatory. Across the duration of our client’s ownership the property has been very well maintained, with the successful bidding party afforded exciting scope to redesign/redecorate according to taste/budget.

Given the size/topography of the plot, there is significant potential for extension (subject to necessary permissions/warrants from the local authority). That said, the configuration/proportion of the ‘Argyll’ will be more than sufficient for most growing/established families.
In all, a hugely impressive family home and a property notable for its wonderfully private/leafy position on the cusp of Allander Park/Drumclog Moor.
A must for those looking for their ‘forever home’

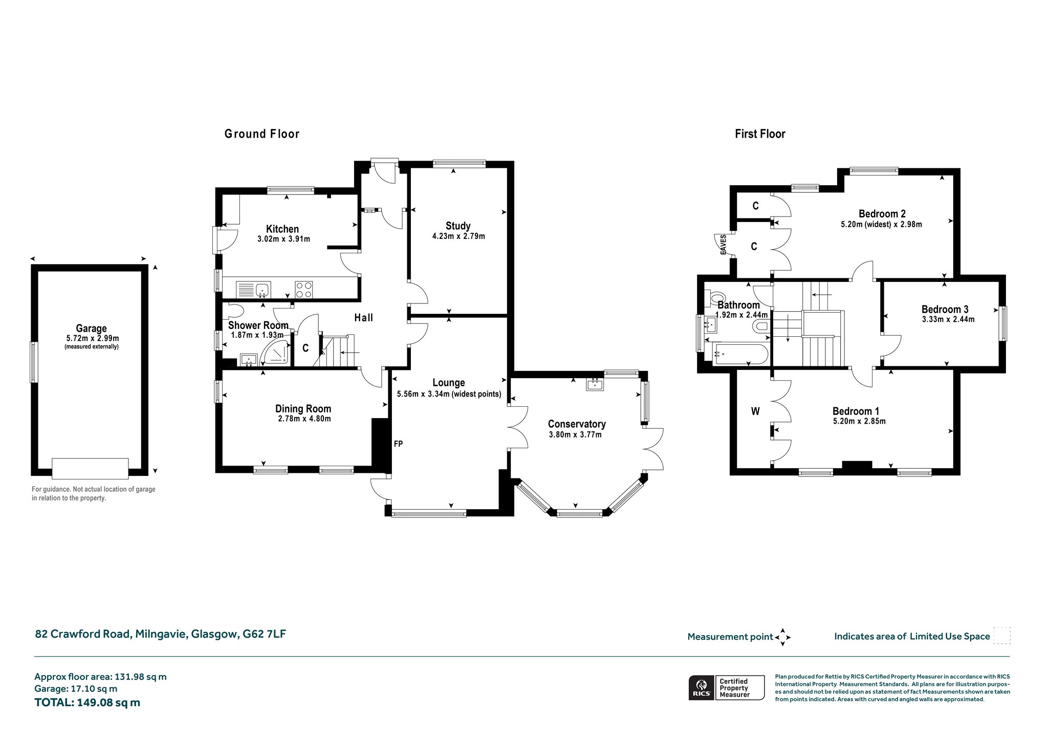
Summary of Accommodation

  • Entrance vestibule
  • ‘L’ shaped reception hallway with staircase to first floor, storage off
  • Large lounge
  • Formal dining room
  • Study/additional sitting room/Bed 4
  • Conservatory
  • Breakfasting kitchen
  • Shower room
  • Three
  • piece family bathroom
  • Three first floor bedrooms – two good doubles and additional single room

The property is set upon a large, mature garden plot notable for its privacy, expanse of lawn and pockets of hard landscaping for outdoor furniture/entertaining.
A home that only first hand inspection will do justice

Situation

The property lies adjacent of Clober Golf Course and is nearby Allander Park through which there are wonderful walks taking you to Drumclog Moor and further on to the expanses of Mugdock Country Park. The village centre is an easy walk of less than one mile and here its pedestrianised precinct has an excellent cross-section of shops and amenities. School catchment is for Milngavie Primary and the high-performing Douglas Academy. Milngavie also has an Early Years Learning Centre. Its railway station at the easterly end of the precinct provides regular services to Glasgow’s West End and City Centre.
SAT NAV REF: G62 7LF

TENURE : FREEHOLD
EPC : BAND D
COUNCIL TAX : BAND G

More Details

Situation: Private Garden
Council Tax Band: G
Tenure: Freehold

Contact Us

Siobhan Cox

Siobhan Cox

Director
Karen Lochead CeMAP

Karen Lochead CeMAP

Mortgage & Protection Advisor
Mortgage Calculator
Monthly payments
Please set an interest rate.

Your home may be repossessed if you do not keep up repayments on your mortgage. There may be a fee for mortgage advice. The actual amount you pay will depend upon your circumstances.

Tax Calculator
LBTT calculator for properties purchased in Scotland. Stamp Duty calculator for properties purchased in England.
Land & buildings transaction tax (LBTT)
= £0
New build house with stone and timber cladding

Looking To Sell Or Let?

Rettie is one of the most trusted and well-respected names in property. Our unrivalled market knowledge helps people from around the world buy, sell, let and develop property in Scotland and the North East of England - from city apartments and rural cottages to large townhouses and prime country homes, farms and estates. We deal with some of the most prestigious properties on the market, but provide the same exceptional standards of service and value for money to all our clients.