25 Glenbervie Place, Summerston, Glasgow, G23 5QF
Property Description
Built in 2017 by Turnberry Homes and part of their small, cul-de-sac, Willow Grove development is this instantly engaging 3 bedroom End Terraced Villa with a garden larger than most. One of only 26 properties it represents a great home for individuals, couples, and young families.
Its position in the terrace provides for a rear garden with a west facing orientation but one that also offers a south facing aspect too (ideal to capture the sun) and with an open outlook over the playing fields of St Blane’s Primary School.
The house is very smartly designed, finished in render and stone with uPVC framed double glazed windows and doors (front door, rear patio doors). Central heating is gas with a combination boiler (Vaillant Home Combi 30) under a maintenance contract with Scottish Gas and which is controlled by a Hive system. Spec includes a contemporary designed kitchen and sanitary ware to both the bathroom and the ground floor WC.
The house is a few minutes walk from the Summerston shopping centre (Asda, Home Bargains, and others) and a little further on to the facilities of Maryhill. Via pathways, Summerston railway station is within easy reach and a further ½ mile from this to to Maryhill railway station. School catchment is Parkview Primary, St Blane’s Primary, Hyndland Secondary, and John Paul Academy. Green spaces are nearby with Maryhill Park and Dawsholm Park by which runs both the River Kelvin and the Forth and Clyde Canal.
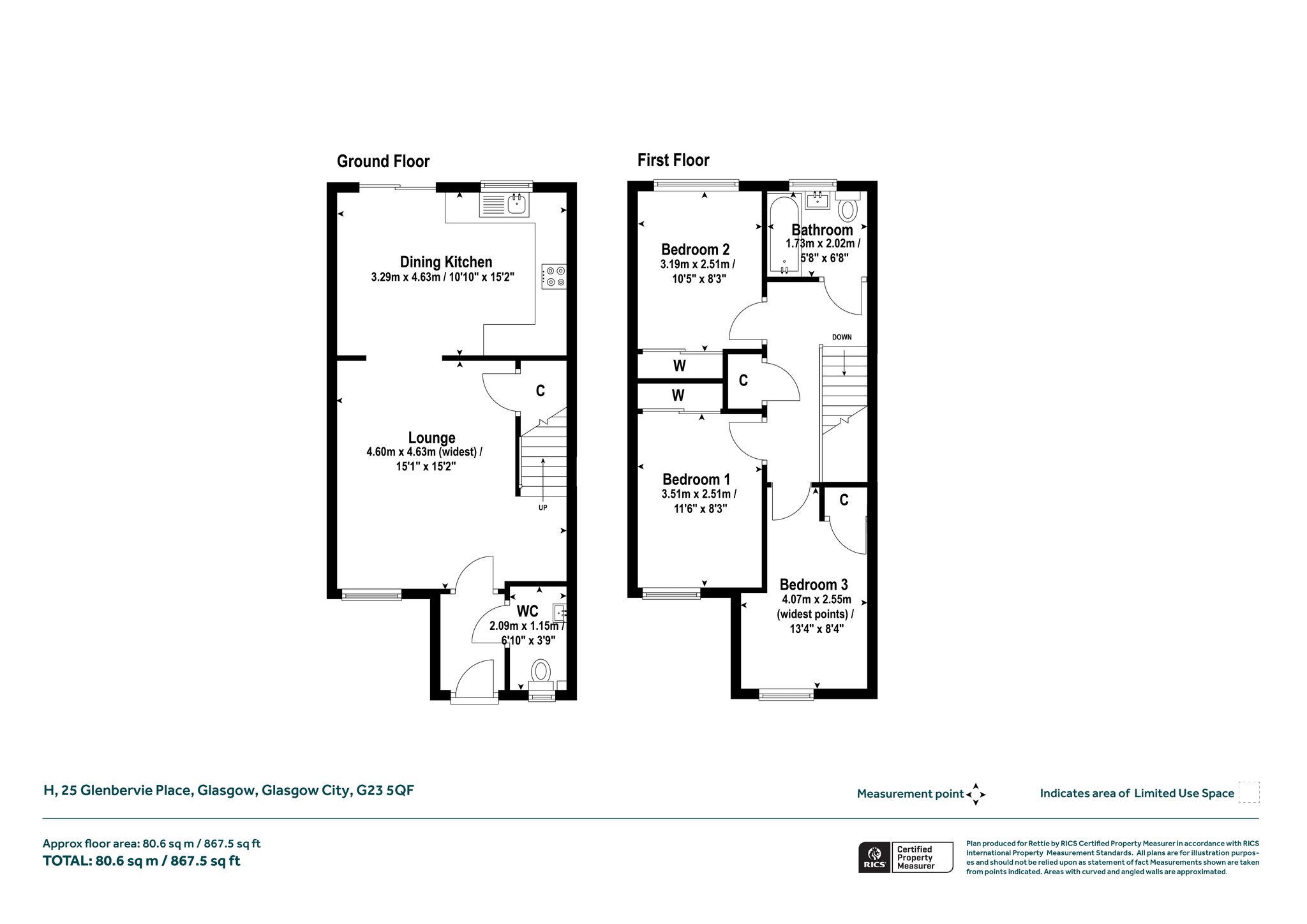
Accommodation
- Entrance vestibule
- WC
- Lounge
- Dining kitchen (with patio doors to garden). The kitchen units are in matte white, have granite style tops and upstands, and has appliances of gas hob, cooker hood, and double oven with grill.
- 3 bedrooms
- Bathroom with over bath shower(electric)
- Gas CH & double glazing
- Attractive, enclosed, rear garden including two sun decks. Water tap and four external power points. Being end terraced there is a side garden too, with gate, and the property has an allocated parking space to the front cul-de-sac.
More Details
EPC: C
Council Tax: D
Tenure: Freehold
Your home may be repossessed if you do not keep up repayments on your mortgage. There may be a fee for mortgage advice. The actual amount you pay will depend upon your circumstances.
Similar Properties
Looking To Sell Or Let?
Rettie is one of the most trusted and well-respected names in property. Our unrivalled market knowledge helps people from around the world buy, sell, let and develop property in Scotland and the North East of England - from city apartments and rural cottages to large townhouses and prime country homes, farms and estates. We deal with some of the most prestigious properties on the market, but provide the same exceptional standards of service and value for money to all our clients.
