76 Crawford Road, Milngavie, G62 7LF

Milngavie, G62 7LF
Under Offer
Pin View on map

Offers Over £295,000

House

Semi Detached House

Bed

3 Bedrooms

Bathroom

1 Bathroom

Reception

2 Reception Rooms

Tree

Private Garden

Garage

Garage

Parking

Off Street Parking

Telephone

Property Description

A very impressive, extended, 3 bedroom Semi Detached House in a much admired corner of Milngavie near Clober golf course and Allander Park with the village centre less than one mile away.

  • 2 Public Rooms
  • 3 Bedrooms
  • Fitted kitchen with range of wall and floor units
  • Bathrrom
  • Exceedingly useful floored/lined Attic Room
  • Double glazing
  • Gas central heating
  • Garage

Built some 65 years ago by the admired builder John Russell this 3 bedroom Semi Detached House is located within one of Milngavie’s most admired districts - a quiet residential road near Clober golf course and Allander Park the latter's woodland, along with some rural views, being an engaging aspect from the house.

In John Russell's original design the attic had a gable (side) window and was a large space. Our clients made the most of this by fully flooring and lining it and having a custom made fixed, open-tread, staircase installed to make this area an extremely useful attic room. All windows, and external doors, are uPVC framed double glazed only the attic Velux being timber framed. To the side of the house is an attached single garage.

It is a property that should find broad appeal from couples to families where local schooling is nearby at the both highly regarded Milngavie Primary and Douglas Academy.

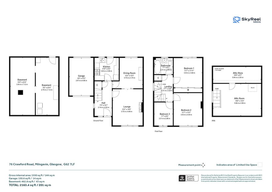
Ground Floor

  • Hall
  • Lounge - has a wide window to the front with feature Fireplace
  • Dining Room – accessed through sliding doors from the lounge it has a lovely picture window over looking the rear garden
  • Kitchen – with a range of base and wall mounted units and space for a plethora of freestanding appliances.

First Floor

  • The wide staircase ascends to the first floor landing which has a cupboard and a side (gable) window.
  • Bedroom 1 - this is a well proportioned main bedroom with a wide window to the rear Double-width wardrobe fitted.
  • Bedroom 2 - another double bedroom, front facing.
  • Bedroom 3 - single bedroom, front facing.
  • Bathroom – tiled with 3 piece suite and over bath shower

Attic

This is a great asset and a large space with both gable window and a Velux window. Fully lined, floored, and carpeted it is used as a bedroom by our clients.

Garden

The front garden is laid to lawn. Wide block-paved driveway provides off street parking for two cars and access to garage. The rear garden which has a wide, slabbed, patio running across the back of the house with steps down on to the lawn. There is a courtesy gate directly on to the moor.
A great family home.

Sat NAV ref: G62 7LF

EPC : BAND D
COUNCIL TAX : BAND F
TENURE : FREEHOLD

More Details

Situation: Private Garden
Council Tax Band: F
Tenure: Freehold

Contact Us

Siobhan Cox

Siobhan Cox

Director
Karen Lochead CeMAP

Karen Lochead CeMAP

Mortgage & Protection Advisor
Mortgage Calculator
Monthly payments
Please set an interest rate.

Your home may be repossessed if you do not keep up repayments on your mortgage.

There may be a fee for mortgage advice. The actual amount you pay will depend upon your circumstances. The fee is up to 1% but a typical fee is 0.3% of the amount borrowed.

Tax Calculator
LBTT calculator for properties purchased in Scotland. Stamp Duty calculator for properties purchased in England.
Land & buildings transaction tax (LBTT)
= £0
New build house with stone and timber cladding

Looking To Sell Or Let?

Rettie is one of the most trusted and well-respected names in property. Our unrivalled market knowledge helps people from around the world buy, sell, let and develop property in Scotland and the North East of England - from city apartments and rural cottages to large townhouses and prime country homes, farms and estates. We deal with some of the most prestigious properties on the market, but provide the same exceptional standards of service and value for money to all our clients.