Property Description
A particularly impressive two-bedroom conversion occupying a preferred first floor position within a handsome and well-maintained blonde sandstone terraced townhouse. 2 Rosslyn Terrace is an elegant ‘B’ listed building dating to circa 1872 and enjoys a peaceful tree lined position comfortably set back from Horselethill Road. Located in the highly desirable Dowanhill conservation area, this superb property is exceptionally well placed for an enviable range of amenities on Byres Road and Great Western Road together with excellent transport links and easy access to The University of Glasgow and The Botanic Gardens.
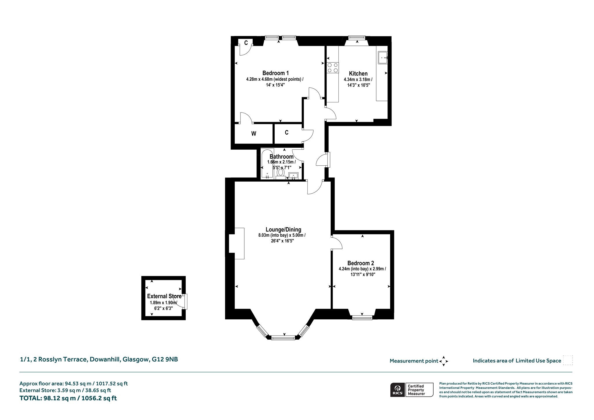
The interior retains a number of period features which blend effortlessly with impressive modern finishes. The accommodation includes an outstanding drawing room with a charming southwest facing bay window providing a pleasant outlook to the front. In addition, there is a separate modern kitchen, two spacious double bedrooms and a superb three-piece bathroom. Additional features including ornate ceiling cornice, a marble fireplace in the drawing room with period style gas fire, operational window shutters in both bedrooms, useful storage off the reception hall and ample storage in bedroom one. We would also highlight the additional, private storage off the communal entrance hall together with a charming, shared garden to the rear of the building.
Accommodation:
- Impressive communal entrance hall
- Welcoming reception hall with useful storage cupboard off
- Magnificent drawing room with south(-west) facing three section bay window, ornate ceiling cornice and marble fireplace with period style gas fire
- Modern kitchen complete with a range of base and wall units, appliances and window to the rear
- Bedroom one with two section window to the rear, ornate ceiling cornice, shelved press, overhead storage and generous fitted wardrobes
- Charming second bedroom with window to the front and ceiling cornice
- Fabulous three-piece bathroom comprising bath, over bath shower, toilet and wash hand basin
- Gas central heating with Hive control / thermostat
- Sash and case windows (double glazed units in the bay window of the lounge)
- Well-presented shared garden to the rear of the building
- Invaluable private cellar storage access from the communal entrance
- Availability of on street residents parking permit
EPC: C
Council Tax: E
Tenure : Freehold
More Details
Situation: Communal Garden
Council Tax Band: E
Tenure: Freehold
Your home may be repossessed if you do not keep up repayments on your mortgage. There may be a fee for mortgage advice. The actual amount you pay will depend upon your circumstances.
Similar Properties
Looking To Sell Or Let?
Rettie is one of the most trusted and well-respected names in property. Our unrivalled market knowledge helps people from around the world buy, sell, let and develop property in Scotland and the North East of England - from city apartments and rural cottages to large townhouses and prime country homes, farms and estates. We deal with some of the most prestigious properties on the market, but provide the same exceptional standards of service and value for money to all our clients.
