Flat 16, 102 Buccleuch Street, Garnethill, Glasgow City, G3 6NS
Offers Over £139,000
Upper Floor Apartment
1 Bedroom
1 Bathroom
1 Reception Room
570 sq.ft
Communal Garden
Off Street Parking
Property Description
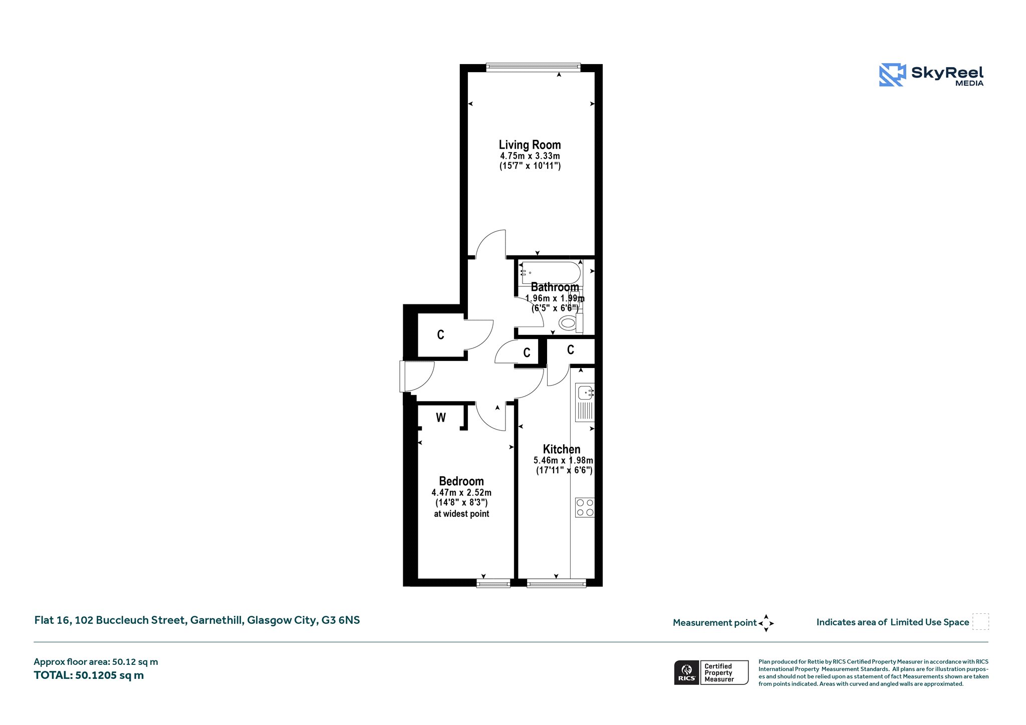
This stylish one-bedroom top floor flat is set within a modern development in Garnethill, the red brick development was completed in mid-1980’s, in an area on the west edge of the City Centre close to Glasgow West End. This popular development has attractive residents tree lined grounds and offers the significant advantage of an lockable allocated parking space and open outlook across the city skyline and beyond. The property is positioned on the fourth floor and is in walk in condition with a modern kitchen and bathroom. The Garnethill area is a few minutes’ walk from Sauchiehall Street, St Georges Cross, and Cowcaddens Underground and Glasgow School of Art, The Royal Conservatoire and Glasgow Caledonian University and Strathclyde and Glasgow University all within good proximity. Internally the property is freshly presented throughout and includes a bright and spacious living/dining room having a large double glazed picture window viewing north over West Graham Street.
Accessed via a secure entry system to communal entrance hall there are stairs to upper level, extending to 528 sq ft there is welcoming reception hall with two storage cupboards, living/dining room with large picture window providing good natural light; gallery style breakfasting kitchen with a range of modern base and wall units, integrated oven hob & hood and a cupboard off; double bedroom with fitted wardrobes; three-piece bathroom with over bath shower, white tiling and with feature mirror. The property has electric heating, replacement UPVC double glazing and a lockable allocated parking space.
Situation
Located on Buccleuch Street in Garnethill; a quiet and predominantly residential area nestled between Glasgow’s City Centre and thriving West End, only few minutes’ walk from Sauchiehall Street and Cowcaddens Underground Station. The property is conveniently located for access to the City Centre, the Merchant City, Financial Service District, Finnieston and the West End, where a wealth of amenities including both general and specialist shopping, wine bars and many highly acclaimed restaurants can be found. The property, is in close proximity to the Glasgow School of Art; Strathclyde, Caledonian & Glasgow Universities. The area benefits from frequent public transport with easy access to Cowcaddens and Buchanan Street subway stations; Queens Street and Central Train Stations. The nearby M8/M80 ensures good commuter access throughout the Central Belt and is within easy reach of some of Scotland’s most impressive countryside attractions.
Travel Directions
By car from our office on Bath Street proceed west along Bath Street turning right onto Douglas Street and right again on to Sauchiehall Street. At the junction turn left into Rose Street and then right onto Renfrew Street. Taking the left filter lane, turn left onto Cambridge Street. At the junction with West Graham Street, take the left filter lane and proceed along West Graham Street towards Great Western Road, turn second left into Garnethill Street and then right into Buccleuch Street, taking first right into the development carpark where you will find the entrance to No. 102 straight ahead at the bottom of the hill.
More Details
Situation: Communal Garden
Council Tax Band: C
Tenure: Freehold
Your home may be repossessed if you do not keep up repayments on your mortgage. There may be a fee for mortgage advice. The actual amount you pay will depend upon your circumstances.
Similar Properties
Looking To Sell Or Let?
Rettie is one of the most trusted and well-respected names in property. Our unrivalled market knowledge helps people from around the world buy, sell, let and develop property in Scotland and the North East of England - from city apartments and rural cottages to large townhouses and prime country homes, farms and estates. We deal with some of the most prestigious properties on the market, but provide the same exceptional standards of service and value for money to all our clients.

