2/1, 22 Hotspur Street, North Kelvinside, Glasgow, G20 8NN
Property Description
This particularly attractive two-bedroom second floor tenement apartment enjoys a fantastic outlook and relishes its south facing aspect, owing to its prominent position on the corner of Hotspur Street in North Kelvinside.
Sympathetic improvements by the current owners balance modern convenience with original detail; a contemporary kitchen fitted with sleek cabinetry complements well-preserved period features. Original plasterwork has been exposed and carefully restored, with the electrics and plumbing retrospectively and subtly surface-mounted to protect the property’s traditional fabric. There are two well sized double bedrooms, advantageously positioned at opposite ends of the accommodation to maximise privacy, in addition to a lovely front lounge with a gorgeous yet discreet aspect, facing onto to the park and trees opposite.
Hotspur street is very well placed to make the most of a wide array of cafes, boutiques and shops available on Queen Margaret Drive and beyond. A short walk leads you to the stunning Botanic gardens and the Children’s Wood & North Kelvin meadow, while riverside paths along the Kelvin offer miles of walking and cycling. The Kelbourne Park School is situated just moments away, with exceptional convenience and a peaceful location rounding off a superb opportunity in a fantastic West End setting.
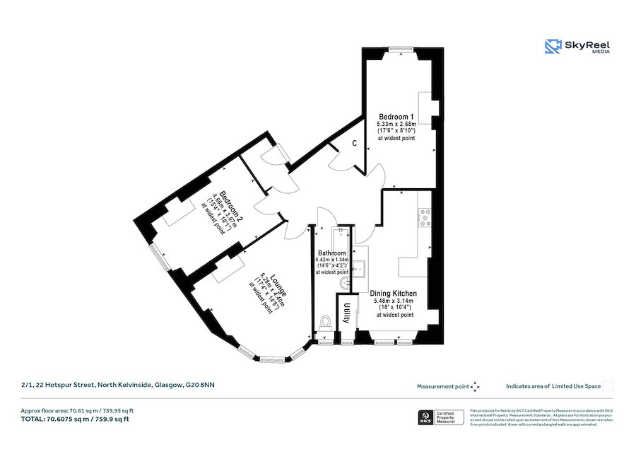
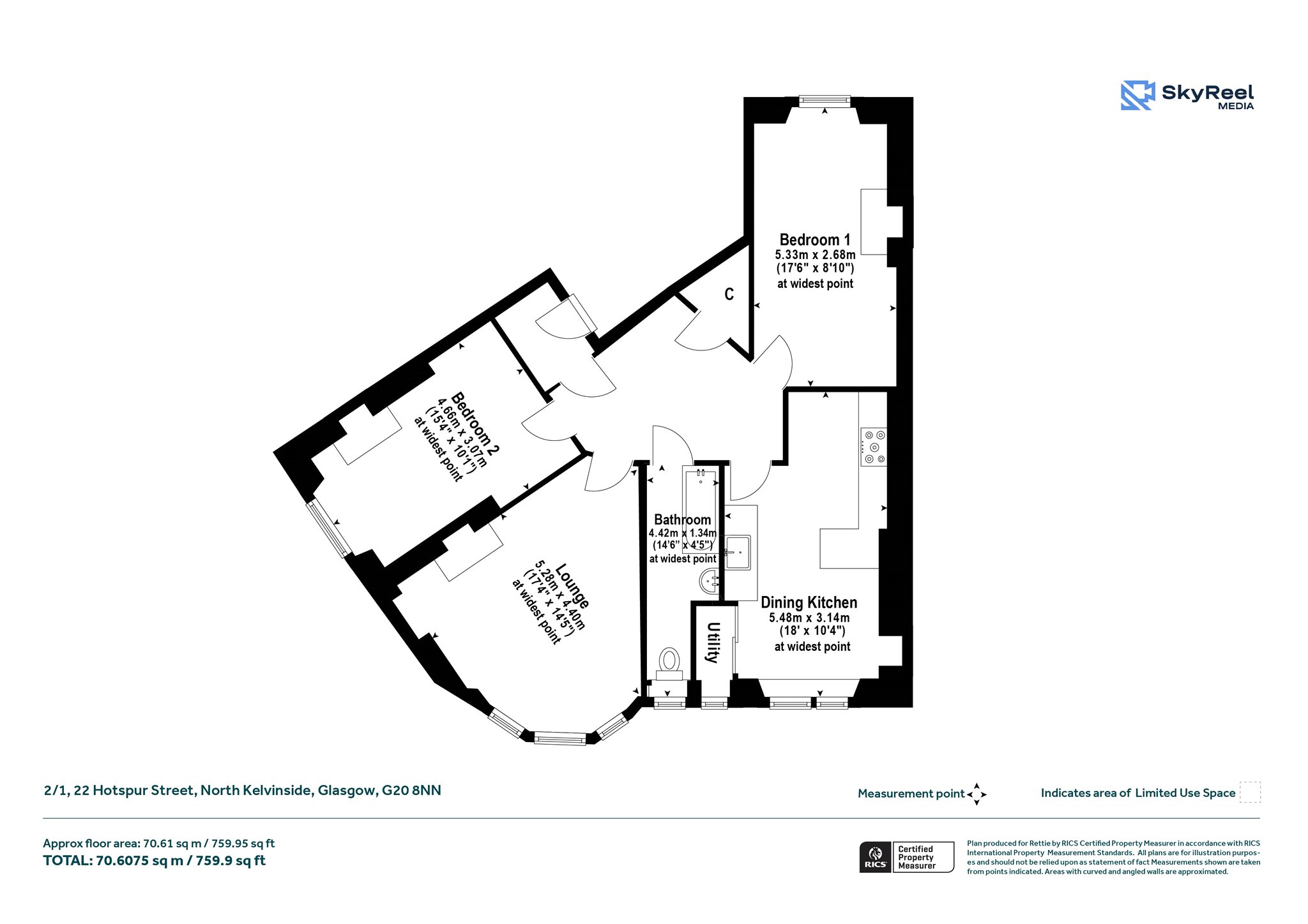
Accommodation
- Shared communal entrance.
- Welcoming triangular entrance hallway with storage off.
- Lounge with original ceiling cornice and centre rose, focal fireplace, three section bay window with exceptional natural outlook over the park opposite.
- Dining kitchen with butcher block countertops, contemporary units, ceramic “Belfast” sink, integrated appliances, breakfasting peninsula with pendant lighting, chequerboard tiled floor, bespoke joinery window seat, double window, and invaluable utility “neuk” behind sliding door.
- Main bedroom of double proportions with ceiling cornice, traditional flooring, cast iron focal fireplace and single window to the rear.
- Second bedroom is also a double room with wooden flooring, cast iron fireplace and double window to the front.
- Three piece bathroom with shower over bath and window to the front.
- Gas central heating.
- Double glazing.
- Communal garden.
- Availability of on street resident’s parking.
More Details
EPC: C
Council Tax: C
Tenure: Freehold
Your home may be repossessed if you do not keep up repayments on your mortgage.
There may be a fee for mortgage advice. The actual amount you pay will depend upon your circumstances. The fee is up to 1% but a typical fee is 0.3% of the amount borrowed.
Similar Properties
Looking To Sell Or Let?
Rettie is one of the most trusted and well-respected names in property. Our unrivalled market knowledge helps people from around the world buy, sell, let and develop property in Scotland and the North East of England - from city apartments and rural cottages to large townhouses and prime country homes, farms and estates. We deal with some of the most prestigious properties on the market, but provide the same exceptional standards of service and value for money to all our clients.
