Flat 2/1, 21 Handel Place, New Gorbals, Glasgow City, G5 0TP
Property Description
Under offer at Closing Date - Tuesday 15th July 2025.
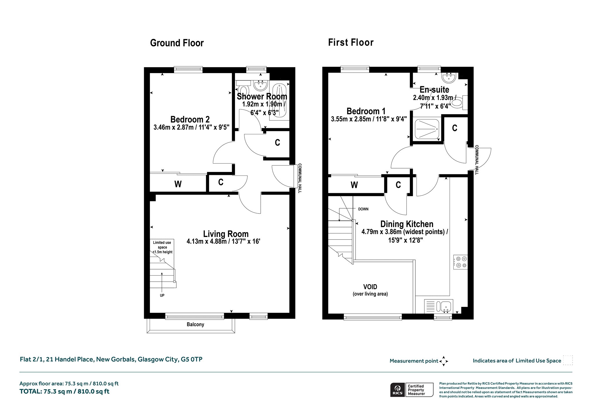
This beautifully presented two-bedroom duplex apartment is located in the desirable New Gorbals area, just south of Glasgow City Centre, offering the perfect blend of peaceful residential living with all the energy and convenience of city life just moments away. Set across the second and third floors of a modern building completed in 2002, the property offers approximately 810 sq ft of bright, well-maintained living space with private outdoor space and secure residents' facilities.
The home features an east-facing private balcony overlooking landscaped communal gardens, ideal for enjoying the morning sun streaming through the large living room window. The main living area boasts high ceilings and extends 16 feet, with a striking double-height sash window that floods the space with natural light all day. A staircase leads to the mezzanine kitchen and spacious dining area, which was refitted in 2020 to a modern standard.
Both bedrooms are comfortable doubles, complemented by a stylish main bathroom renovated in 2020 and a convenient en suite shower room. The apartment includes excellent fitted storage on both levels, gas central heating, and modern double glazing throughout. Residents benefit from secure entry and ample on-site parking included.
In addition to the well-proportioned living areas, the apartment offers excellent storage throughout. There are four deep & tall hallway cupboards, two on each floor, providing ample space for storing household items, a pantry and a separate utility cupboard adds further convenience.
This property is ideal for owner-occupiers or investors seeking a ready-to-move-in home with great rental potential.
Early viewings are highly recommended.
Situation
The New Gorbals, located just south of Glasgow City Centre, has undergone major regeneration over the past 25 years. Today, it is a vibrant and well-connected neighbourhood with a strong sense of community and an excellent balance of local amenities, green space, and urban convenience.
Residents enjoy a wide range of everyday essentials right within the Gorbals. These include a large Co-op supermarket, Crown Street retail park, Gorbals Health centre, pharmacies, local cafes and shops as well as the Gorbals Community Library. Additionally, nearby post offices also provide convenient parcel and mailing services.
For leisure, the Gorbals Glasgow Club Leisure Centre offers excellent sports and fitness facilities. Green spaces are abundant, with Gorbals New Park located directly next to the property, and Glasgow Green, the Rose Garden, and the historic Southern Necropolis all within walking distance which is perfect for relaxing or exploring the outdoors.
Transport links are excellent. Bridge Street subway station within 15 minutes on foot and regular bus routes serve the area. Glasgow Central and Queen Street train stations are both walkable in around 30 minutes. The neighbourhood also features modern, well-maintained cycle lanes, offering a safe and clean alternative for commuting or leisurely rides across the city.
The area is also well served by schools, with several primary and secondary options nearby. Notably, Blackfriars primary school is a 5 minute walk away.
With Glasgow’s ‘Style Mile’ shopping district just 1.5 miles away via a scenic walk over Albert Bridge, and close proximity to Strathclyde and Caledonian Universities, the Glasgow School of Art, the SEC, and the Clyde Auditorium, this area suits a wide range of buyers from professionals and students to families and investors.
Travel Directions
From the shopping centre on Crown Street, head southwest until you reach the junction with Alexander Crescent. Turn left into Alexander Crescent and follow the road as it curves around. At the second junction, take the second left into Handel Place. No. 21 is located approximately two-thirds of the way down on the left-hand side.
More Details
EPC: C
Council Tax Band: D
Tenure: Freehold
Your home may be repossessed if you do not keep up repayments on your mortgage. There may be a fee for mortgage advice. The actual amount you pay will depend upon your circumstances.
Similar Properties
Looking To Sell Or Let?
Rettie is one of the most trusted and well-respected names in property. Our unrivalled market knowledge helps people from around the world buy, sell, let and develop property in Scotland and the North East of England - from city apartments and rural cottages to large townhouses and prime country homes, farms and estates. We deal with some of the most prestigious properties on the market, but provide the same exceptional standards of service and value for money to all our clients.
