Flat 3/3, 98 Lancefield Quay, Finnieston, Glasgow City, G3 8JN
Property Description
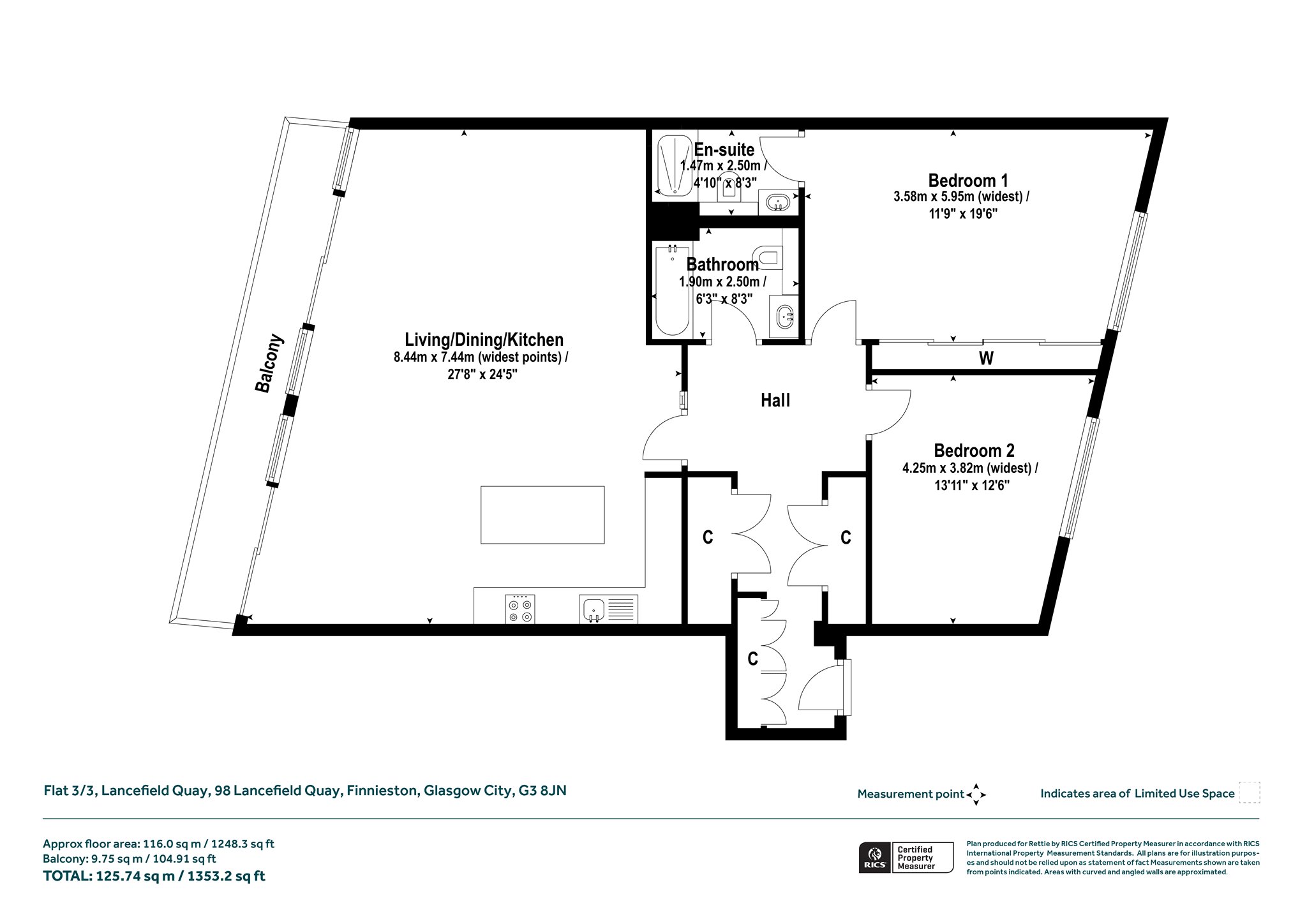
This bright, modern and very generously proportioned waterfront apartment forms part of the Lancefield Quay Development completed circa 2004. The property is one of the larger style two bedroom apartments within the development, extending to 1353 sq ft and is situated on the third floor of the southeast corner of the building, benefiting from a striking full height wall of glass spanning the living space to the private balcony, flooding the apartment with natural light and providing uninterrupted views from east, south and west over the River Clyde and wonderful sunsets over the Clyde Arc Bridge. The development is currently undergoing a comprehensive cladding remediation scheme being undertaken by the developers Miller Cala and is accepted for the Scottish Governments Single Building Assessment Scheme.
Accessed via a secure gated entrance to the communal car park and building entrance, the property benefits from a secure allocated car parking space. There are two passenger lifts and stair access to each level and the apartment comprises welcoming reception hall with excellent bespoke storage and two utility cupboards, there are two generous double bedrooms, both with fitted wardrobes and with the principal bedroom having an en suite shower room; main three-piece bathroom off the hall with white suite, mosaic tiling, concealed storage and over bath shower. There is a very generous living space extending to 27 ft and incorporating modern re-fitted kitchen, breakfasting island, ample space for dining and a wall of full height windows facing south over the River Clyde and with sliding patio door access to the balcony. The property has a well portioned balcony, an allocated parking space, gas central heating and double glazing.
The property is undergoing paid for remediation works that will ensure the building meets with current regulations for a satisfactory EWS1 Certificate. The factors and co-owners’ application for The Scottish Governments Single Building Assessment (SBA) pilot scheme has been accepted and we understand the remediation works are underway.
Situation
Lancefield Quay is situated in the widely renowned neighbourhood of Finnieston, ideally located mid-way between Glasgow City Centre and the trendy West End, there is within a short distance a fabulous selection of restaurants bars and cafes, nearby Scottish Events Campus for exhibition and conference venues, great shopping, culture and several fitness clubs. In close proximity are Glasgow’s media centre, the Universities of Glasgow, Strathclyde and Caledonian. Excellent road links, including M8, M74 and M77 motorways, are all very easily accessible as are both Exhibition Centre and Anderston Station linking to Glasgow Central railway stations.
Travel Directions
From the Clyde ‘Squinty’ Bridge, proceed east on Lancefield Quay, turning first left into Elliot Street and almost immediately left into the gated courtyard of Lancefield Quay. Once inside the courtyard carpark area, take the stairs on your left down to the building entrances where No. 98 can be seen on the far left-hand corner of the building on the southeast corner of the block.
More Details
EPC: B
Council Tax Band: G
Tenure: Freehold
Your home may be repossessed if you do not keep up repayments on your mortgage.
There may be a fee for mortgage advice. The actual amount you pay will depend upon your circumstances. The fee is up to 1% but a typical fee is 0.3% of the amount borrowed.
Similar Properties
Looking To Sell Or Let?
Rettie is one of the most trusted and well-respected names in property. Our unrivalled market knowledge helps people from around the world buy, sell, let and develop property in Scotland and the North East of England - from city apartments and rural cottages to large townhouses and prime country homes, farms and estates. We deal with some of the most prestigious properties on the market, but provide the same exceptional standards of service and value for money to all our clients.
