Flat 1/1, 110 Onslow Drive, Dennistoun, Glasgow City, G31 2PZ
Property Description
Offering a contemporary take on tenement living, this spacious two-bedroom, two-bathroom, first floor flat has lovely dual aspects over Onslow Drive and towards Onslow Square. Having an exposed sandstone wall spanning the length of the living space and micro cement finishes around the wall cabinets, it captures the essence of modern loft living. Centrally located in the popular and incredibly convenient ‘Drives' of Dennistoun, this suburb to the east of Glasgow’s City Centre is exceptionally well place to take advantage of an enviable selection of local amenities on both Duke Street and Alexandra Parade nearby and with excellent transport links.
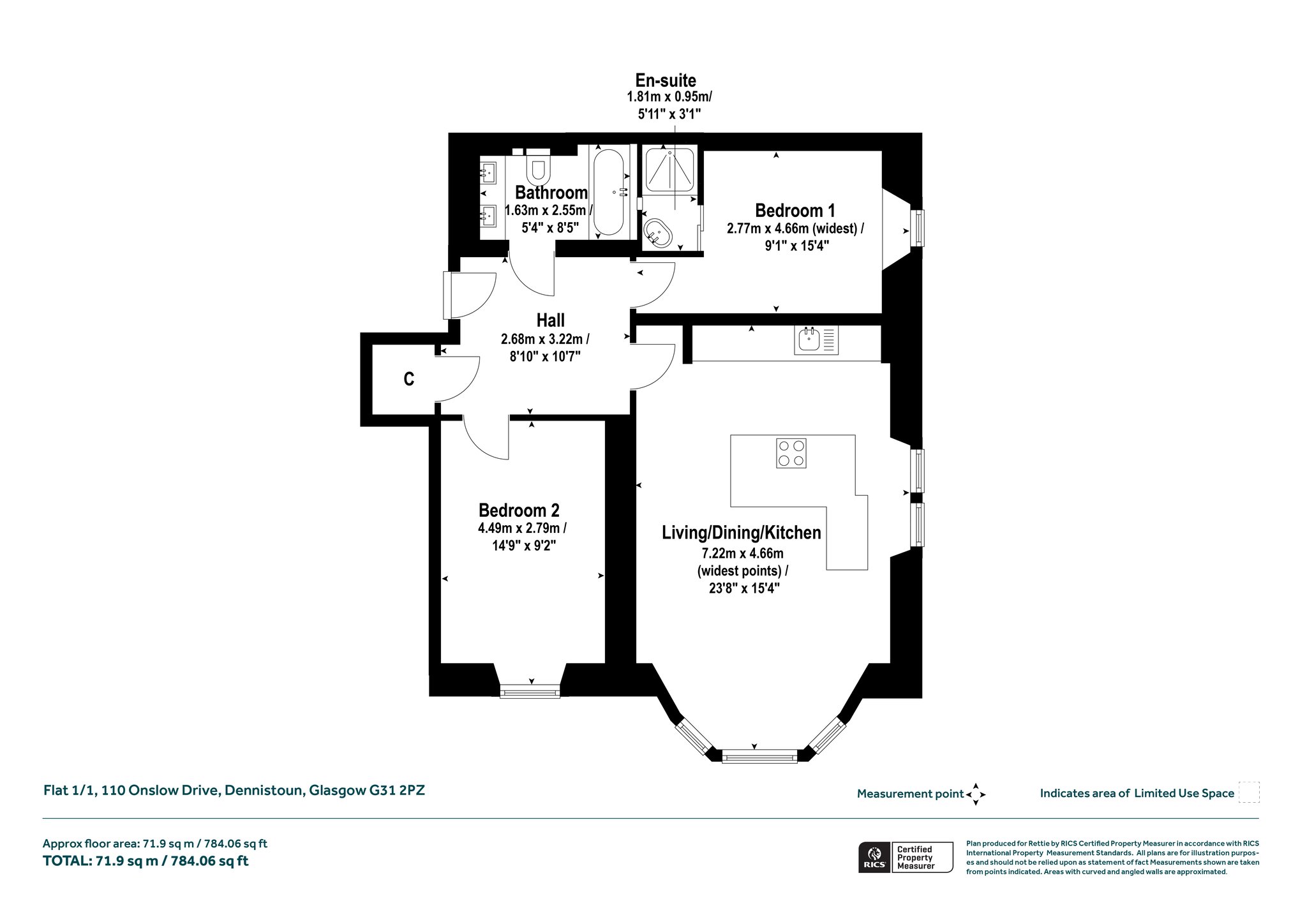
Accessed via a secure entry to communal close, there is stair access to first floor entrance and welcoming hallway with storage cupboard. The property is at the end of the tenement block and therefore has dual aspects, it has been cleverly configured to offer a generous open plan living room with feature exposed sandstone brick wall and a luxury modern kitchen area with an island and ample space for dining, there is three section bay window and two section west facing windows in-set within the feature exposed brick wall. There are two double bedrooms with the principal bedroom having an en suite shower room and a luxury modern bathroom with over bath shower. The property has dark wood-effect laminate flooring, fresh stylish décor, there is gas central heating, double glazing and free on-street parking.
Situation
The location is superb with a range of amenities and public transport links just minutes away. The property is well placed for both Duke Street and Alexandra Parade where you will find a range of popular shops, café’s, delis, restaurants and transport links from the local Duke Street train station. The property is just over a mile from the City Centre and popular Merchant City and in walking distance to both Alexandra Park offering views to Ben Lomond from its highest point and Glasgow Green Park. Early viewing recommended to appreciate the proportions and condition of this flat. A great opportunity for both families and young professionals working in the City Centre or commuting to Edinburgh.
Travel Directions
By car from our George Square, proceed east on George Street, crossing the junction at High Street into Duke Street. Continue along Duke Street for approx. 1 mile passing the junction with Belgrove Street, turn second left into Whitehill Drive. Continue north on Whitehill Drive and on the fifth junction, turn left into Onslow Drive where you will find the property almost immediately on the right-hand side.
More Details
EPC: C
Council Tax Band: B
Tenure: Freehold
Your home may be repossessed if you do not keep up repayments on your mortgage. There may be a fee for mortgage advice. The actual amount you pay will depend upon your circumstances.
Similar Properties
Looking To Sell Or Let?
Rettie is one of the most trusted and well-respected names in property. Our unrivalled market knowledge helps people from around the world buy, sell, let and develop property in Scotland and the North East of England - from city apartments and rural cottages to large townhouses and prime country homes, farms and estates. We deal with some of the most prestigious properties on the market, but provide the same exceptional standards of service and value for money to all our clients.
