Flat 0/1, 276 Bell Street, Collegelands, Glasgow City, G4 0SZ
Offers Over £169,000
Ground Floor Apartment
2 Bedrooms
2 Bathrooms
1 Reception Room
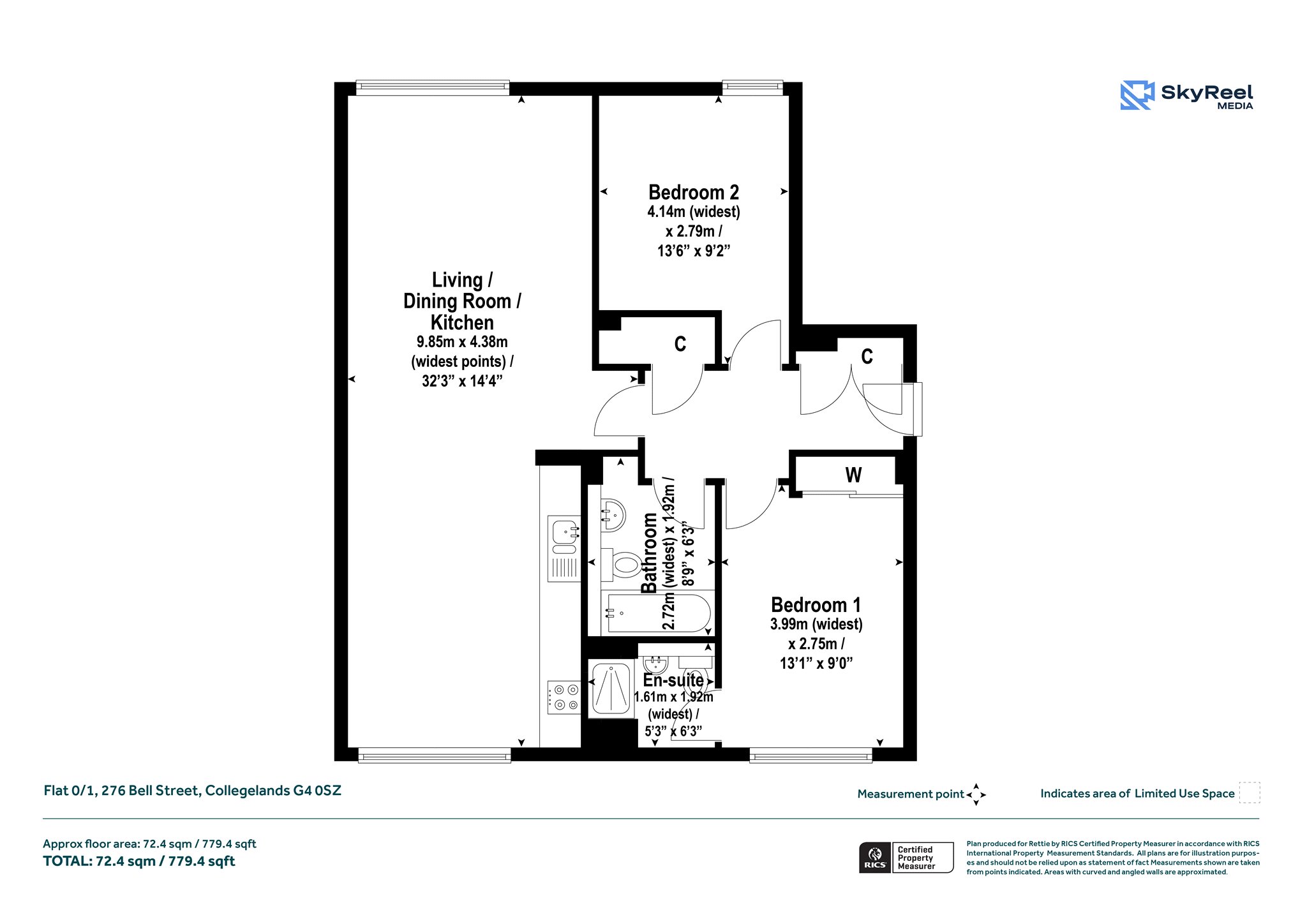
829 sq.ft
Secure Parking
Property Description
Closing Date for Offers - Friday 13th February at 2pm.
Bright and generously proportioned, this modern two-bedroom apartment has the significant advantage of a private allocated car parking space and is situated in an elevated ground floor position within the College Heights development, a modern seven-story block completed circa 2007. The property is well located on the eastern edge of the Merchant City just north of Gallowgate in an area currently benefitting from ongoing and significant redevelopment.
Accessed via secure entry to communal hallway, there is stair access to elevated ground floor and generous entrance hallway with great storage. Spanning over 829 sq ft the property offers multi-functional living space, with a generous south facing lounge/dining room, open plan to modern kitchen area, the interior has been well maintained, freshly painted and benefits from two double bedrooms, both with fitted wardrobes, one with en suite shower room and a main bathroom, there is a handy utility cupboard as well as laminate wood flooring in the living space and entrance hallway. The property has gas central heating, double glazing, and an allocated parking space in the secure rear car park.
Situation
This apartment is situated on the eastern edge of the vibrant Merchant Centre where there is an outstanding selection of shops on nearby Ingram Street, Buchannan Street, the Style Mile and Argyle Street together with a wonderful choice of restaurants and bars. Transport links are on hand via bus and by rail at High Street Station, Argyle Street Station and both Glasgow Central & Queen Street main line Stations are all within a few minutes’ walk. There are a number of local hospitals nearby and the property is also well placed for road links including the M8 motorway network and green space at nearby Glasgow Green Park.
Travel Directions
On foot from George Square head south onto South Frederick Street towards Ingram Street. At the traffic lights turn left onto Ingram Street. Continue along Ingram Street turning right into Albion Street and second left into Bell Street. Continue along Bell Street crossing over the junction with High Street. Continue along Bell Street passing under the rail bridge and head up the slight hill, passing the junction with Great Dovehill, third street on the right-hand side, continue east where you will find No. 276 halfway down the block on the right-hand side.
More Details
Situation: Contact branch
Council Tax Band: E
Tenure: Contact Branch
Your home may be repossessed if you do not keep up repayments on your mortgage. There may be a fee for mortgage advice. The actual amount you pay will depend upon your circumstances.
Similar Properties
Looking To Sell Or Let?
Rettie is one of the most trusted and well-respected names in property. Our unrivalled market knowledge helps people from around the world buy, sell, let and develop property in Scotland and the North East of England - from city apartments and rural cottages to large townhouses and prime country homes, farms and estates. We deal with some of the most prestigious properties on the market, but provide the same exceptional standards of service and value for money to all our clients.
