Flat 1/1 Westbridge Gardens, 41 Cook Street, Glasgow, Glasgow City, G5 8JN
Offers Over £180,000
First Floor Apartment
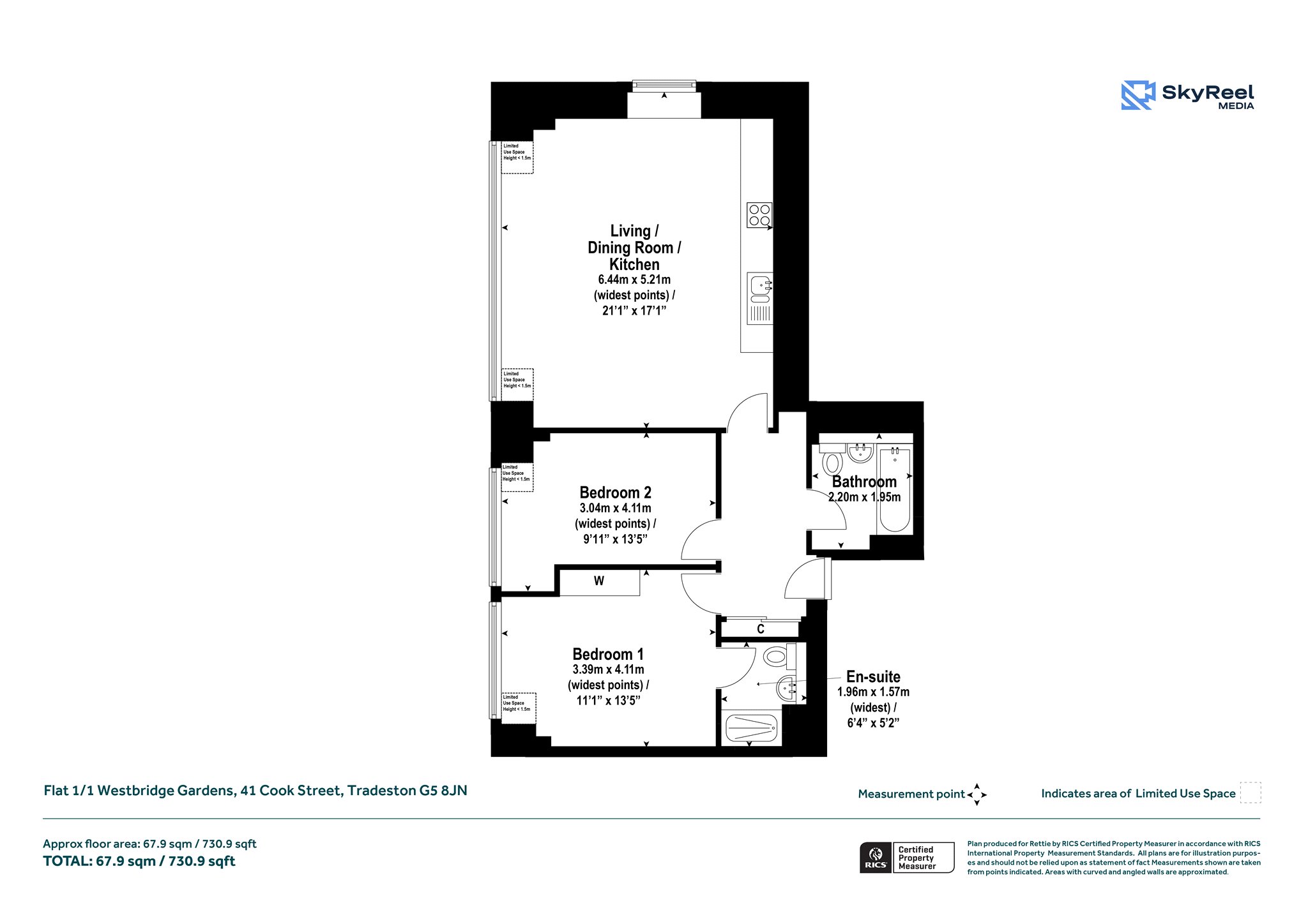
2 Bedrooms
2 Bathrooms
1 Reception Room
732 sq.ft
Off Street Parking
Property Description
This striking brick building was built in 1837 for the Eglinton Engine Works, originally a warehouse forming part of a significant engineering complex in Tradeston, the building was sympathetically converted into residential apartments as part of the regeneration of the area, this two-bedroom, two-bathroom property enjoy a wealth of architectural features and a lot of natural light from very large arched, multi-pane industrial-style window incorporating a semicircular fanlight and architectural pillars. Named Westridge Gardens, the development is situated in a popular area just south of the River Clyde where the new Barclays Wealth Hub is located, opposite Glasgow City Centre’s Financial Services District. The locale offers easy access to the City Centre and whilst the city is within walking distance over the Squiggly Bridge, West Street Underground Station is only minutes’ walk away from the gated grounds, it has landscaped resident’s courtyard grounds and residents parking.
The property itself is accessed via a secure entrance and stair access to the first floor. The property is well-presented and has been well maintained by the current owners. The accommodation extends to welcoming entrance hallway, generous living space incorporating open plan kitchen and with dual aspects and a fabulous feature arched window which spans the length of the room and also features in both double bedrooms, there is good storage, a main bathroom and en-suite shower room, fresh décor, lovely wood effect laminate flooring, double glazing and there is gas central heating system.
Situation
Located on Cook Street on the south edge of Glasgow’s City Centre and Financial Services District, an area of Glasgow which is benefitting from significant redevelopment in the last few decades with a mix of both residential and commercial developments and it is very well placed for the new Barclays Wealth Hub. This location offers easy access to the City Centre and Merchant City, where there is a wealth of amenities including shopping, wine bars and many highly acclaimed restaurants or head south into Shawlands where you will find a great selection of local business. The area benefits from frequent public transport with Central and Queen Street Train Stations, West Street subway station. Public transport and road links to the M8 & M74 motorway network are exceptional.
Travel Directions
On foot from our office on Bath Street continue East, turning first right into West Campbell Street and proceed south eventually crossing over Argyle Street and continuing to Robertson Street, at the end of Robertson Street ross over to the Clyde walkway and cross the Squiggly Bridge and continue South on to Clyde Place and on to West Street. Continue along West Street turning 4th on the left into Cook Street the entrance to West Bridge Gardens is only a few hundred meters along on the right-hand side, No. 41 can be found on the far-left corner under the archway.
More Details
Situation: Contact branch
Council Tax Band: E
Tenure: Freehold
Your home may be repossessed if you do not keep up repayments on your mortgage. There may be a fee for mortgage advice. The actual amount you pay will depend upon your circumstances.
Similar Properties
Looking To Sell Or Let?
Rettie is one of the most trusted and well-respected names in property. Our unrivalled market knowledge helps people from around the world buy, sell, let and develop property in Scotland and the North East of England - from city apartments and rural cottages to large townhouses and prime country homes, farms and estates. We deal with some of the most prestigious properties on the market, but provide the same exceptional standards of service and value for money to all our clients.
