97 Vancouver Walk, Athletes Village, Dalmarnock, Glasgow City, G40 4TP
Property Description
Under offer at Closing Date on Wednesday 5th November 2025.
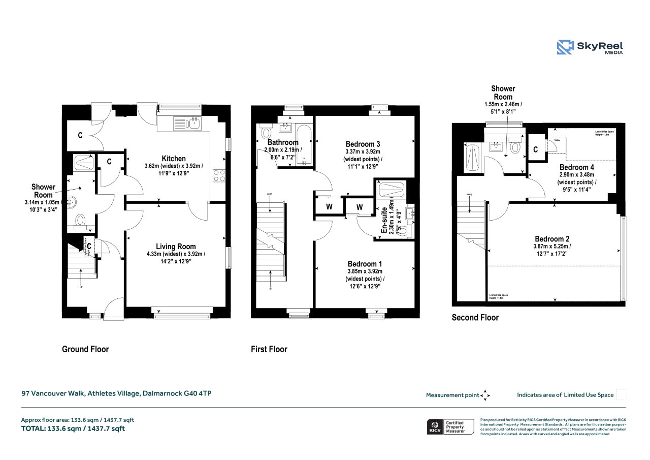
This generous end of terrace, modern townhouse comprises of four bedrooms and four bathrooms over three floors and extends to 1485 sq ft. Rarely available to the market and set within the iconic Athletes Village in the east side of Glasgow City, the area was developed around 10 years ago to house athletes during the Commonwealth Games hosted in 2014 and subsequently converted into a residential community as part of a major regeneration project for the area. Built with a strong emphasis on energy efficiency, with solar panels, heat recirculation system and high-performance double glazing the property is set within a wraparound private garden, and further benefits from an open outlook over the River Clyde and towards the Cuningar Loop Parkland, in an ideal location for dog walkers and outdoor enthusiasts.
The property is accessed through gated gardens from both front and rear, entering from the front door off of the Clyde Walkway, the reception hall offers cloakroom shower room, great storage, stair access to upper floors and access to the dual aspect living room with doors to dining kitchen, utility cupboard and with access to the rear entrance and back garden area and parking. Stairs lead up to the first floor with main bathroom and two bedrooms both with fitted wardrobes and one with en en suite shower room, further stair to upper floor with a shower room and two bedrooms with vaulted and combed ceilings offering excellent space for growing families or home working.
Situation
Nestled within the now well-established Athlete’s Village, originally developed for the Commonwealth Games circa 2014, this property boasts a superb setting beside the picturesque Cuningar Loop Woodland Park, offering scenic walking trails and a range of outdoor activities. The nearby Emirates Arena provides access to world-class sports facilities, a modern gym, and a variety of events throughout the year. Everyday amenities are well served by the nearby Rutherglen Retail Park on Dalmarnock Road, (Tesco’s, Starbucks, McDonalds, KFC, Home Bargains, Greggs and Subway) which is just a short walk or two-minute car ride away as well as the nearby Forge Shopping Centre. The location is just three miles to Glasgow City Centre, excellent transport links include a five-minute walk to Dalmarnock Road for bus services and also nearby train services from Dalmarnock station which is a five-minute journey and just two stops into Argyle Street Station, there is the Clyde Walkway for walking and cycling into City Centre and the M74 motorway is easily accessible, connecting seamlessly to Glasgow’s wider road network.
Travel Directions
On foot from Dalmarnock Road, turn right into Birkwood Street, follow the road northeast to the junction with Sunnybank Street, turn right into Sunnybank Street and at the Junction with Vancouver Walk, turn right again and follow the Clyde Walkway all the way round till you reach the end of the circular block where you will find No. 97 Vancouver Walk end of terrace property on your left hand side.
More Details
Situation: Private Garden
Council Tax Band: E
Tenure: Freehold
Your home may be repossessed if you do not keep up repayments on your mortgage. There may be a fee for mortgage advice. The actual amount you pay will depend upon your circumstances.
Similar Properties
Looking To Sell Or Let?
Rettie is one of the most trusted and well-respected names in property. Our unrivalled market knowledge helps people from around the world buy, sell, let and develop property in Scotland and the North East of England - from city apartments and rural cottages to large townhouses and prime country homes, farms and estates. We deal with some of the most prestigious properties on the market, but provide the same exceptional standards of service and value for money to all our clients.
