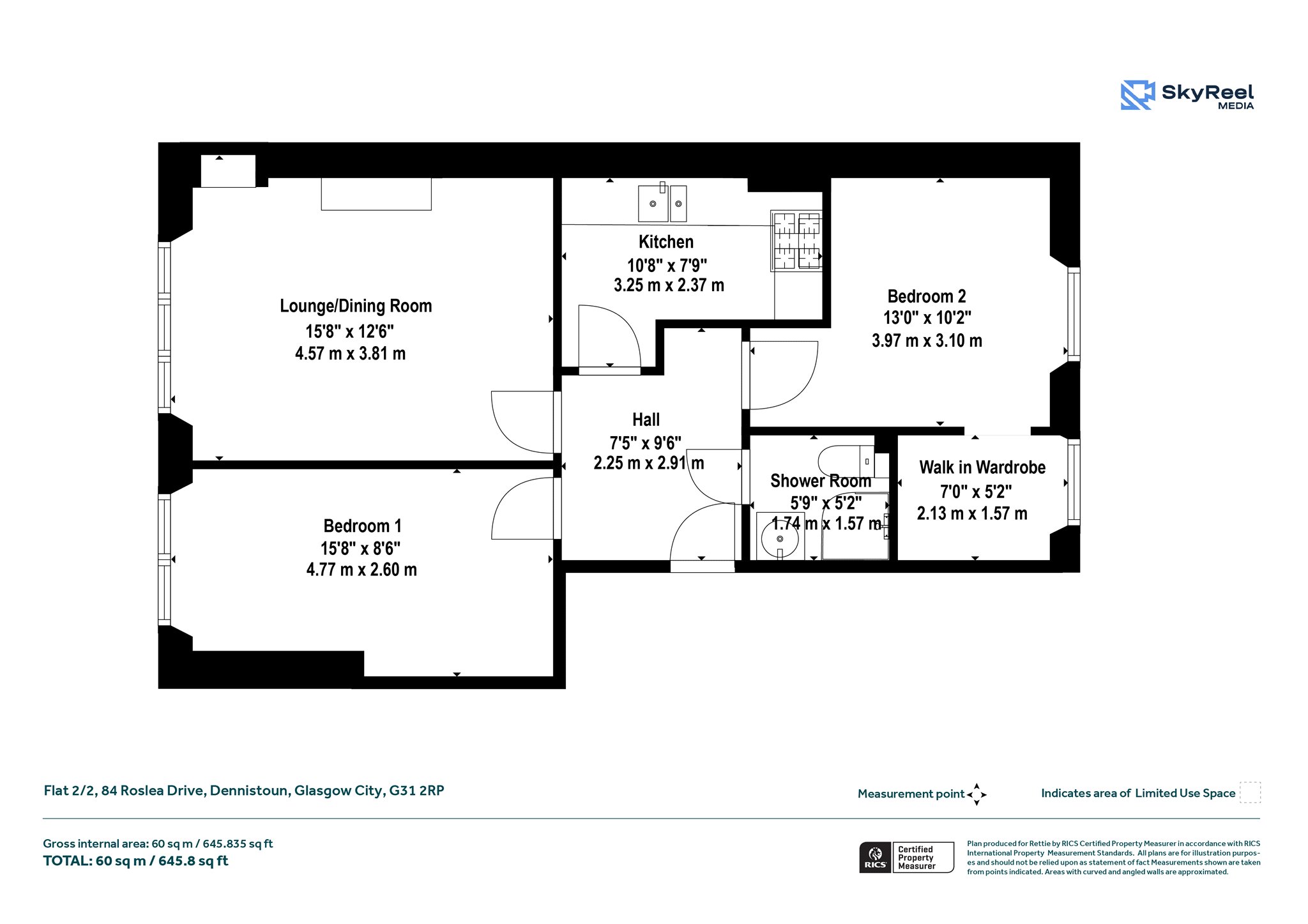
Flat 2/2, 84 Roslea Drive, Dennistoun, Glasgow City, G31 2RP
Offers Over £185,000
Upper Floor Apartment
2 Bedrooms
1 Bathroom
1 Reception Room
657 sq.ft
Communal Garden
On Street/Permit
Property Description
This attractive two-bedroom tenement flat enjoys a prime position within the highly sought-after and convenient Drives of Dennistoun, a vibrant residential area just east of Glasgow City Centre. Perfectly situated, the property is ideally placed to benefit from an excellent range of local shops, cafés and amenities on Duke Street and Alexandra Parade, along with superb public transport links and motorway access. Retaining a wealth of classic tenement character such as ornate cornicing and tall skirtings, the flat is tastefully complemented by modern finishes. Externally, Roslea Drive offers free on-street parking.
Access from secure door entry system to common close and rear courtyard, stairs lead to the upper floors. Main front door and access to welcoming reception hall spanning over 9’6 and leads to all main apartments. There is a generous living/dining room spanning over 15’ 8” and with three-section double-glazed window facing over Roselea Drive, there is feature press style inset shelves and cupboard, fireplace and original sanded wood floorboards. There is a cleverly configured internal kitchen complete with a range of modern base and wall mounted units with integrated oven, hob & hood and undercounter space for washing machine. There are two double bedrooms both with double-glazed windows. Bedroom one has original sanded wood flooring and bedroom two, to the rear, has carpeted flooring, a walk-in wardrobe and outlook to rear courtyard and cupboard housing the Gas Combi Boiler. Modern and stylish shower room with white suite and neutral wall and floor tiling.
Situation
The location is superb with a range of amenities and public transport links just minutes away. The property is well placed for both Duke Street and Alexandra Parade where you will find a range of popular shops, delis, restaurants and transport links from the local Duke Street train station or nearby Belgrove Station. The property is just over a mile from the City Centre and popular Merchant City and in walking distance to both Alexandra Park offering views to Ben Lomond from its highest point and Glasgow Green Park. Early viewing recommended to appreciate the proportions and condition of this flat. A great opportunity for both families and young professionals working or studying in the City Centre or commuting to Edinburgh.
Travel Directions
By car from our George Square, proceed east on George Street, crossing the junction at High Street into Duke Street. Continue along Duke Street for approx. 1 mile. At the junction with Armadale Street, turn left and continue north to the next junction. Turn right into Roslea Drive, where you will find the entrance to No. 84 just a short distance along on the right-hand side.
More Details
Situation: Communal Garden
Council Tax Band: B
Tenure: Freehold
Your home may be repossessed if you do not keep up repayments on your mortgage.
There may be a fee for mortgage advice. The actual amount you pay will depend upon your circumstances. The fee is up to 1% but a typical fee is 0.3% of the amount borrowed.
Similar Properties
Looking To Sell Or Let?
Rettie is one of the most trusted and well-respected names in property. Our unrivalled market knowledge helps people from around the world buy, sell, let and develop property in Scotland and the North East of England - from city apartments and rural cottages to large townhouses and prime country homes, farms and estates. We deal with some of the most prestigious properties on the market, but provide the same exceptional standards of service and value for money to all our clients.
