Flat 3/2 Warehouse On The Green, 39 Greendyke Street, Glasgow Green, Glasgow City, G1 5PS
Property Description
Under Offer at Closing date for offers - Friday 20th February 2026.
Offered in excellent decorative order, the property features newly painted rooms, flooring and crisp, refreshed cabinetry that give the space a clean, modern aesthetic. Thoughtful styling throughout enhances the sense of light and space make it an ideal home for those seeking a move in ready space. This spacious one-bedroom apartment is situated within a striking red sandstone building, originally designed by Honeyman and Keppie, architects, circa 1890. The Warehouse on the Green development was converted into residential apartments in early 2000, has a prominent location overlooking Glasgow Green on the edge of the Merchant City and benefits from a super outlook over the Green and beyond and allocated parking space to the rear.
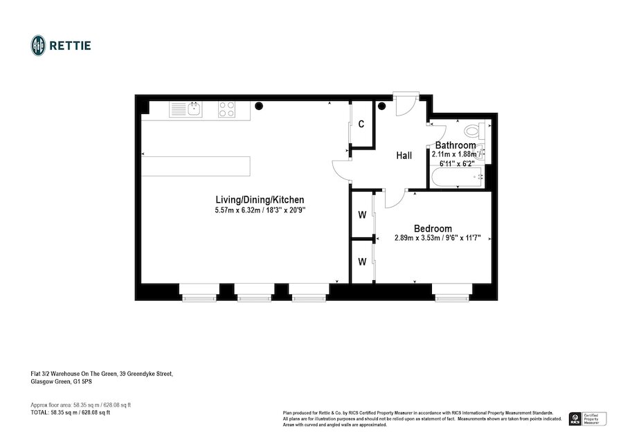
Accessed via a secure entrance and with both lift and stair access, the warehouse apartment extends to 628 sq ft and comprises of a generous open plan living dining room with kitchen offset and extending to 20’9”, there is a double bedroom with two double fitted wardrobes and an internal bathroom with over bath shower. The area offers access to a wealth of amenities and transport links.
Situation
This apartment is situated on the edge of Glasgow’s City Centre and popular Merchant Centre where there is an outstanding selection of shops nearby on Buchanan Street and Argyle Street together with a wonderful choice of restaurants and bars. Transport links are on the doorstep via bus and by rail at both Queen St Station and Glasgow Central Station are within a few minutes’ walk. There are a number of local hospitals nearby and the property is also well placed for road links including the M8 motorway network.
Travel Directions
On foot from George Square head south onto South Frederick Street towards Ingram Street. Continue along Ingram Street eventually turning right on to High Street at the junction. Continue south on High Street, crossing over Trongate and proceed south on Saltmarket. Greendyke Street is the third turning on the left where No. 39 can be found a few hundred yards along on the left-hand side.
More Details
Situation: Contact branch
Council Tax Band: C
Tenure: Contact Branch
Your home may be repossessed if you do not keep up repayments on your mortgage.
There may be a fee for mortgage advice. The actual amount you pay will depend upon your circumstances. The fee is up to 1% but a typical fee is 0.3% of the amount borrowed.
Similar Properties
Looking To Sell Or Let?
Rettie is one of the most trusted and well-respected names in property. Our unrivalled market knowledge helps people from around the world buy, sell, let and develop property in Scotland and the North East of England - from city apartments and rural cottages to large townhouses and prime country homes, farms and estates. We deal with some of the most prestigious properties on the market, but provide the same exceptional standards of service and value for money to all our clients.
