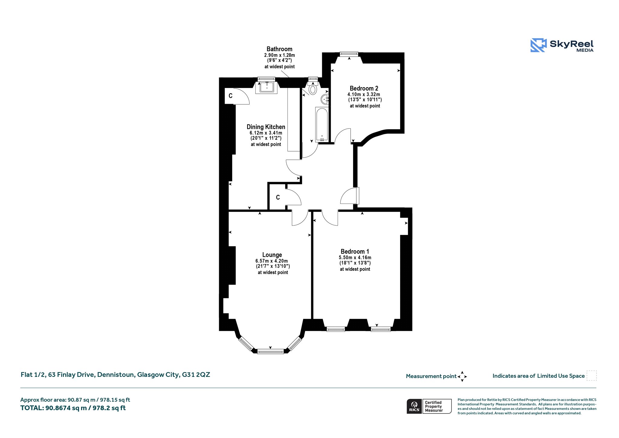
Flat 1/2, 63 Finlay Drive, Dennistoun, Glasgow City, G31 2QZ
Offers Over £220,000
First Floor Apartment
2 Bedrooms
1 Bathroom
1 Reception Room
978 sq.ft
Communal Garden
On Street/Permit
Property Description
Closing Date for Offers - Tuesday 17th February at 12pm.
Centrally located in the popular and incredibly convenient ‘Drives' of Dennistoun and with wonderful bright south facing aspects from its three-section bay living room, window, this two-bedroom with dining kitchen, preferred first floor tenement flat has lots of natural light and a generous footprint extending to 987 sq ft. This well-connected suburb to the east of Glasgow’s City Centre is exceptionally well placed to take advantage of an enviable selection of local amenities nearby on both Duke Street and Alexandra Parade as well as great commuter links by both rail and road.
Accessed via a secure entry, there are stairs to front door entrance. The property itself has a blend of traditional features with modern upgrades and offers a great footprint. Comprising welcoming reception hallway incorporating a large cupboard, a spacious living room spanning 21’7” into bay window, a modern and refitted dining kitchen with recess and ample space for dining, there are two double bedrooms with the principal front facing bedroom extending to over 18ft, modern re-fitted main bathroom. The property has sash and case style windows with the front windows having the ventrolla system installed, there is gas central heating and lots of lovely tenant features with ornate cornice and real wood floors. There is a well-maintained rear courtyard and on street parking.
Situation
The location is superb with a range of amenities and public transport links just minutes away. The property is well placed for both Duke Street and Alexandra Parade where you will find a range of popular shops, delis, restaurants and transport links from the local Duke Street train station. The property is just over a mile from the City Centre and popular Merchant City and in walking distance to both Alexandra Park offering views to Ben Lomond from it’s highest point and Glasgow Green Park. Early viewing recommended to appreciate the proportions and condition of this flat. A great opportunity for both families and young professionals working in the City Centre or commuting to Edinburgh.
Travel Directions
By car from our George Square, proceed east on George Street, crossing the junction at High Street into Duke Street. Continue along Duke Street for approx. 1 mile turning left into Whitehill Street, head north and taking second right into Finlay Drive where you will find No. 63 half way along the block on the left-hand side.
More Details
Situation: Communal Garden
Council Tax Band: C
Tenure: Freehold
Your home may be repossessed if you do not keep up repayments on your mortgage. There may be a fee for mortgage advice. The actual amount you pay will depend upon your circumstances.
Similar Properties
Looking To Sell Or Let?
Rettie is one of the most trusted and well-respected names in property. Our unrivalled market knowledge helps people from around the world buy, sell, let and develop property in Scotland and the North East of England - from city apartments and rural cottages to large townhouses and prime country homes, farms and estates. We deal with some of the most prestigious properties on the market, but provide the same exceptional standards of service and value for money to all our clients.
