Offers Over £195,000
Duplex Apartment
2 Bedrooms
1 Bathroom
1 Reception Room
766 sq.ft
Communal Garden
Garage
Property Description
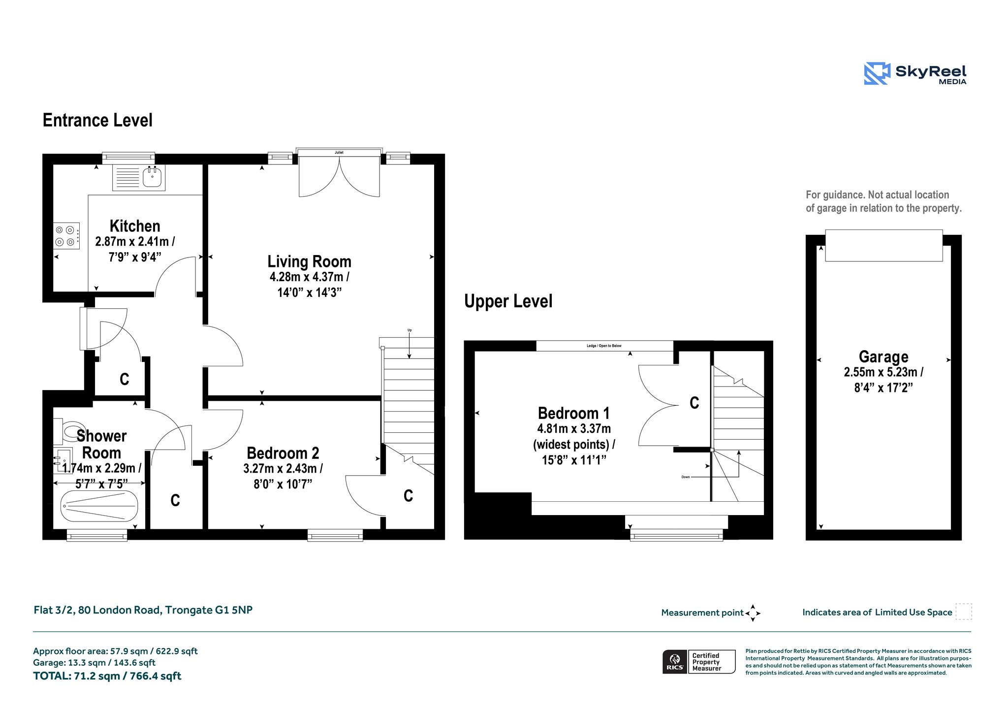
Situated within a convenient and well connected location, this attractive two bedroom duplex apartment on London Road offers stylish, modern living across two levels, with the tremendous benefit of a private garage.
The accommodation centres around a bright and spacious living area, complemented by brilliant south west facing Juliette balcony, which grants views of the St Andrew’s Square steeple and allows for an abundance of natural light to flood the space throughout the day. The contemporary kitchen has been fitted with modern units and clean finishes and is presented in almost immaculate condition. The current owners have also fully renovated the shower room in a sleek, high-quality finish.
The principal bedroom is well proportioned space that is positioned above the main living room and accessed via a mezzanine stairway. A window from the bedroom presents open views across The Barrowland park to the front and towards the skyscape of the city centre. A second well proportioned bedroom provides flexible accommodation, perfect to accommodate guests or as a dedicated a home office.
A particularly notable feature is the inclusion of a private garage, a rare and highly sought after asset within this central location. Offering secure off-street parking and valuable additional storage, this space provides a level of practicality and convenience seldom found in properties of this type, and will be of considerable appeal to a wide range of purchasers.
Trongate has become one of Glasgow’s most vibrant pockets, ideally positioned on the cusp of the Merchant City and offering an exceptional balance of character and convenience. The area is rich in local amenities, with an excellent selection of independent cafés, restaurants, bars and cultural venues all within easy walking distance. Glasgow Green is close at hand, providing expansive open space and scenic walks along the River Clyde, while the iconic Barrowland area adds to the neighbourhood’s unique appeal. The St Enoch Centre and the wider city centre are also readily accessible, ensuring superb shopping, dining and transport links, making this a particularly attractive setting for those seeking a dynamic yet well-connected city lifestyle.
Accommodation
- Secure communal entry.
- Inviting hallway with storage off.
- Superb living room with vaulted ceilings, south-west facing Juliette balcony and stairs leading to principal bedroom.
- Principal bedroom situated on mezzanine level from living space, with window to the front and integrated wardrobes.
- Fabulous contemporary kitchen with sleek white cabinetry contrasting dark countertops and black composite sink, with white tiled splashback, window to the rear and integrated fridge.
- Bedroom two with integrated wardrobes and window to the front.
- Beautiful three piece contemporary shower room with shower cubicle and window to the front.
- Private garage providing secure off street parking.
- Gas central heating.
- Double glazing.
More Details
EPC: C
Council Tax: D
Tenure: Freehold
Your home may be repossessed if you do not keep up repayments on your mortgage.
There may be a fee for mortgage advice. The actual amount you pay will depend upon your circumstances. The fee is up to 1% but a typical fee is 0.3% of the amount borrowed.
Similar Properties
Looking To Sell Or Let?
Rettie is one of the most trusted and well-respected names in property. Our unrivalled market knowledge helps people from around the world buy, sell, let and develop property in Scotland and the North East of England - from city apartments and rural cottages to large townhouses and prime country homes, farms and estates. We deal with some of the most prestigious properties on the market, but provide the same exceptional standards of service and value for money to all our clients.
