Flat 1, 5 Belhaven Terrace, Dowanhill, Glasgow, G12 0TF
Property Description
Set within one of Glasgow’s most admired Victorian terraces, this stunning drawing room conversion occupies a prime West End location, set back from Great Western Road. The building forms part of a distinguished B-listed terrace designed by renowned Glasgow architect James Thomson, dating from the mid-19th century, and is widely recognised for its handsome proportions, elegant stonework and classical detailing.
Accessed via an immediately impressive and well-maintained communal entrance, the apartment impresses with its sense of space, light and period grandeur. The accommodation is generously proportioned throughout and benefits from excellent natural light, with particularly striking effect in the outstanding front lounge. This exceptional public room exemplifies the original drawing room proportions and enjoys a leafy outlook along the terrace and over towards The Botanic Gardens and enhanced by fabulous stained upper sash windows. Traditional features are beautifully preserved, including ornate cornice work and a focal point fireplace, all of which combine to create a room of real presence and charm.
In addition, there is a separate dining kitchen accessed from the lounge that provides ample space for dining and modern family living while remaining in keeping with the character of the home. There are two spacious double bedrooms, both thoughtfully arranged and offering comfortable, well-balanced accommodation and both benefitting from fitted wardrobes. Completing the interior is a stunning four-piece bathroom, finished to a high standard and offering a luxurious yet sympathetic contrast to the period surroundings. The apartment is presented in excellent condition throughout, allowing a purchaser to enjoy the home immediately while appreciating the architectural heritage it offers.
Belhaven Terrace is perfectly positioned within the heart of Glasgow’s vibrant West End, an area celebrated for its elegant streetscape, cultural attractions and exceptional lifestyle amenities. Byres Road and Great Western Road are just a short walk away and provide an outstanding selection of cafés, restaurants, bars, independent shops and specialist food stores. The University of Glasgow, the Botanic Gardens and the Kelvin Walkway are all close at hand, offering green space and leisure opportunities within easy reach of the city centre. Excellent public transport links, including nearby subway stations and regular bus services, ensure swift and convenient access across Glasgow and beyond.
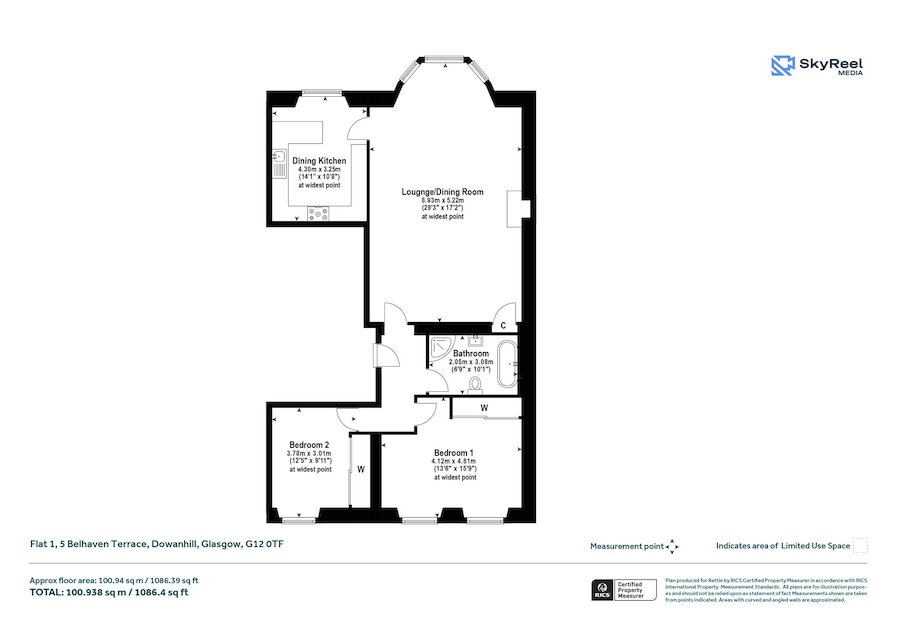
Accommodation:
- Security entry system
- Impressive communal entrance hall
- Magnificent drawing room with three section bay window, stained glass to the upper sashes, ornate ceiling cornice, focal point fireplace and storage cupboard
- Impressive dining kitchen complete with a range of base and wall units, integrated appliances, window to the front, stained glass to the upper sash and ceiling cornice
- Bedroom one with two windows to the rear, fitted wardrobes and ceiling cornice
- Bedroom two with window to the rear and fitted wardrobes
- Stylish four-piece bathroom comprising bath, separate shower cubicle, toilet and wash hand basin
- Gas central heating
- Sash and case windows
- Availably of on street residents’ parking permit
More Details
Situation: Contact branch
Council Tax Band: D
Tenure: Freehold
Your home may be repossessed if you do not keep up repayments on your mortgage.
There may be a fee for mortgage advice. The actual amount you pay will depend upon your circumstances. The fee is up to 1% but a typical fee is 0.3% of the amount borrowed.
Similar Properties
Looking To Sell Or Let?
Rettie is one of the most trusted and well-respected names in property. Our unrivalled market knowledge helps people from around the world buy, sell, let and develop property in Scotland and the North East of England - from city apartments and rural cottages to large townhouses and prime country homes, farms and estates. We deal with some of the most prestigious properties on the market, but provide the same exceptional standards of service and value for money to all our clients.
