0/5, 2 Lilybank Terrace, Hillhead, Glasgow, G12 8RX
Property Description
This outstanding two-bedroom duplex conversion is contained within the former Laurel Bank School and forms part of a handsome Grade II listed blonde sandstone terrace. The building originally dates to circa 1880 and was substantially extended and refurbished in 2013 to provide exclusive luxury residences on a privately accessed terrace.
The internal accommodation is formed over the ground and garden levels and offers excellent natural light, generous proportions and a stylishly presented interior. Notable highlights include a superb main lounge/dining room, a stunning open plan kitchen by Kitchens International, two spacious double bedroom, two contemporary en suites and a WC off the reception hall on the ground floor. The interior has been finished to an exacting standard and includes hardwood flooring, quality integrated appliances, fabulous Quartz worktops in the kitchen and Porcelanosa tiling in the en suite bathroom and en suite shower room. Additional features include the significant advantage of an allocated parking space within the secure residents’’ car park, well-presented communal area and lift access to each level.
2 Lilybank Terrace enjoys a peaceful yet highly central setting in Hillhead, just 0.3 miles from Byres Road and 0.4 miles from the University of Glasgow. The surrounding area is known for its mix of traditional tenements, elegant terraces, and tree-lined streets. Byres Road and its surroundings offer an excellent range of independent cafés, specialist food retailers, restaurants and bars, as well as larger chains such as Waitrose and M&S Food. Hillhead Underground Station is nearby, offering easy access to the city centre and beyond. The Botanic Gardens and Kelvingrove Park are both within easy walking distance, providing residents with nearby green space. For medical professionals, the Queen Elizabeth University Hospital is approximately 2.7 miles away, and commuters benefit from proximity to the Clydeside Expressway, Clyde Tunnel, and M8 motorway.
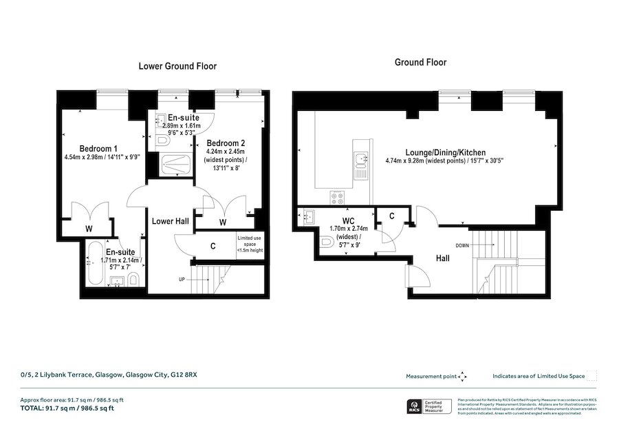
Accommodation:
- Video security entry system
- Communal entrance hall with lift and stair access to each level
- Reception hall with hardwood flooring, storage cupboard off and staircase to lower level
- Generous two-piece WC off the reception hall
- Outstanding main lounge/dining room with two windows to the rear and hardwood flooring
- Impressive open plan kitchen by Kitchens International complete with a range of base and wall units, integrated appliances and quality Quartz worktops
- Lower hall with useful storage cupboard off
- Bedroom one with window to the rear and fitted wardrobes
- Stylish en suite bathroom comprising bath, over bath shower, toilet and wash hand basin
- Bedroom two with two section window to the rear and fitted wardrobes
- Contemporary en suite shower room comprising three-piece suite. Window to the rear
- Gas central heating
- Double glazing
- Allocated parking space
EPC: B
Council Tax: F
Tenure : Freehold
More Details
Situation: Communal Garden
Council Tax Band: F
Tenure: Freehold
Your home may be repossessed if you do not keep up repayments on your mortgage. There may be a fee for mortgage advice. The actual amount you pay will depend upon your circumstances.
Similar Properties
Looking To Sell Or Let?
Rettie is one of the most trusted and well-respected names in property. Our unrivalled market knowledge helps people from around the world buy, sell, let and develop property in Scotland and the North East of England - from city apartments and rural cottages to large townhouses and prime country homes, farms and estates. We deal with some of the most prestigious properties on the market, but provide the same exceptional standards of service and value for money to all our clients.

