3 Westbourne Gardens, Hyndland, Glasgow, G12 9XD

Hyndland, Glasgow, G12 9XD
Sold
Pin View on map

Offers Over £1,450,000

House

Terraced House

Bed

5 Bedrooms

Bathroom

5 Bathrooms

Reception

3 Reception Rooms

Size

3,404 sq.ft

Tree

Private Garden

Parking

On Street/Permit

Telephone

Property Description

CLOSING DATE WEDNESDAY 21ST AT 11:00AM

A rare opportunity to acquire a truly exceptional traditional townhouse in one of the West End's most prestigious addresses. This magnificent four-storey property occupies a prime position with commanding, uninterrupted south-facing views over the beautifully maintained pleasure gardens.

Elegantly presented and finished to an extraordinary standard throughout, the home combines timeless period character with luxurious modern touches. The versatile accommodation is arranged over four generous levels and includes three impressive public rooms-ideal for both entertaining and family living—as well as five bedrooms. We would also highlight the quality of the three bathrooms and there are additional w.c.’s on both the ground and first floors.

From its subtle bay windows and intricate cornicing to the bespoke finishes and high-spec fittings, every detail of this home has been meticulously created. A truly distinguished residence in a highly sought-after location, 3 Westbourne Gardens offers both grandeur and grace at the heart of Glasgow's West End.

Westbourne Gardens is a name synonymous with Glasgow's West End and forms a delightful mix of converted apartments through to substantial single dwelling family homes. The residents have always taken great interest in maintaining the gardens to ensure all the neighbours can enjoy them year-round. Whilst the property is located in a quiet spot it is only a few minutes’ walk to an excellent selection of local shops, schools and public transport facilities. It is also very convenient for The University of Glasgow, the motorway network, Glasgow City Centre and the Queen Elizabeth Hospital via the Clyde Tunnel.

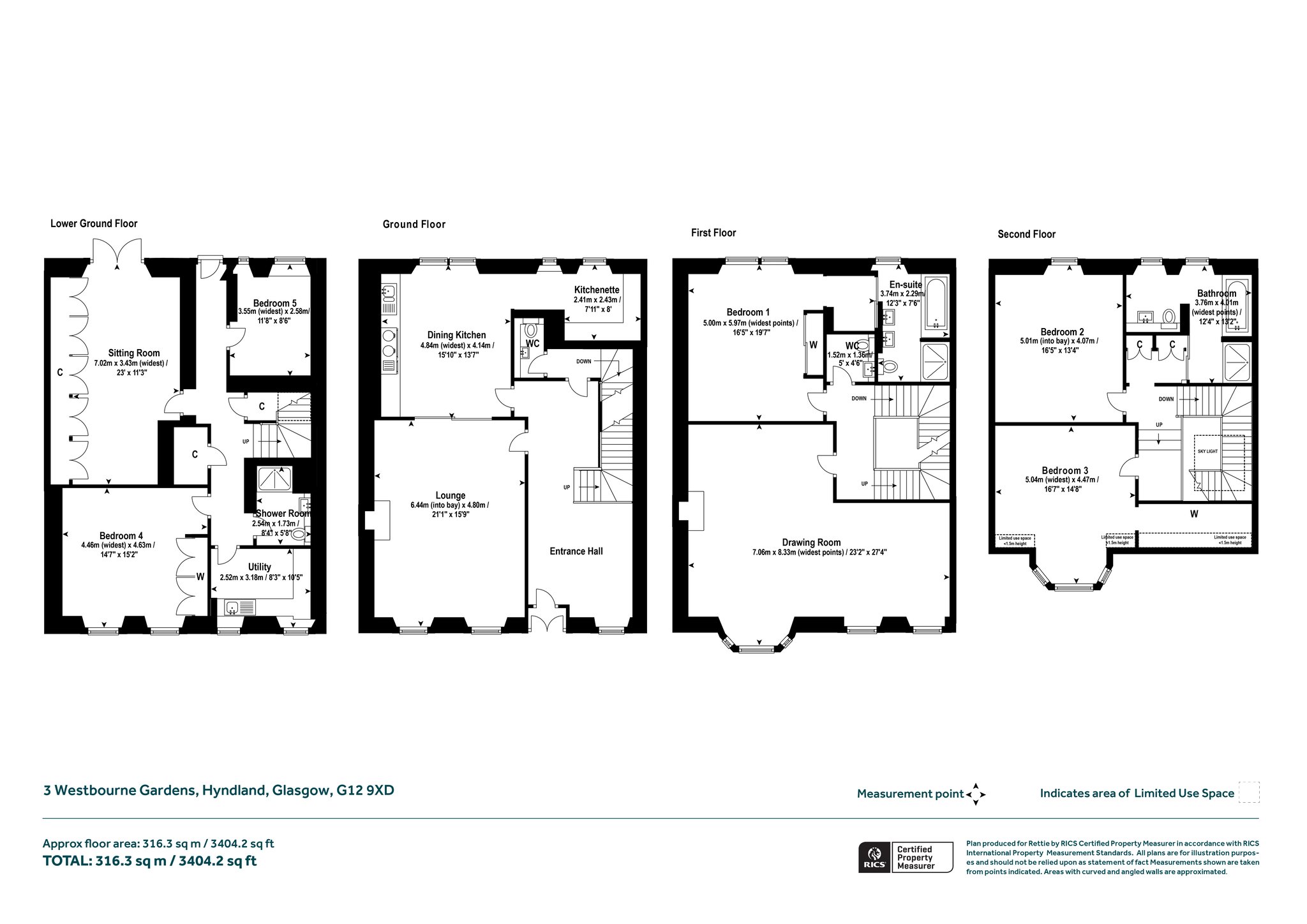
Accommodation

Garden level

  • Lower hall with storage off and back door to garden.
  • Bright front bedroom (4) with two windows.
  • Large, fitted utility room with two windows to the front.
  • Contemporary shower room with three-piece white suite.
  • Large sitting/t.v. room with glazed doors to the garden and extensive built-in storage along one wall. Wooden flooring.
  • Bedroom five with two windows to the rear and wooden flooring.

Ground floor

  • Large welcoming reception hall accessed via a glazed/panelled door and having window to the front, wooden flooring, stairway off and ornate cornicing.
  • Beautifully balanced lounge with two windows to the front, focal point fireplace with living flame gas fire, bespoke shelving, pocket doors to the dining kitchen, wooden flooring and ornate cornicing.
  • Impressive, fitted dining kitchen with two section window to the rear, storage units, worktops, AGA stove, integral appliances and wooden flooring.
  • To the rear of the kitchen the room flows into a useful kitchenette area which has a further two windows to the rear, storage units, an American style fridge/freezer, an integrated microwave and an integrated coffee machine. Wooden flooring.
  • Ground floor cloaks/w.c. with two-piece white suite and wooden flooring.

First floor

  • Beautifully engineered stairway leading to the upper floors with ornate wooden/wrought iron banister.
  • Spectacular drawing room with three section bay window to the front and an additional two windows to the front. Focal point fireplace with living flame gas fire. Ornate cornicing.
  • Bedroom one (principal) with two section window to the rear, fitted wardrobes and then the room flows into an extra dressing room space to the ensuite bathroom. The dressing room space has a window to the rear.
  • Stylish five-piece ensuite bathroom which includes a walk-in shower cubicle and his “n” hers wash hand basins. Window to the rear.
  • First floor w.c accessed from the first-floor landing and having two-piece white suite.

Second floor

  • Second floor landing with cupola.
  • Bedroom two with window to the rear.
  • Bedroom three with dormer-style three section bay window to the front and useful eaves storage space.
  • Inner hall with built-in storage.
  • Equally stylish four-piece bathroom including walk-in shower cubicle. Window to the rear.
  • Gas central heating.
  • Refurbished or replacement sash and case windows.
  • Mature, planted garden to the front.
  • Stunning enclosed garden to the rear which has been imaginatively landscaped to a high standard.

EPC: E
Council Tax: G
Tenure : Freehold

More Details

Situation: Private Garden
Council Tax Band: G
Tenure: Freehold

Contact Us

Anne Sutherland

Anne Sutherland

Associate Director
Craig Roberts

Craig Roberts

Mortgage & Protection Advisor
Mortgage Calculator
Monthly payments
Please set an interest rate.

Your home may be repossessed if you do not keep up repayments on your mortgage. There may be a fee for mortgage advice. The actual amount you pay will depend upon your circumstances.

Tax Calculator
LBTT calculator for properties purchased in Scotland. Stamp Duty calculator for properties purchased in England.
Land & buildings transaction tax (LBTT)
= £0
New build house with stone and timber cladding

Looking To Sell Or Let?

Rettie is one of the most trusted and well-respected names in property. Our unrivalled market knowledge helps people from around the world buy, sell, let and develop property in Scotland and the North East of England - from city apartments and rural cottages to large townhouses and prime country homes, farms and estates. We deal with some of the most prestigious properties on the market, but provide the same exceptional standards of service and value for money to all our clients.