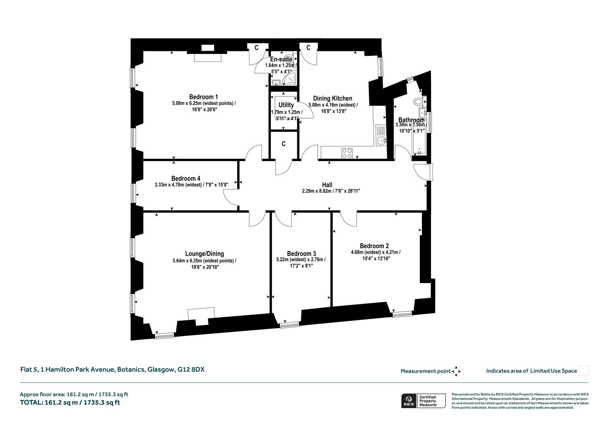
Property Description
This is a splendid four bedroom apartment that occupies the prominent corner position of a beautiful sandstone terrace. The spacious property enjoys pleasant aspects over both Ruskin Terrace and Hamilton Park Avenue, further benefiting from a delightful south facing balcony.
Obscured from view by tree lined Hamilton Park Avenue, the handsome building is approached via a grand front staircase, with an impressive classical sandstone façade. At the heart of this home is the expansive lounge, beautifully proportioned and bathed in light by three tall sash windows and dual outlooks to the East and South. Intricate cornicing, a feature fireplace, and ample space for both relaxing and entertaining make this is truly a standout space of real grandeur and warmth.
The dining kitchen has been thoughtfully designed with dual toned sage green and white cabinetry, integrated appliances, and excellent worktop space. A traditional ceiling mounted “pulley” adds charm, while the adjacent utility room helps keeps the practical side of daily life neatly tucked away.
The principal bedroom is a generous and serene retreat with plenty of floorspace to be reconfigured to one’s specifications, and benefits from a contemporary en suite shower room with underfloor heating. Bedroom two is another spacious double room, while bedroom three offers a comfortable third double sleeping area or a flexible home office space. The fourth bedroom boasts access to a private and charming south facing balcony. The accommodation is completed by a three-piece family bathroom, finished in neutral tones, and a wide, welcoming hallway with excellent built in storage and original architectural features throughout.
The present owners have transformed the property to a high standard with redecoration throughout, lovely engineered wooden flooring adorning the hallway and kitchen, while recently sanded wooden floors flow seamlessly throughout the remainder of the home. The original sash windows have been fully refurbished, with all the improvements being carried out by a very reputable contractor.
Situated in the heart of the Botanics district and just a brief stroll from the spectacular Botanics Gardens, Byres Road, and The University of Glasgow. Hamilton Park Avenue is ideally placed to enjoy the very best of West End living, with cafés, restaurants, Kelvinbridge Underground and The Glasgow Academy and Kelvinside Academy nearby.
Accommodation
- Secure communal entrance.
- Welcoming entrance "dining" hallway with fresh engineered wooden flooring, original ceiling cornice, integrated bookcase and double chest of drawers, in addition to generous walk in storage cupboard off.
- Large bright lounge with dual aspect outlook and three sash and case windows to the front and side, wooden flooring and focal gas fireplace.
- Principal bedroom (main) of excellent proportions with a double sash and case windows to the South, focal mantel piece, carpeted floors, press storage cupboard and en suite.
- En suite shower room with underfloor heating and fresh tiled finish.
- Contemporary kitchen with integrated appliances, dining space, traditional washing “pulley”, press storage and walk in laundry cupboard.
- Bedroom two carpeted with single sash and case window, two radiators and wooden flooring.
- Bedroom three with wooden flooring and single sash and case window.
- Bedroom four currently used as office, with built in shelving, office desk and wonderful south facing balcony accessed from fully opening sash and case window.
- Three piece family bathroom with electric shower over bath.
- Communal basement storage.
- On-street resident’s permit parking.
More Details
EPC: D
Council Tax: E
Tenure: Freehold
Your home may be repossessed if you do not keep up repayments on your mortgage.
There may be a fee for mortgage advice. The actual amount you pay will depend upon your circumstances. The fee is up to 1% but a typical fee is 0.3% of the amount borrowed.
Similar Properties
Looking To Sell Or Let?
Rettie is one of the most trusted and well-respected names in property. Our unrivalled market knowledge helps people from around the world buy, sell, let and develop property in Scotland and the North East of England - from city apartments and rural cottages to large townhouses and prime country homes, farms and estates. We deal with some of the most prestigious properties on the market, but provide the same exceptional standards of service and value for money to all our clients.
