Property Description
Peacefully position within the highly desirable Kelvinside district of Glasgow’s West End, this first-floor conversion is contained within a ‘B’ listed Victorian townhouse which forms part of a distinguished terrace crafted circa 1876 by renowned architect John Burnet Sr. The ensemble of homes forms a classically symmetrical, Renaissance-inspired crescent of polished ashlar, featuring canted bay windows, attic dormers, ornate cornicing, boundary walls, gate piers, and historic cast iron lamp brackets—all testament to its architectural pedigree.
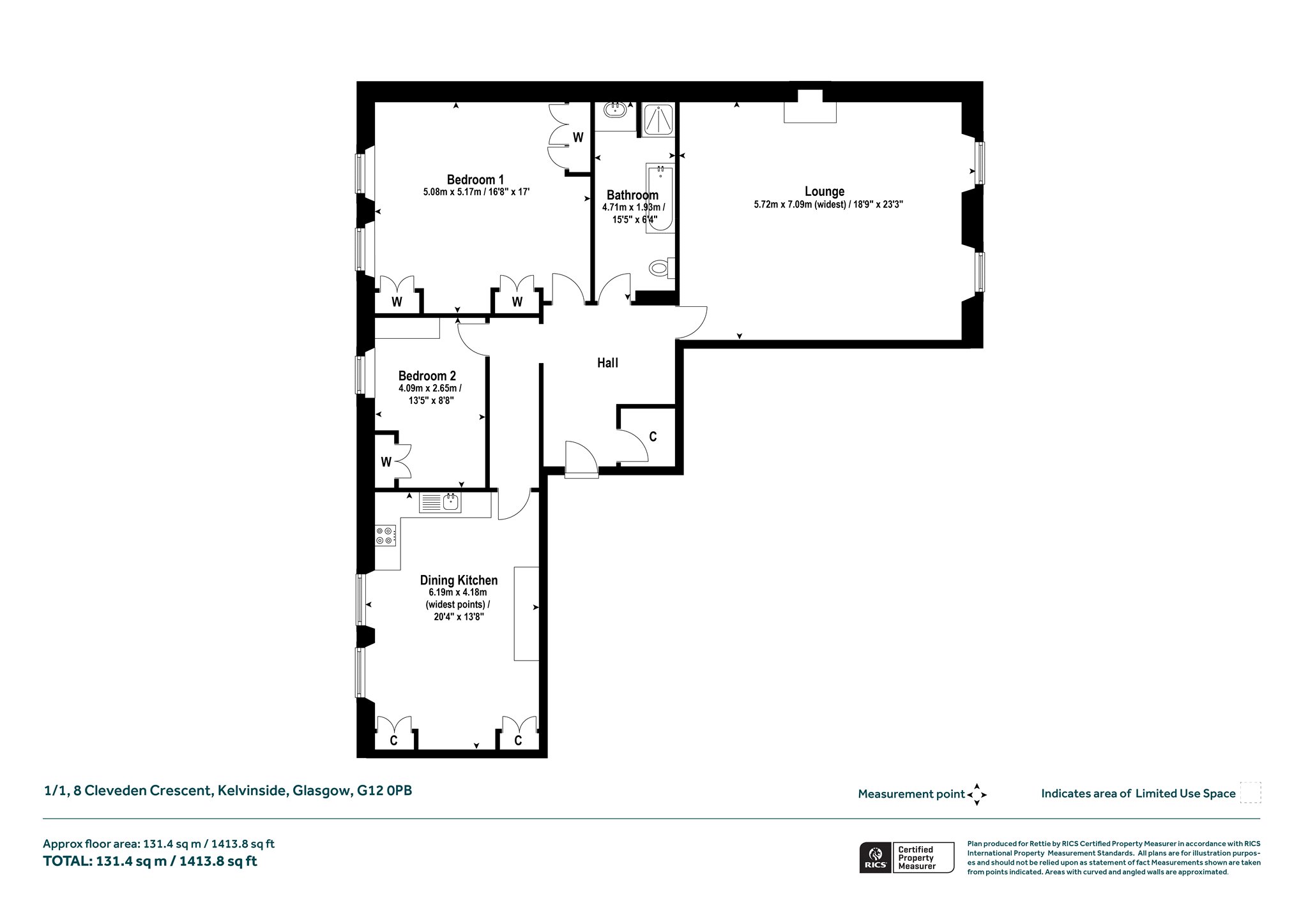
The internal accommodation benefits from excellent natural light throughout and has a particularly comfortable feel with the interior extending to circa 1400 square feet. The accommodation includes a fabulous main lounge, an impressive dining kitchen, two spacious double bedrooms and a four-piece bathroom. While this conversion exudes grandeur and solid potential, it does require some modernisation - an exciting opportunity to infuse character while elevating functionality. Externally, residents enjoy access to beautifully maintained communal gardens to the front - offering both space and serenity.
8 Cleveden Crescent is exceptionally well placed for both daily convenience and leisurely pursuits. A short walk brings you to Botanic Gardens and the scenic Kelvingrove Park with its bowling greens, play areas, and peaceful surroundings. For transport, there are frequent bus routes along Great Western, Hyndland, and Cleveden Roads, while Hyndland and Kelvindale train stations are nearby, offering seamless access into the city centre. Daily essentials and lifestyle conveniences are close at hand too: independent cafés, delicatessens, boutiques, supermarkets including Waitrose and Marks & Spencer, and a rich variety of bars and restaurants are clustered along Hyndland, Byres Road, and Great Western Road. Families will also appreciate the educational offerings, with well respected schools within immediate proximity.
Accommodation:
- Security entry system
- Communal entrance hall
- Broad and welcoming reception hall with useful storage cupboard off
- Outstanding lounge with two windows to the front
- Impressive dining kitchen with a range of base and wall units, ceiling cornice and two windows to the rear
- Bedroom one with two windows to the rear, ample storage and ceiling cornice
- Bedroom two with window to the rear and fitted wardrobes
- Generous four-piece bathroom
- Gas central heating
- Double glazed sash and case windows
- Access to immaculately maintained residents’ gardens to the front
More Details
EPC: C
Council Tax: F
Tenure: Freehold
Your home may be repossessed if you do not keep up repayments on your mortgage.
There may be a fee for mortgage advice. The actual amount you pay will depend upon your circumstances. The fee is up to 1% but a typical fee is 0.3% of the amount borrowed.
Similar Properties
Looking To Sell Or Let?
Rettie is one of the most trusted and well-respected names in property. Our unrivalled market knowledge helps people from around the world buy, sell, let and develop property in Scotland and the North East of England - from city apartments and rural cottages to large townhouses and prime country homes, farms and estates. We deal with some of the most prestigious properties on the market, but provide the same exceptional standards of service and value for money to all our clients.
