Offers Over £349,000
Upper Floor Apartment
2 Bedrooms
1 Bathroom
1 Reception Room
1,130 sq.ft
Communal Garden
Property Description
This unique, two bedroom, second floor conversion is bursting with character and forms part of a substantial, double fronted, blonde sandstone terrace townhouse which is in excellent order and was fully re-roofed in 2023.
3 Kirklee Gardens is an extremely elegant building, built circa 1877 by James Thomson. To the front there is an attractive view beyond the hedged residents’ gardens to Bellshaugh Road and to the rear the property overlooks the communal gardens and mature trees.
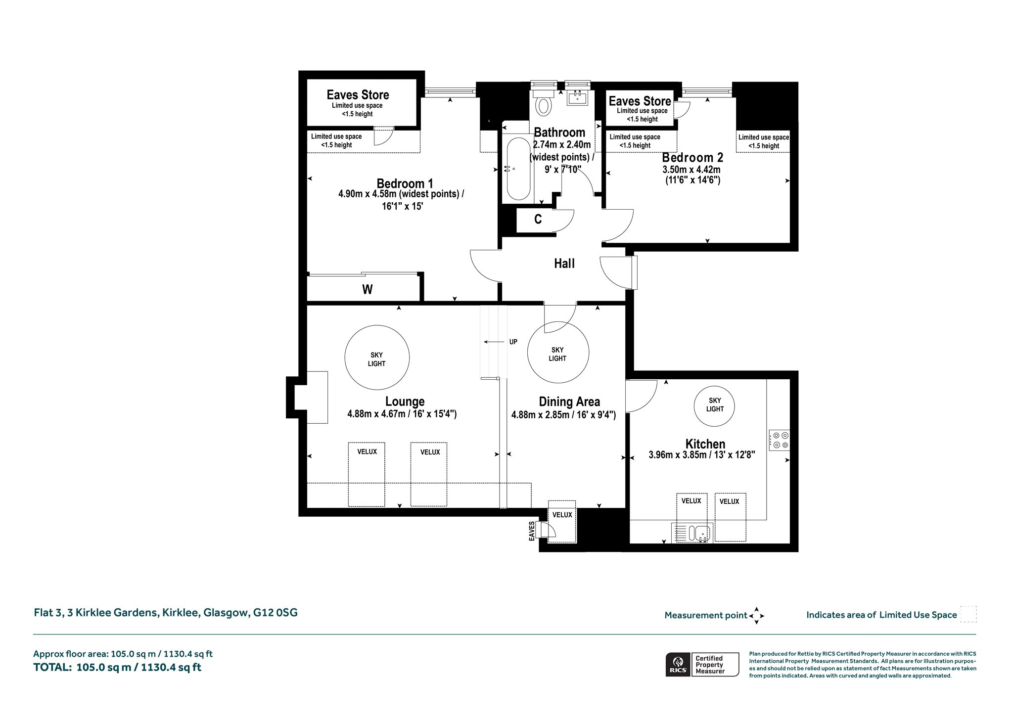
The property has an impressive and unusually large communal hallway (with fireplace and cornicing) and then the original stairway leads up to the second floor. Internally the flat extends to circa 1130 square feet and provides a lovely bright layout of hall, large lounge, dining room, spacious kitchen, two double bedrooms and a contemporary bathroom. The lounge/dining room is split level which defines each space and other notable features include two triple glazed cupola windows, wooden flooring in the hall, lounge/dining room and the kitchen and fitted wardrobes in both bedrooms.
Externally there is the enormous feature of a private parking space behind an electric gate, and a lovely communal garden. We would also highlight the large shared store and the extra storage space in the generous shared cellar. The property has westerly aspects to the front, is incredibly handy for the beautiful Botanic Gardens and is within easy reach of countless West End amenities, including Byres Road, Glasgow University and public transport facilities. There are excellent local schools including the nearby Kelvinside Academy and local hospitals include Gartnavel General and The Queen Elizabeth Hospital which is accessed via the Clyde Tunnel.
Accommodation
- Secure entry system at ground floor level.
- Large communal, carpeted ground floor hallway with original fireplace and ornate ceiling cornicing.
- Original stairway to second floor landing which has a feature cupola with surrounding ornate cornicing.
- Second floor reception hall with wooden flooring and storage off.
- Extremely bright and attractive lounge/dining room which is spacious and full of character. The room is split level, giving definition to the lounge and dining room areas. Focal point fireplace, three Velux windows to the front, two triple glazed circular cupola windows, focal point fireplace with living flame gas fire, ornate cornicing and wooden flooring.
- Fitted kitchen accessed from the dining area with two Velux windows to the front, generous storage, worktops, and appliances.
- Bedroom one with two section windows to the rear, fitted wardrobe and eaves storage.
- Bedroom two with two section window to the rear, fitted wardrobe and further eave storage.
- Attractive contemporary bathroom with three piece white suite, shower over bath, two section window to the rear and wooden flooring.
- Gas central heating.
- Private car parking space to the rear – remote control for the electric access gate.
- Large, shared storage space ideal for bicycles.
- Communal garden storage, small greenhouse and further bicycle shed
- Attractive communal garden to the rear with lawn and planting.
- Building re-roofed in 2023.
More Details
EPC: D
Council Tax: F
Tenure: Freehold
Your home may be repossessed if you do not keep up repayments on your mortgage. There may be a fee for mortgage advice. The actual amount you pay will depend upon your circumstances.
Similar Properties
Looking To Sell Or Let?
Rettie is one of the most trusted and well-respected names in property. Our unrivalled market knowledge helps people from around the world buy, sell, let and develop property in Scotland and the North East of England - from city apartments and rural cottages to large townhouses and prime country homes, farms and estates. We deal with some of the most prestigious properties on the market, but provide the same exceptional standards of service and value for money to all our clients.
