Property Description
An exceptional modern detached villa enjoying an extremely private, tucked-away position within Cala’s renowned Jordanhill Park development.
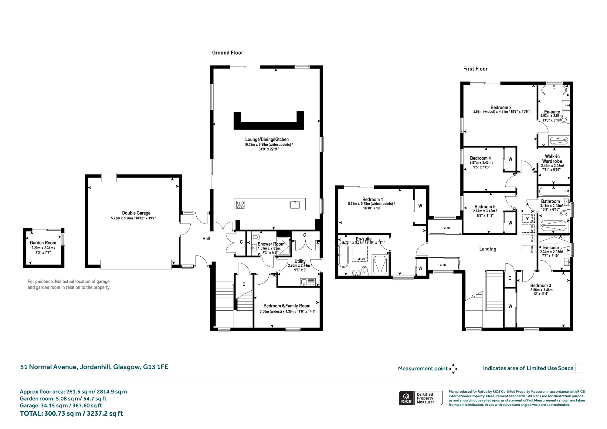
Number 51 Normal Avenue is a beautifully designed executive residence extending to just over 3,100 square feet of luxurious, versatile family living space, complete with an integral double garage, an immaculately maintained south-facing rear garden, and the rare advantage of open views across adjacent parkland. Perfectly situated within one of the most secluded and leafy pockets of the development, this stunning home offers an unrivalled combination of privacy, space, and contemporary design.
Internally, the property displays architectural detail rarely seen in modern homes, featuring an array of impressive design elements including suspended gallery landing, vaulted ceilings, elegant light wells, and expansive, wide aperture glazing which floods the accommodation with natural light. The overall effect is of a bespoke, individually crafted home with a wonderful sense of space and brightness — best appreciated in person.
The accommodation flows beautifully from a broad, welcoming reception hallway, which offers direct access to all principal ground-floor apartments, the integral double garage, and a convenient rear door to the garden — ideal for summer gatherings. The primary living space is centred around a magnificent open-plan dining kitchen with sleek central island, complete with Siemens integrated appliances and a downdraft extraction system, linked to a bright corner living area with full-height windows and glazed doors leading to multiple decked seating areas and the south-facing rear garden. The garden enjoys complete privacy and uninterrupted open views over the rolling parkland beyond.
Further ground-floor accommodation includes a double-sized sixth bedroom, perfect as a guest suite, home office or children’s playroom, a stylish shower room, and a large utility room with side access and excellent storage. The upper level is particularly impressive, with a spacious main landing reminiscent of a boutique hotel hallway, with the highlight of the striking suspended gallery which hangs above the front door and is surrounded by glazing. The principal bedroom suite enjoys a bright corner position, a Juliette balcony with elevated views, a dressing area, extensive fitted wardrobes, and a luxurious four-piece en-suite bathroom. The second bedroom forms a peaceful suite of its own, located above the garage wing, with a large en-suite bathroom and beautiful open outlooks.
Completing the upper level are a further three generously proportioned bedrooms (one with en-suite shower room), a family bathroom with four-piece suite, and a versatile fifth bedroom, currently used as a home office/gaming room.
To the rear of the property there is a tremendous, South facing garden which backs directly onto a beautifully open expanse of lawned parkland – a spectacular backdrop that also gives the home for sale wonderful levels of privacy. The garden itself is laid to neat lawn and composite decking that hugs the rear elevation, providing a lovely low maintenance space to sit outdoors and enjoy the sunshine.
Tucked away in a leafy corner of the garden there is also a purpose-built garden room which is utilised as a home office. This fully insulated and double glazed self contained unit is serviced with power and light – offering a brilliant permanent work from home space that will appeal to professional couples.
51 Normal Avenue offers the ultimate in modern West End family living, providing style, scale and seclusion, all within a vibrant contemporary development on the doorstep of Glasgow’s finest amenities.
________________________________________
Attributes
- Architecturally impressive modern detached villa in Cala’s Jordanhill Park development
- Over 3,100 sq. ft. of luxurious, flexible living space
- Integral double garage with internal access
- Beautiful south-facing private rear garden with open parkland views
- Exceptionally quiet and secluded plot in one of the most peaceful corners of the development
- Suspended gallery landings, vaulted ceilings, elegant light wells and expansive glazing
- Substantial open-plan dining kitchen with Siemens appliances and sleek central island
- All bathrooms feature tiling from Porcelanosa and Laufen Sanitaryware.
- Bright, corner-positioned main living space with access to multiple outdoor seating areas
- Ground-floor sixth bedroom/home office/playroom, shower room and large utility room
- Boutique hotel-style upper landing with striking architectural features
- Principal bedroom suite with dressing area, Juliette balcony, extensive wardrobes and luxury en-suite
- Second private bedroom suite above the garage wing, with en-suite and parkland views
- Three further spacious bedrooms including third en-suite and versatile fifth bedroom
- Family bathroom with four-piece suite
- Contemporary design, modern comforts, and thoughtful layout ideal for family life
Location Description
Normal Avenue enjoys an enviable position within the prestigious Jordanhill Park development, in the heart of Glasgow’s West End. This tranquil address is ideally placed for families and professionals alike, combining peaceful, leafy surroundings with outstanding convenience.
Perfect for commuters, Jordanhill offers rapid access to the Clydeside Expressway, Clyde Tunnel, and onward links to the M8 and M74 motorways, making travel across West Central Scotland fast and efficient. The Queen Elizabeth University Hospital is within easy cycling distance, and the area remains a top choice for healthcare professionals seeking an attractive, family-friendly environment close to work.
For lifestyle amenities, residents are spoilt for choice. Byres Road and its vibrant selection of restaurants, cafés, bars, and boutiques lie just two miles away, while local supermarkets, leisure centres, medical practices, and schools are all within a five to ten-minute drive. Jordanhill railway station is just moments away, providing regular, direct services to Glasgow City Centre in under 15 minutes.
Combining seclusion, connectivity, and lifestyle, Jordanhill Park continues to be regarded as one of the West End’s most sought-after modern developments, offering an exceptional standard of living within a beautifully landscaped urban setting.
More Details
EPC: C
Council Tax: G
Tenure: Freehold
Your home may be repossessed if you do not keep up repayments on your mortgage. There may be a fee for mortgage advice. The actual amount you pay will depend upon your circumstances.
Similar Properties
Looking To Sell Or Let?
Rettie is one of the most trusted and well-respected names in property. Our unrivalled market knowledge helps people from around the world buy, sell, let and develop property in Scotland and the North East of England - from city apartments and rural cottages to large townhouses and prime country homes, farms and estates. We deal with some of the most prestigious properties on the market, but provide the same exceptional standards of service and value for money to all our clients.
