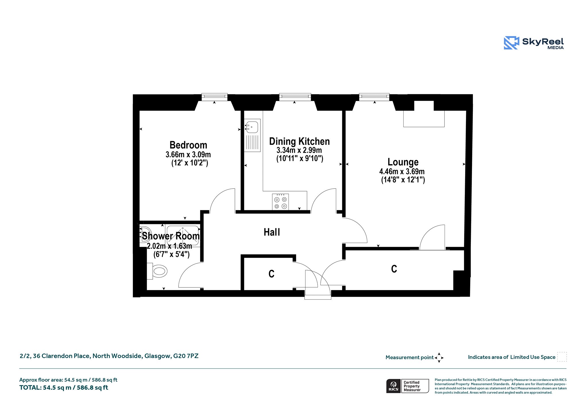
2/2, 36 Clarendon Place, North Woodside, Glasgow, G20 7PZ
Offers Over £129,000
Upper Floor Apartment
1 Bedroom
1 Bathroom
1 Reception Room
587 sq.ft
Communal Garden
On Street/Permit
Property Description
Occupying a second-floor position within a traditional, blonde sandstone tenement on Clarendon Place, this well presented, one-bedroom flat offers a fantastic opportunity for both owner-occupiers and investors alike. The property enjoys a prime position within a factored building, ideally situated between Glasgow’s vibrant West End and Glasgow City Centre - placing it within easy reach of a wealth of amenities, universities, and transport links.
Internally, the flat is in good order throughout, benefitting from neutral décor and quality fixtures that contribute to a bright, modern living environment. The accommodation comprises a welcoming entrance hallway, a spacious living room, a well-appointed dining kitchen, a generously proportioned double bedroom, and a stylish three piece shower room.
With its close proximity to the University of Glasgow, Glasgow Caledonian University, and the world-renowned Glasgow School of Art in Garnethill, this flat is ideally suited to students, professionals, and commuters alike. In addition, the property’s location allows quick access to the Underground Rail network, and it is perfectly positioned for convenient travel throughout West Central Scotland via major road links.
Accommodation:
- Security entry system
- Communal entrance close
- Welcoming reception hall with wooden flooring and two useful storage cupboards off
- Impressive lounge with window to the front, wooden flooring, access to generous storage cupboard and focal point fireplace
- Dining kitchen with window to the front and wooden flooring
- Spacious double bedroom with window to the front and wooden flooring
- Three-piece shower room
- Gas central heating
- Double glazing
More Details
EPC: C
Council Tax: C
Tenure: Freehold
Your home may be repossessed if you do not keep up repayments on your mortgage.
There may be a fee for mortgage advice. The actual amount you pay will depend upon your circumstances. The fee is up to 1% but a typical fee is 0.3% of the amount borrowed.
Similar Properties
Looking To Sell Or Let?
Rettie is one of the most trusted and well-respected names in property. Our unrivalled market knowledge helps people from around the world buy, sell, let and develop property in Scotland and the North East of England - from city apartments and rural cottages to large townhouses and prime country homes, farms and estates. We deal with some of the most prestigious properties on the market, but provide the same exceptional standards of service and value for money to all our clients.
