Upper Duplex, 14 Belmont Crescent, Kelvinbridge, Glasgow, G12 8EU
Property Description
A great example of a spacious and well configured three bedroom upper duplex apartment, located on a quiet crescent situated beside Kelvinbridge. One of only two homes sharing the building, the property benefits from a private entrance door and stairway, with enviable proximity to The Glasgow Academy and The University of Glasgow, rendering this a superb option for many.
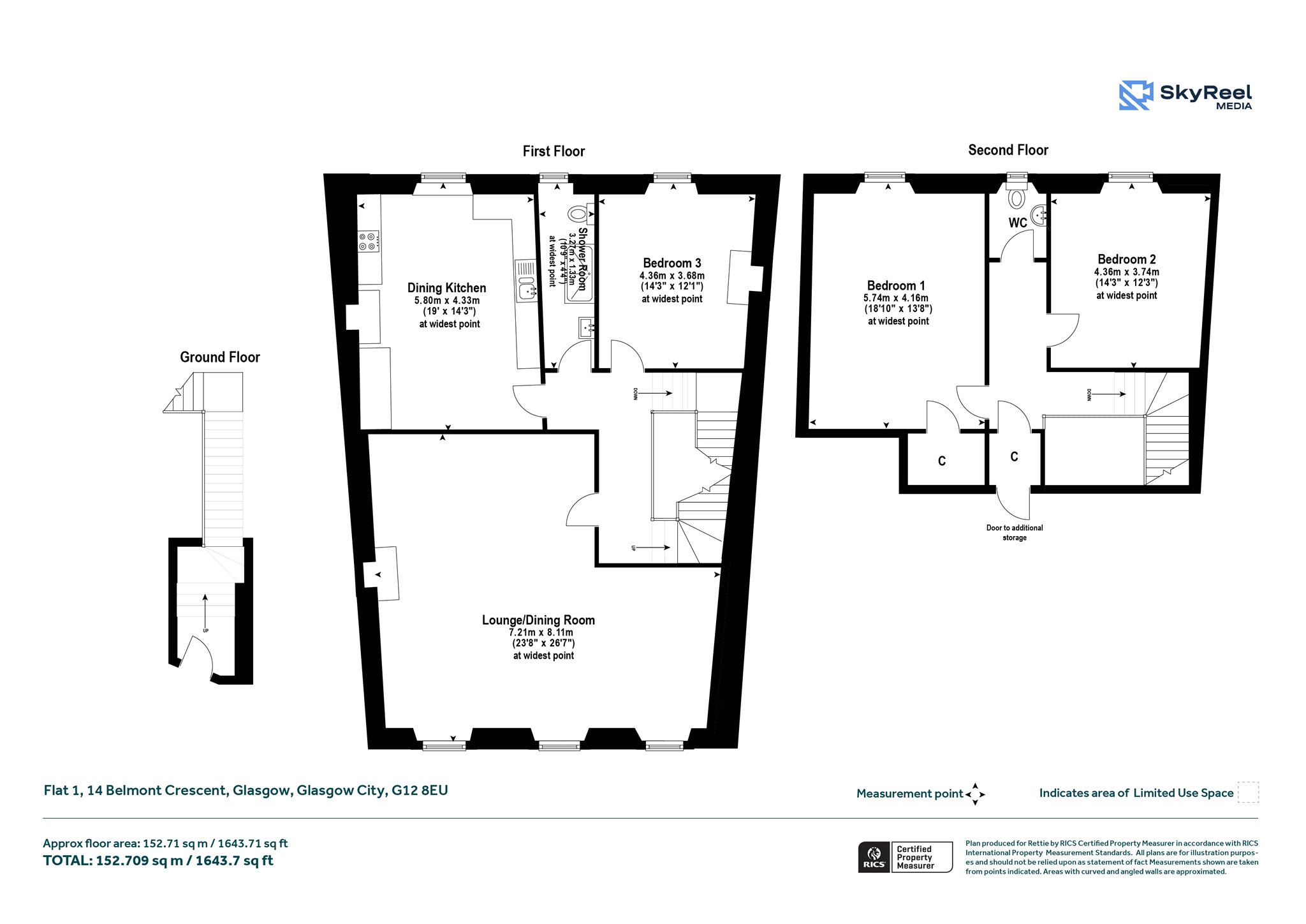
Offering generous period proportions, the layout centralises practical day-to-day living on the first floor with a large front lounge and dining kitchen providing superb options for socialising, while the upper level forms a quieter cosy space with two double bedrooms and a WC. Bedroom three on the first floor sits handily beside the shower room and works well as a study, guest room or home gymnasium.
Belmont Crescent is a highly desirable address, situated near the Botanic Gardens and just off Great Western Road in the West End of Glasgow. Renowned as one of the city’s finest examples of Victorian crescent architecture, the terrace was designed by architect John Honeyman and completed between 1869 and 1870. The graceful Classical-style homes are arranged in a sweeping curve around beautifully maintained residents’ pleasure gardens, complete with lawns, mature trees, and vibrant planting. “The Kelvin Way” and famed Kelvingrove Park are just a short stroll past the Kelvin Stevenson Memorial Church, and nearby you will find plenty of cafés and boutiques, while Kelvinbridge Underground places the city centre and beyond within easy reach. Riverside paths along the Kelvin offer miles of walking and cycling, and cultural landmarks including Kelvingrove Art Gallery & Museum and the Botanic Gardens are in close proximity. Private residents’ off-street parking provides exceptional convenience, rounding off a superb opportunity in a fantastic Glaswegian West End setting.
Accommodation
- “Flying” stone staircase entranceway to shared vestibule, and private front door leading to internal private stairs.
- Private front door to staircase leading to first floor landing, with traditional balustrade and ornate cornice.
- Gorgeous “L” shaped front lounge with three tall sash and case windows to the front, overlooking the immaculate communal gardens. The room is extensively decorated with multiple rows of cornicing, a neoclassical frieze with rosette embellishments and has beautiful hardwood flooring and marble focal fireplace.
- Spacious kitchen with ample space for dining, hardtop surfaces, fitted cabinetry, focal marble fireplace and single window to the rear.
- Bedroom three with hardwood flooring, focal point fireplace and single window to the rear.
- Three piece family shower room with contemporary tiling and fittings, and window to the rear.
- Stairway to upper level with beautiful circular copula skylight and eave storage access.
- Principal (main) bedroom with traditional hardwood floors and single window to the rear.
- Bedroom two is also a double bedroom, with focal fireplace and single window to the rear.
- Two piece W/C with window to the rear.
- Access to the residents’ pleasure gardens in the middle of the crescent.
- Availability of on street resident’s parking.
More Details
EPC: D
Council Tax: E
Tenure: Freehold
Your home may be repossessed if you do not keep up repayments on your mortgage.
There may be a fee for mortgage advice. The actual amount you pay will depend upon your circumstances. The fee is up to 1% but a typical fee is 0.3% of the amount borrowed.
Similar Properties
Looking To Sell Or Let?
Rettie is one of the most trusted and well-respected names in property. Our unrivalled market knowledge helps people from around the world buy, sell, let and develop property in Scotland and the North East of England - from city apartments and rural cottages to large townhouses and prime country homes, farms and estates. We deal with some of the most prestigious properties on the market, but provide the same exceptional standards of service and value for money to all our clients.
