Offers Over £189,000
Apartment
2 Bedrooms
1 Bathroom
1 Reception Room
755 sq.ft
Communal Garden
Garage
Property Description
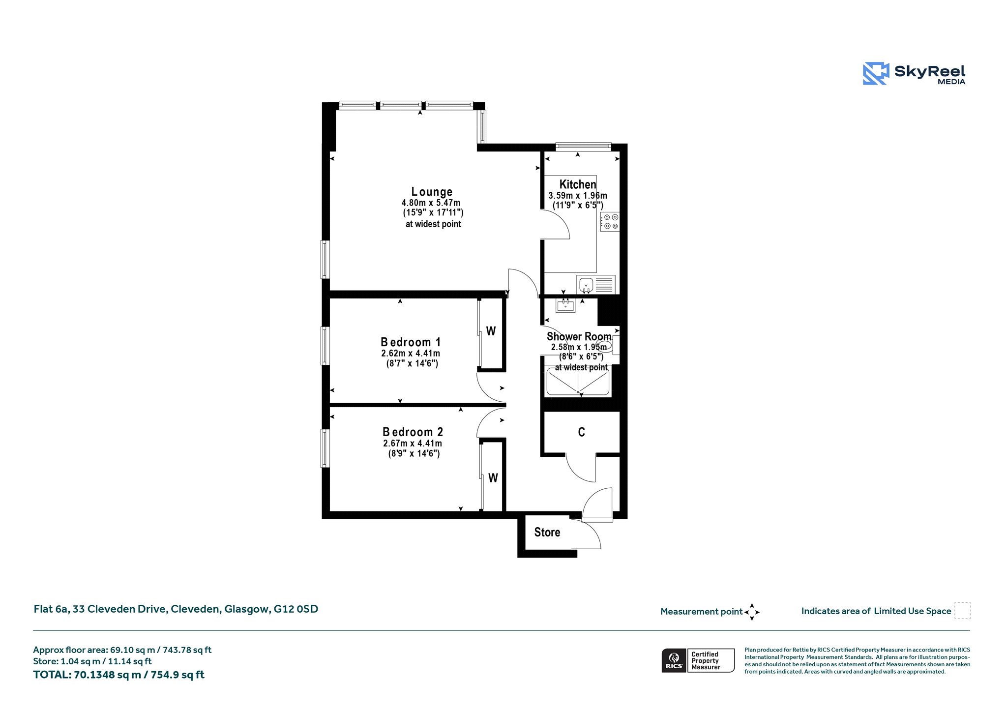
This bright two bedroom sixth floor apartment enjoys a peaceful setting within Balgray Court on Cleveden Drive and takes full advantage of its lofted situation, with outstanding open southward views across the West End. Broad picture windows in the lounge and bedrooms maximise the outlook and natural light, while the interior is finished in calm, neutral tones with a contemporary fitted kitchen and stylish modern shower room, all presented in immaculate order.
Balgray Court is a well-regarded, lift-serviced development with secure entry to both front and rear, shared off-street residents’ parking and beautifully maintained communal gardens. Day-to-day living is made easier by an indoor drying facility, a walled outdoor drying area and the presence of a full-time caretaker, all contributing to a relaxed, low-maintenance lifestyle.
The location is extremely convenient, with Hyndland Road only a short walk away for a wide selection of cafes, restaurants and everyday amenities. A quieter route via Ford Road leads directly to the Botanic Gardens and Kelvin Way. Kelvinside Academy sits at the foot of the hill, with further well-regarded local schooling close by and neighbourhood shopping available on Cleveden Road. The property will suit first-time buyers, downsizers and anyone seeking a well-positioned West End home or investment, particularly those who value far-reaching views.
Accommodation
- Secure communal entry system.
- Communal hallway with lift and stair access to all floors.
- Welcoming reception hallway with excellent storage off.
- Spacious lounge / dining room with broad picture windows, generous space for both seating and dining, and superb panoramic views over the West End and beyond.
- Contemporary fitted kitchen with sleek light cabinetry, worktops, tiled splashback, integrated appliances and window to the side enjoying an open outlook.
- Two double bedrooms, each with fitted wardrobe storage and elevated, far-reaching views.
- Stylish three piece shower room with walk-in shower enclosure and electric shower, wc and wash hand basin, finished with quality tiling.
- Private secure storage cupboard accessed from the shared hallway.
- Double glazing.
- Electric heating.
- Attractive communal landscaped gardens with lawned areas and seating.
- Dedicated off-street residents’ parking.
More Details
EPC: E
Council Tax: D
Tenure: Freehold
Your home may be repossessed if you do not keep up repayments on your mortgage. There may be a fee for mortgage advice. The actual amount you pay will depend upon your circumstances.
Similar Properties
Looking To Sell Or Let?
Rettie is one of the most trusted and well-respected names in property. Our unrivalled market knowledge helps people from around the world buy, sell, let and develop property in Scotland and the North East of England - from city apartments and rural cottages to large townhouses and prime country homes, farms and estates. We deal with some of the most prestigious properties on the market, but provide the same exceptional standards of service and value for money to all our clients.
