32 Southampton Drive, Kelvindale, Glasgow, G12 0LN
Property Description
Tucked away within one of Kelvindale’s most peaceful residential addresses, this professionally extended mid-terraced villa offers bright, spacious family accommodation within a highly private, elevated position. With homes lining only one side of this quiet street and excellent natural light throughout, Southampton Drive is widely regarded as one of the area’s most desirable settings.
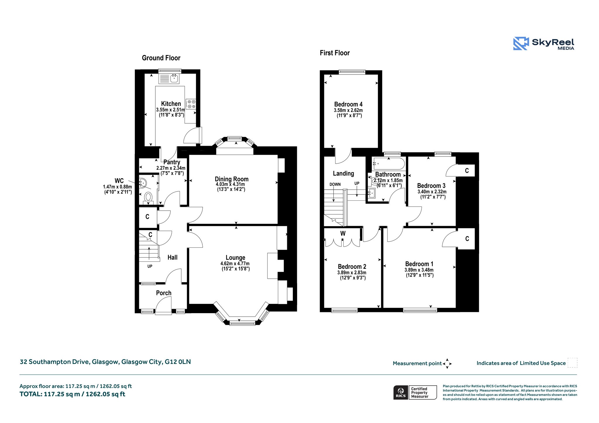
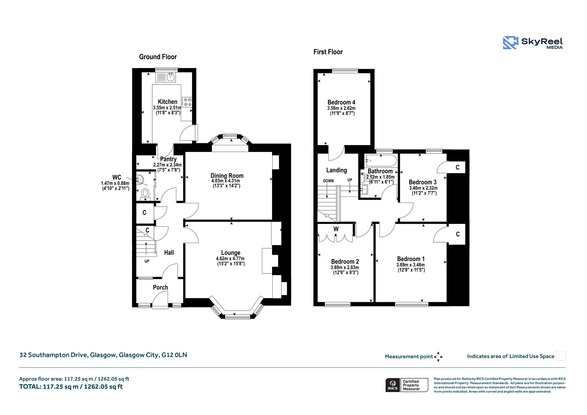
The property is an extremely well-maintained and upgraded four-bedroom home, benefitting from a substantial two-storey rear extension which has created a generous kitchen space and an additional bedroom at half-landing level — a rare and highly attractive feature for this style of home.
Externally, the house is set behind a beautifully landscaped front garden completed in 2024, while the enclosed rear garden has also been comprehensively upgraded to provide a low-maintenance combination of lawn and composite decking, ideal for family use.
Internally, the accommodation is presented in excellent condition throughout and comprises: storm porch, welcoming reception hallway, bright front-facing living room with bay window and fireplace, rear dining room with bay window, utility corridor with WC, and a fitted kitchen with integrated appliances and direct access to the garden.
Upstairs, there is a fourth bedroom at half-landing level, currently used as a playroom, with three further well-proportioned bedrooms on the upper floor alongside a modern family bathroom. The property is further enhanced by a spacious floored attic, providing excellent additional storage.
Kelvindale is a popular West End suburb, well placed for local amenities, excellent schooling, green spaces, and transport links including Kelvindale train station, with Byres Road and the wider West End within easy reach.
________________________________________
Attributes
• Quiet setting on one of Kelvindale’s most desirable residential streets
• Elevated position with excellent natural light throughout
• Extended mid-terraced villa offering spacious family accommodation
• Rare four-bedroom layout, including additional bedroom at half-landing level
• Two bright public rooms with bay windows
• Stylish fitted kitchen with integrated appliances and garden access
• Utility corridor with WC
• Modern family bathroom with contemporary finishes
• Large floored attic providing excellent storage space
• Professionally landscaped front and rear gardens completed in 2024
• Enclosed, low-maintenance rear garden with composite decking and lawn
• High-performance UPVC double glazing and modern external doors
• Convenient for Kelvindale train station, West End amenities, schools and parks
More Details
Situation: Private Garden
Council Tax Band: E
Tenure: Freehold
Your home may be repossessed if you do not keep up repayments on your mortgage.
There may be a fee for mortgage advice. The actual amount you pay will depend upon your circumstances. The fee is up to 1% but a typical fee is 0.3% of the amount borrowed.
Similar Properties
Looking To Sell Or Let?
Rettie is one of the most trusted and well-respected names in property. Our unrivalled market knowledge helps people from around the world buy, sell, let and develop property in Scotland and the North East of England - from city apartments and rural cottages to large townhouses and prime country homes, farms and estates. We deal with some of the most prestigious properties on the market, but provide the same exceptional standards of service and value for money to all our clients.
