Flat E, 267 Kelvindale Road, Kelvindale, Glasgow, G12 0QU
Offers Over £129,000
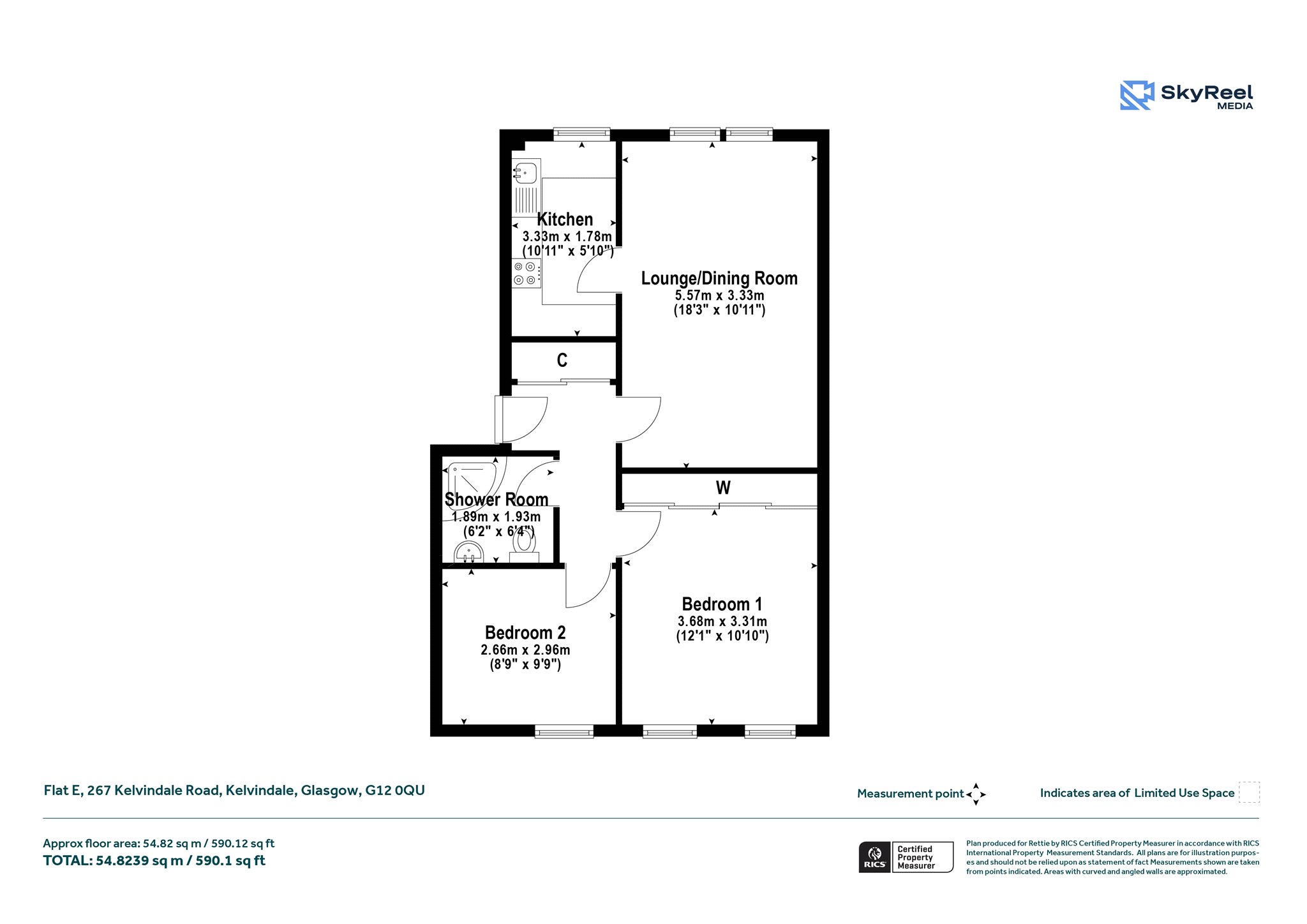
Upper Floor Apartment
2 Bedrooms
1 Bathroom
1 Reception Room
590 sq.ft
Communal Garden
Off Street Parking
Property Description
Situated within the popular Kelvindale district, this well-presented two-bedroom flat offers stylish, well-appointed accommodation ideal for first-time buyers and professionals.
The interior is immaculately presented throughout, having been thoughtfully maintained by the current owners to create a warm and welcoming home. At the heart of the property is a superb living/dining room, a bright and generously proportioned space perfect for both relaxing and entertaining. Just off the main living area, the kitchen is well-equipped and cleverly designed to maximise both storage and workspace. There are two spacious double bedrooms, each offering excellent natural light and ample room for free-standing furniture (bedroom one benefitted from fitted mirrored wardrobes). Completing the accommodation is a modern three-piece shower room.
Further benefits include excellent storage throughout, including access to a sizeable attic space, providing valuable additional room rarely found in properties of this type. Externally, the flat enjoys off-street residents’ parking, enhancing convenience in this sought-after residential area.
Positioned close to local amenities, green spaces, and excellent transport links, this is a truly turnkey home in a prime West End location.
Accommodation:
- Security entry system
- Communal entrance hall
- Welcoming reception hall with useful storage cupboard together with access to attic space providing invaluable additional storage
- Fabulous main living/dining room with two windows to the front
- Charming kitchen off the living/dining room complete with a range of base and wall units, appliances and window to the front
- Bedroom one with two windows to the rear and fitted mirrored wardrobes
- Bedroom two with window to the rear
- Modern three-piece shower room
- Gas central heating
- Double glazing
- Off street residents’ car park to the rear of the building
More Details
EPC: C
Council Tax: D
Tenure: Freehold
Your home may be repossessed if you do not keep up repayments on your mortgage. There may be a fee for mortgage advice. The actual amount you pay will depend upon your circumstances.
Similar Properties
Looking To Sell Or Let?
Rettie is one of the most trusted and well-respected names in property. Our unrivalled market knowledge helps people from around the world buy, sell, let and develop property in Scotland and the North East of England - from city apartments and rural cottages to large townhouses and prime country homes, farms and estates. We deal with some of the most prestigious properties on the market, but provide the same exceptional standards of service and value for money to all our clients.
