Upper Duplex, 15A Cleveden Road, Kelvinside, Glasgow, G12 0PQ
Offers Over £725,000
Duplex Apartment
4 Bedrooms
2 Bathrooms
2 Reception Rooms
3,346 sq.ft
Private Garden
Garage
Property Description
A stupendous four bedroom upper duplex apartment that combines generous period proportions with a versatile layout suited modern family life, further enhanced by a private main door entrance, garden, and a garage to the rear.
From the outset the home makes a strong impression, with a sandstone slabbed pathway leading to the private entrance via the external forestair and covered porch. Having then crossed the threshold, the scale of the rooms and the natural light evoke a calm, airy aura, partnered by a sensible layout that flows seamlessly and connects perfectly with modern lifestyles.
The property’s social spaces are a real highlight. A wonderful front lounge enjoys a leafy outlook and excellent natural light, while the second public room creates a cosy day-to-day retreat and an ideal family space, with the flexibility to be used as an additional bedroom if desired.
The kitchen is the beating heart of the home; stylish, well planned and perfect for both busy mornings and daily dining, while the prodigious inner hall makes for a uniquely charming dining setting beneath a stained-glass cupola. Once upstairs, the spacious bedrooms enjoy calm open aspects, and outside the private garden offers low-maintenance practicality with patio and decked seating, with the garage adding a valuable layer of convenience.
The property has an enviable situation, being just a few moments stroll from the entrance to The Botanical Gardens on Ford Road and leading independent schools are a short commutable distance. The West End’s main thoroughfares and vibrant amenities are also within walking distance, with a mixture of transport links and supermarkets readily available, making this all-encompassing property a very compelling consideration for professionals and young families.
With an exciting combination of scale, privacy and position, 15A Cleveden Road stands out as a perfect example of a home that marries the character of a Victorian villa with the ease of modern living and delivers a setting every bit as impressive as its address.
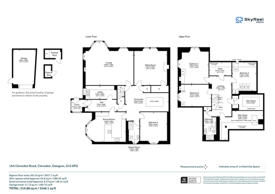
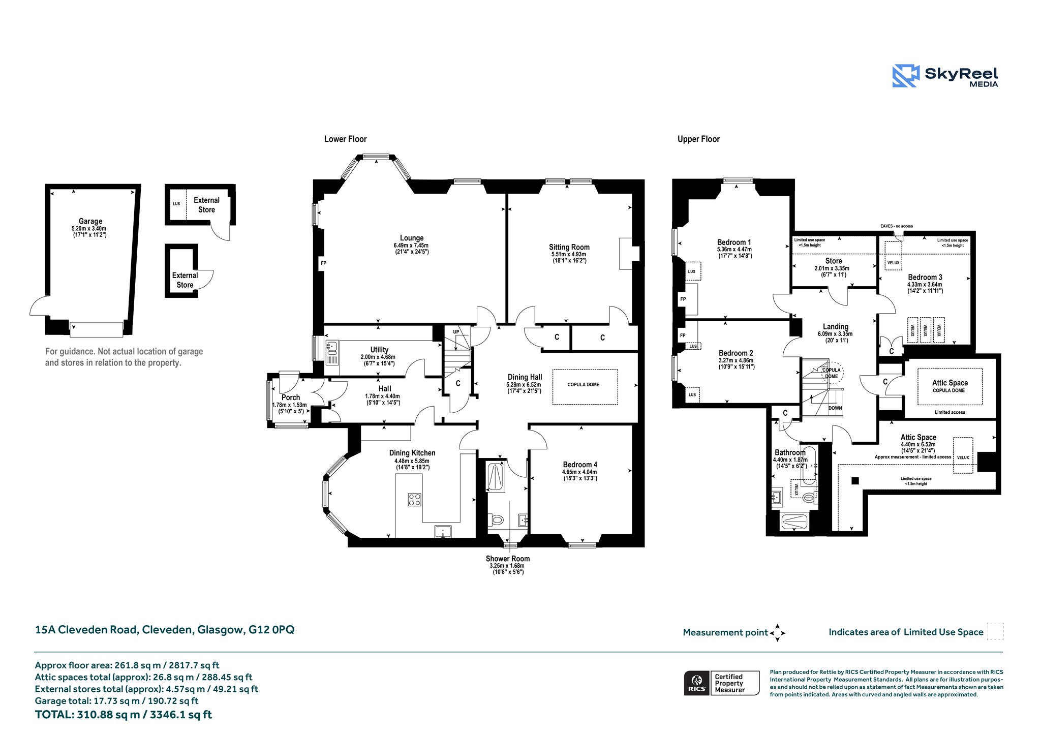
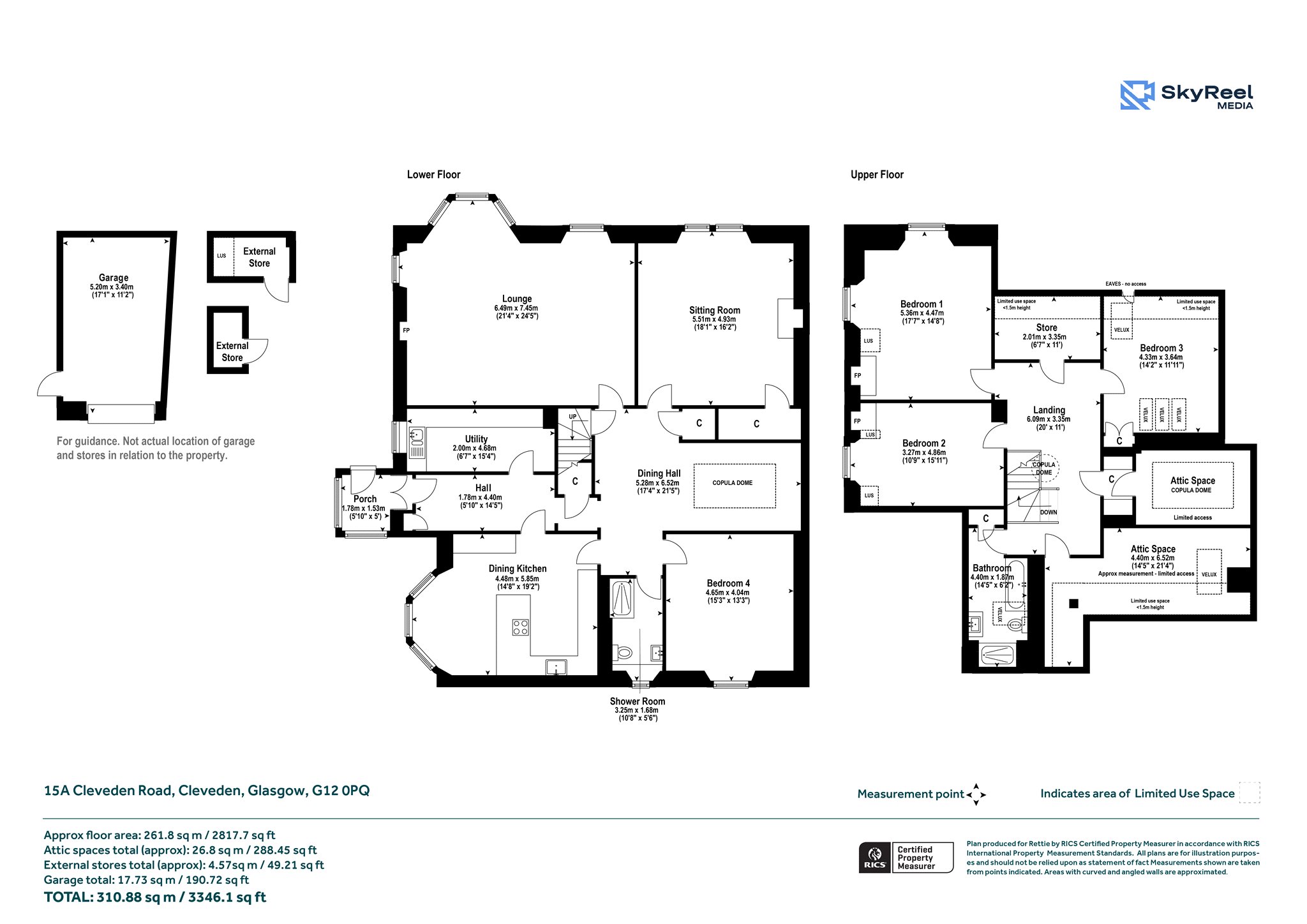
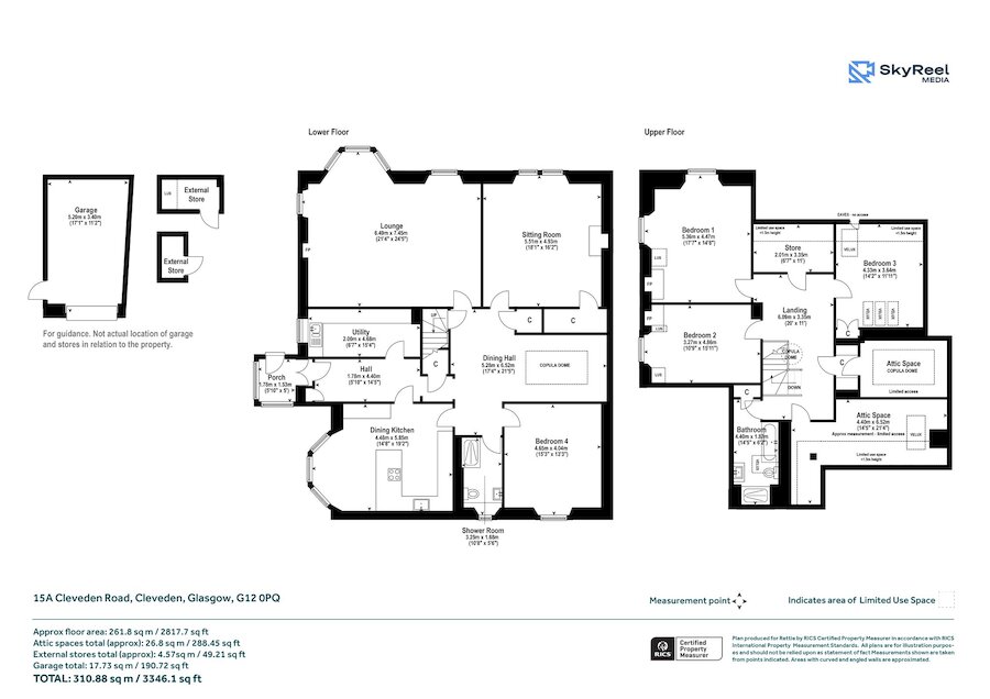
Accommodation
- A sandstone stone slabbed pathway leads to an exterior forestair rising along the side elevation, reaching a covered porch and private main door entrance.
- Storm door entranceway at first floor level.
- Inviting hallway with ornate ceiling cornice and two storage cupboards off.
- Gorgeous front lounge with pleasant open views granted by a three section bay window, further supplemented by two additional windows to the side, which creates a very bright and leafy front outlook. The room is of exceptionally spacious proportions and presents enviable opportunity for entertaining or relaxed family living. Traditional flooring complements the attractive original ceiling cornice, and decorative frieze while the room is further embellished by decorative wall detailing and centered around a contemporary inset gas fireplace.
- Superb bespoke-fitted dining kitchen, with contrasting soft ivory wall cabinets over deep navy base units, set against striking quartz worktops. Integrated Bosch appliances include a dishwasher, oven and 3-in-1 microwave/oven/grill, alongside an induction hob. A breakfasting peninsula is complemented by a dedicated coffee/baking station, while plantation shutters and an oriel bay window create a bright dining area with space for a table.
- A secondary living room offers a cosy retreat and ideal TV/family space, with scope to use as an additional bedroom if desired. Period details include ceiling cornice, a Carrara marble mantel and a gas fireplace, alongside a walk-in wardrobe.
- A downstairs double room provides brilliant versatility, currently utilised as a fourth bedroom, this could easily accommodate a dedicated office, gym or children’s playroom.
- A three piece shower room with window to the rear, contemporary tiled finish and spacious walk in shower cubicle.
- Invaluable galley utility room with window to the side, worktop surfaces, integrated storage, ceramic sink and traditional clothes drying “pulley”.
- The generously sized hallway comfortably accommodates a large dining table within a recessed area, which is set beneath a stained-glass skylight cupola.
- Stairway from lower hall to upper landing with storage off, eaves access and brightened by circular cupola skylight.
- Principal (main) bedroom with dual aspect windows to front and side and lovely serene views over Cleveden Gardens.
- Bedroom two is also of double proportions with window to the side.
- Bedroom three has a Velux window to the front, access to eaves storage and an integrated wardrobe.
- Four piece family bathroom with bath, separate shower cubicle and Velux window.
- Delightful private garden space with a low maintenance artificial lawn, patio seating area, fantastic decking area and external understairs storage.
- Garage located in the rear lane.
- Double glazing.
- On street parking.
More Details
EPC: D
Council Tax: G
Tenure: Freehold
Your home may be repossessed if you do not keep up repayments on your mortgage. There may be a fee for mortgage advice. The actual amount you pay will depend upon your circumstances.
Similar Properties
Looking To Sell Or Let?
Rettie is one of the most trusted and well-respected names in property. Our unrivalled market knowledge helps people from around the world buy, sell, let and develop property in Scotland and the North East of England - from city apartments and rural cottages to large townhouses and prime country homes, farms and estates. We deal with some of the most prestigious properties on the market, but provide the same exceptional standards of service and value for money to all our clients.




























































































































