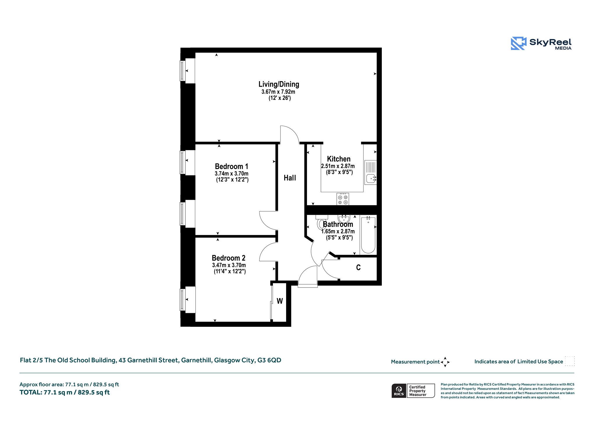
Flat 2/5 The Old School Building, 43 Garnethill Street, Garnethill, Glasgow City, G3 6QD
Offers Over £199,000
Upper Floor Apartment
2 Bedrooms
1 Bathroom
1 Reception Room
829 sq.ft
Communal Garden
Secure Parking
Property Description
Extending to over 829 sq ft, this generous two-bedroom apartment is situated on the second floor within the converted former Glasgow High School for Girls of circa 1899-1968. The school building was refurbished in 1998 providing a range of residential apartments, centring around a private courtyard and carpark and with lovely red glazed brick frontage adjoining the blond sandstone exterior. Located in popular Garnethill, the property offers easy access to both Glasgow’s City Centre and West End, as well as having excellent transport links with nearby M8 motorway network.
Accessed via secure entry, there is stair access to each level. Entered via a welcoming hallway, notable features include the generous open plan living space spanning 26 ft and with fitted kitchen set back and complete with a range of base and wall units with integrated oven, hob & hood and space for under counter appliances, two double bedrooms with double glazed sash window and views east over the building’s courtyard gardens, main three-piece bathroom with over bath shower and completed with tiled wall and floor coverings. The property has electric wet central heating and there is residents parking to the rear with secure barrier access.
Situation
Located on the corner Garnethill Street and Buccleuch Street in Garnethill; a quiet and predominantly residential area, only few minutes’ walk from both Sauchiehall Street, which has undergone a major public realm improvements programme and a selection of over ground and underground train stations including Charing Cross Station, St Georges Cross Underground Station or Cowcaddens Underground Station. The property is conveniently located for access to the City Centre, the Merchant City, International Financial Services District, the West End and Finnieston where a wealth of amenities including both general and specialist shopping, wine bars and many highly acclaimed restaurants can be found. The property is in close proximity to the Glasgow School of Art; Royal Conservatoire, Strathclyde, Caledonian & Glasgow Universities. The area benefits from frequent public transport with easy access to nearby subway stations; Queens Street and Central Train Stations. The nearby M8/M80 ensures good commuter access throughout the Central Belt.
Travel Directions
By car from our office on Bath Street proceed west along Bath Street turning right onto Douglas Street and right again on to Sauchiehall Street. At the junction turn left into Rose Street and then right onto Renfrew Street. Taking the left filter lane, turn left onto Cambridge Street and then first left into Hill Street. Proceed up Hill Street taking the third road on the right down onto Scott Street and then first left into Buccleuch Street and then first left again into Garnethill Street where the entrance to No. 43 can be found almost immediately on the right-hand side.
More Details
Situation: Communal Garden
Council Tax Band: D
Tenure: Contact Branch
Your home may be repossessed if you do not keep up repayments on your mortgage.
There may be a fee for mortgage advice. The actual amount you pay will depend upon your circumstances. The fee is up to 1% but a typical fee is 0.3% of the amount borrowed.
Similar Properties
Looking To Sell Or Let?
Rettie is one of the most trusted and well-respected names in property. Our unrivalled market knowledge helps people from around the world buy, sell, let and develop property in Scotland and the North East of England - from city apartments and rural cottages to large townhouses and prime country homes, farms and estates. We deal with some of the most prestigious properties on the market, but provide the same exceptional standards of service and value for money to all our clients.
