Offers Over £155,000
Upper Floor Apartment
2 Bedrooms
2 Bathrooms
1 Reception Room
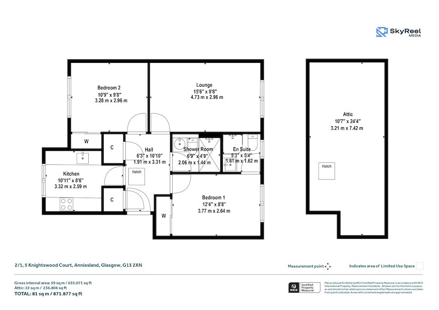
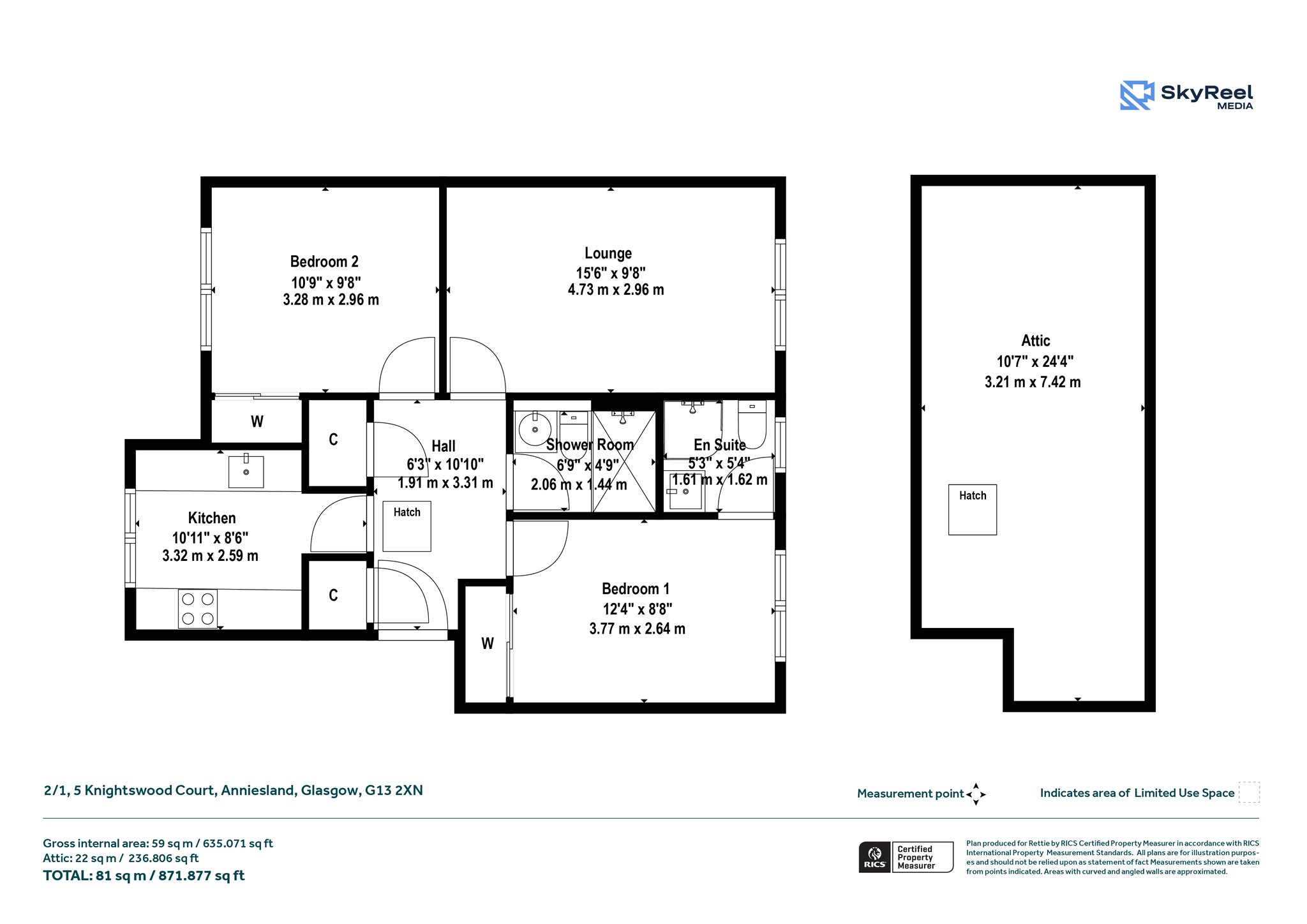
872 sq.ft
Communal Garden
Off Street Parking
Property Description
Set within an attractive modern development, this beautifully appointed two-bedroom second/top-floor apartment offers bright, instantly appealing living space and benefits from the added advantages of a private loft storage space and a designated car parking space.
Knightswood Court is a popular development of modern apartments, just off Knightswood Road in Anniesland. This central yet peaceful position offers quick, easy access to a broad spectrum of amenities, including everything from supermarkets, shops, and leisure facilities to public transport links and major road networks.
As such, within minutes of leaving the property, it is possible to reach every amenity required. This part of Anniesland is particularly popular with medical professionals who wish to reside within cycling distance of the QEUH and Gartnavel Hospitals. Students attending Glasgow University’s Veterinary Campus at the Garscube Estate will also be attracted to the property, given that it is within two miles of Knightswood Court.
The development itself is an elegant modern apartment complex with neatly maintained landscaped garden grounds and a residents’ car park. The buildings are externally presented in an attractive combination of red and blonde facing brick, all set beneath concrete tiled roofs. Number 5 is accessed via a secure communal entrance door with an intercom entry system. The communal hall and stairway are well maintained and cleaned regularly by the appointed factor. The property for sale is located on the second/top floor, accessed via the left-hand doorway.
Internally, this is a bright and beautifully appointed apartment offering extremely comfortable, modernised accommodation with excellent levels of purpose-built storage. In brief, the accommodation comprises: a broad entrance hall; a comfortable living room which faces south and offers space for lounge furniture as well as a four-seater dining table and chairs; a stunning re-fitted kitchen with attractive facings, quartz work surfaces, and a full complement of integrated appliances, including an induction hob; two well-proportioned double bedrooms, both with built-in wardrobes; an en-suite shower room off the principal bedroom; and a re-fitted main shower room with white suite and contemporary tiling. As mentioned, the apartment also benefits from a private loft space for storage, accessed via a hatch and ladder from the hall.
Given the size, specification, and position of the property, early viewing is strongly recommended.
Attributes
• Beautifully appointed two-bedroom second/top-floor apartment
• Bright, south-facing living room with dining space
• Stunning re-fitted kitchen with quartz work surfaces and integrated appliances
• Two double bedrooms with built-in wardrobes
• En-suite shower room plus stylish re-fitted main shower room
• Private loft storage accessed via hatch and ladder
• Designated residents’ parking space
• Secure entry system and well-maintained communal areas
• Attractive modern development with landscaped grounds
• Quiet yet central Anniesland location
• Excellent access to transport links, amenities, and road networks
• Within cycling distance of QEUH and Gartnavel Hospitals
• Close to Glasgow University Veterinary Campus (Garscube Estate)
More Details
EPC: C
Council Tax: E
Tenure: Freehold
Your home may be repossessed if you do not keep up repayments on your mortgage.
There may be a fee for mortgage advice. The actual amount you pay will depend upon your circumstances. The fee is up to 1% but a typical fee is 0.3% of the amount borrowed.
Similar Properties
Looking To Sell Or Let?
Rettie is one of the most trusted and well-respected names in property. Our unrivalled market knowledge helps people from around the world buy, sell, let and develop property in Scotland and the North East of England - from city apartments and rural cottages to large townhouses and prime country homes, farms and estates. We deal with some of the most prestigious properties on the market, but provide the same exceptional standards of service and value for money to all our clients.
