Main Door Garden Flat, 41A Athole Gardens, Dowanhill, Glasgow, G12 9BQ
Offers Over £345,000
Lower Ground Apartment
2 Bedrooms
2 Bathrooms
2 Reception Rooms
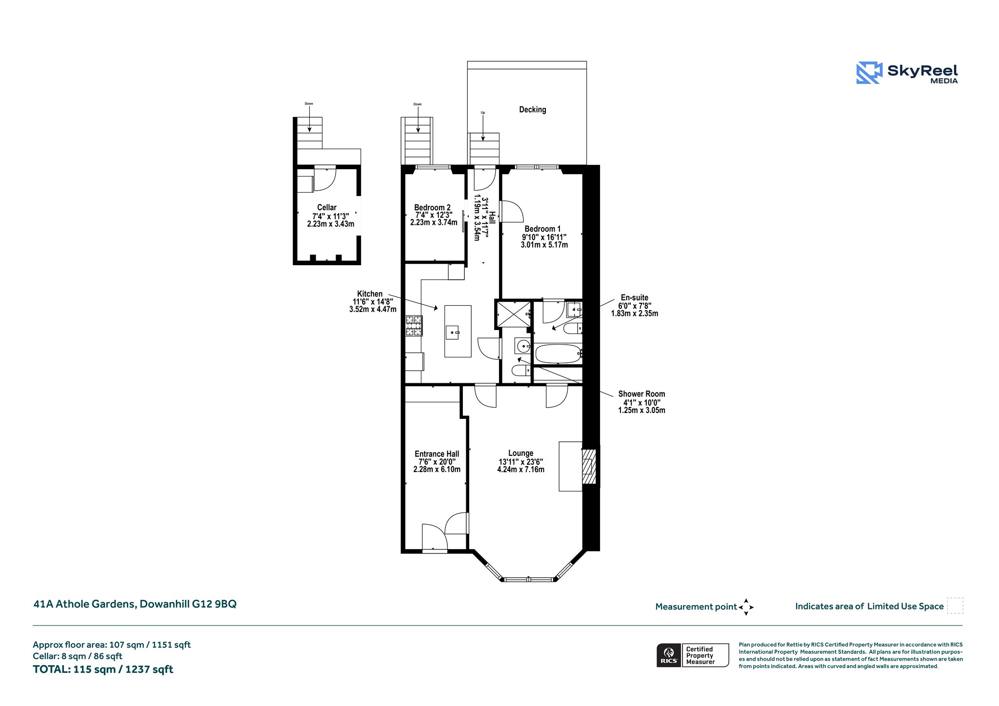
1,237 sq.ft
Private Garden
On Street/Permit
Property Description
Situated within one of the West End’s most desirable addresses, this exceptional two-bedroom lower ground floor conversion offers beautifully appointed, spacious accommodation with the significant advantages of main door access and a substantial private rear garden — features which are seldom available in Dowanhill.
Athole Gardens is a superb address in the extremely sought-after West End district of Dowanhill. For those not familiar with the area, it is home to some of the finest traditional homes in Glasgow and is known by residents as “the leafy village,” just off Byres Road. Private and extremely pretty, the streets of Dowanhill are lined with mature trees, and some addresses are fortunate enough to enjoy access to beautiful central gardens. This is an incredibly tranquil neighbourhood, yet all the amenities of Byres Road are within immediate reach. As such, this location appeals to everyone from students and academics seeking proximity to the University, to professional couples and downsizers. Athole Gardens is particularly special, as you will quickly appreciate during a viewing.
The property for sale enjoys a particularly private lower ground floor position at the foot of Athole Gardens and benefits from its own main door entrance, providing a heightened sense of independence and convenience that is seldom found within traditional West End conversions. To the rear, the generous private garden is a standout feature: a true sanctuary that invites morning coffee outdoors, summer dining with friends, or quiet evenings surrounded by greenery.. In addition the property has access to Athole Gardens, a immense pleasure gardens directly across from the flat.
Internally, this is a highly attractive and versatile home with generous proportions throughout. As you will see from the attached photographs and HD video, the property combines charming traditional features with a stylish, modern specification.
In brief, the accommodation extends to a very broad and welcoming reception hall which is of such comfortable scale that it can easily accommodate a dedicated home office area with shelving, or alternatively be utilised as a dining hall if desired. The beautiful bay-window living room is of superb proportions and features a wood-burning stove — a particularly desirable feature that creates a wonderful focal point and cosy atmosphere.
The living space flows through into a stunning semi open-plan kitchen, complete with a substantial central island and a full complement of integrated appliances including a range-style cooker and dishwasher — perfectly suited to modern living and entertaining. Just off the kitchen is a stylish, modern wet room, offering added convenience for guests and enhancing the home’s practical, flexible layout.
From the kitchen, a door leads directly to the private garden, creating superb indoor outdoor connectivity and further enhancing the sense of space and freedom.
There are two comfortable double bedrooms, each with a peaceful ambience. The principal bedroom is notably spacious, offering excellent fitted or freestanding furniture options and benefiting from its own en suite shower room. The second bedroom is equally flexible — currently used as a home office with a fold down futon, it effortlessly adapts to guest accommodation or creative workspace.
Overall, this is a remarkable home that combines the best of West End living: style, space, tranquillity, character, and exceptional outdoor access. Properties offering this level of privacy and lifestyle appeal in such a prime location are incredibly rare — making this a truly special opportunity.
Attributes
• Exceptional two-bedroom lower ground floor conversion
• Highly sought-after Dowanhill address on Athole Gardens
• Private main door entrance — rare and highly desirable feature
• Substantial, fully enclosed private rear garden with decking
• Access to beautiful central leisure gardens
• Moments from Byres Road and Glasgow University
• Peaceful “leafy village” setting in the heart of the West End
• Beautiful bay-window living room with wood-burning stove
• Stylish semi open-plan kitchen with large central island
• Integrated appliances including range-style cooker and large fridge freezer
• Extremely versatile broad reception hall (ideal home office or dining space)
• Two generous double bedrooms
• Wet room with shower
• Principal bedroom with en-suite bathroom
• Flexible second bedroom (guest room/home office)
- integrated storage and shelving in multiple rooms
• Excellent indoor-outdoor flow from kitchen to garden
• Rare opportunity combining space, privacy and prime location
More Details
EPC: C
Council Tax: D
Tenure: Freehold
Your home may be repossessed if you do not keep up repayments on your mortgage.
There may be a fee for mortgage advice. The actual amount you pay will depend upon your circumstances. The fee is up to 1% but a typical fee is 0.3% of the amount borrowed.
Similar Properties
Looking To Sell Or Let?
Rettie is one of the most trusted and well-respected names in property. Our unrivalled market knowledge helps people from around the world buy, sell, let and develop property in Scotland and the North East of England - from city apartments and rural cottages to large townhouses and prime country homes, farms and estates. We deal with some of the most prestigious properties on the market, but provide the same exceptional standards of service and value for money to all our clients.
