Offers Over £115,000
Upper Floor Apartment
2 Bedrooms
1 Bathroom
1 Reception Room
529 sq.ft
Communal Garden
On Street/Permit
Property Description
Situated within a highly convenient section of Maryhill Road, this bright and well-presented two-bedroom second floor tenement apartment offers comfortable living space within easy walking distance of both Glasgow’s West End and City Centre. Offering excellent value for money, this is an ideal purchase for students, young professionals and buy-to-let investors alike.
Maryhill Road is well placed for gaining quick, easy access to a wide range of amenities. From the vibrant cafés, bars and restaurants of the West End to the extensive shopping, leisure and transport facilities found in the City Centre, everything is within easy reach. The property is particularly well suited to students, being located approximately 1.2 miles from the University of Glasgow, around 1 mile from Glasgow Caledonian University and approximately 1.3 miles from Glasgow School of Art. All of these institutions are easily accessible on foot or by bicycle, making this an extremely convenient base for student living and, given the attractive price point, a strong investment opportunity for landlords.
The property is held within a traditional red sandstone tenement building which is maintained to a good standard by an appointed factor. Access is via a secure entrance door, and the communal hallways are presented in good order and cleaned regularly. To the rear of the building, residents can enjoy a well-kept communal garden which is laid to lawn and includes purpose-built refuse storage areas.
Internally, the apartment offers bright, airy and well-proportioned accommodation which has been carefully maintained and improved by the current owners. The interior is neutrally decorated throughout and is presented in walk-in condition, allowing the successful purchaser to move in and enjoy immediately.
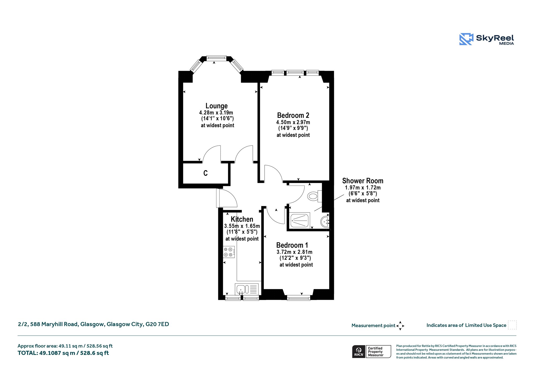
In brief, the accommodation extends to an entrance hall, a comfortable living room with useful recess cupboard, a spacious principal bedroom, and a second double-sized bedroom which enjoys a peaceful outlook over the rear garden. The galley-style kitchen is fitted with a range of units and appliances, while an internal shower room with white suite completes the accommodation.
Overall, this is a superb and affordable traditional flat which offers excellent value within a highly central and convenient location, making it an ideal home or investment opportunity.
More Details
Tenure: Freehold
EPC: C
Council Tax: C
Your home may be repossessed if you do not keep up repayments on your mortgage.
There may be a fee for mortgage advice. The actual amount you pay will depend upon your circumstances. The fee is up to 1% but a typical fee is 0.3% of the amount borrowed.
Similar Properties
Looking To Sell Or Let?
Rettie is one of the most trusted and well-respected names in property. Our unrivalled market knowledge helps people from around the world buy, sell, let and develop property in Scotland and the North East of England - from city apartments and rural cottages to large townhouses and prime country homes, farms and estates. We deal with some of the most prestigious properties on the market, but provide the same exceptional standards of service and value for money to all our clients.
