2/2, 3 Craigie Street, Govanhill, Glasgow, G42 8NG

Govanhill, Glasgow, G42 8NG
Under Offer
Pin View on map

Offers Over £125,000

House

Upper Floor Apartment

Bed

1 Bedroom

Bathroom

1 Bathroom

Reception

1 Reception Room

Tree

Communal Garden

Telephone

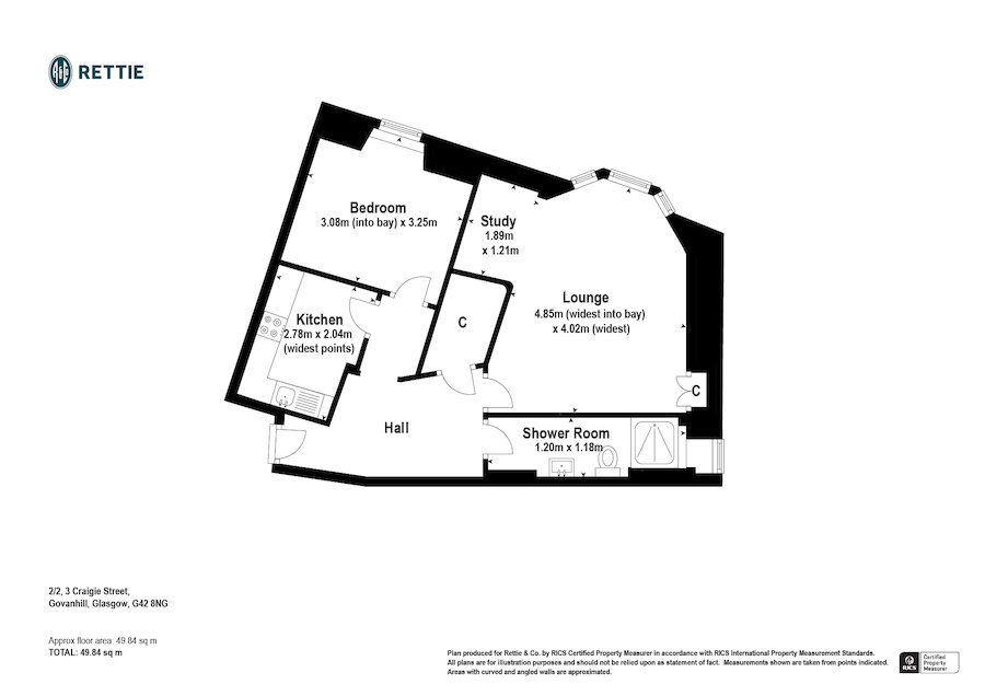
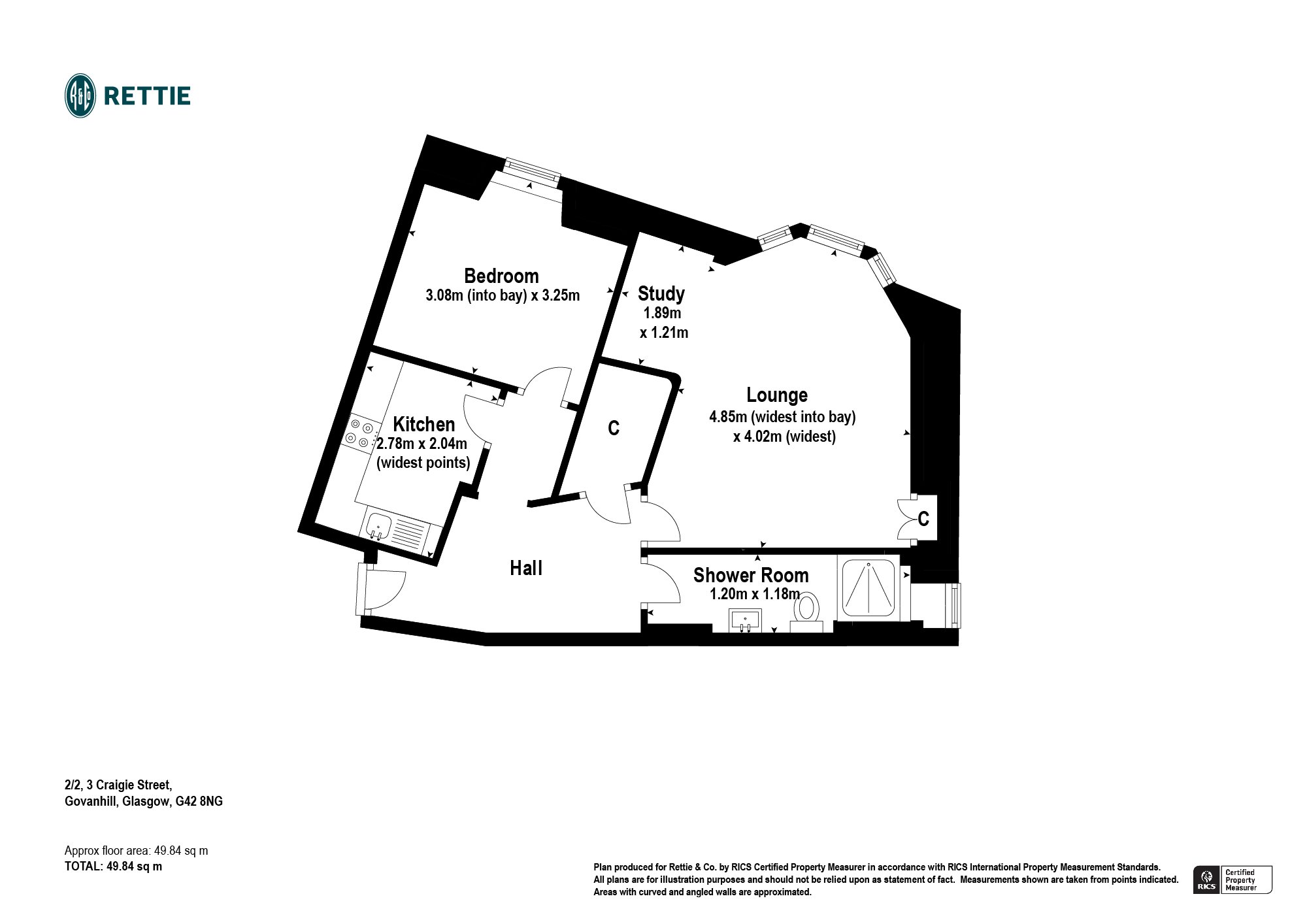
Property Description

Closing date Wednesday the 11th of March at 2.00pm

A beautiful one bedroom tenement flat, nestled in this popular pocket of Govanhill.

This second floor flat is in excellent condition, having undergone a full renovation as well as slight reconfiguration it a must for viewing in order to be appreciated.

The building itself is entered via a secure door entry system into well-kept communal stairwell leading to the apartment. 

The accommodation of the flat comprises a spacious reception hallway with large storage closet, large bay windowed lounge with a delightful nook currently set as the dining area, beautiful contemporary kitchen with a range of base and wall mounted units, wooden worktop and tiled splashback, a generous double sized bedroom and a tiled shower room with classical white two piece suite and large walk-in shower unit. 

The property also benefits from double glazing, gas central heating via a new heating system and contemporary decor throughout.

Govanhill has become one of the most sought after pockets to be found anywhere in Glasgow. The eclectic mix of bars, cafes and eateries make it enormously popular and with this flat you have them around the corner. There are also excellent transport links nearby including numerous bus routes on Pollokshaws Road and Queens Park train station a short distance away.

More Details

EPC - Band C
Tenure - Freehold
Council Tax - Band A

Contact Us

Alice Beedham

Alice Beedham

Sales Negotiator
Claire Black CIOBS

Claire Black CIOBS

Mortgage & Protection Advisor
Mortgage Calculator
Monthly payments
Please set an interest rate.

Your home may be repossessed if you do not keep up repayments on your mortgage.

There may be a fee for mortgage advice. The actual amount you pay will depend upon your circumstances. The fee is up to 1% but a typical fee is 0.3% of the amount borrowed.

Tax Calculator
LBTT calculator for properties purchased in Scotland. Stamp Duty calculator for properties purchased in England.
Land & buildings transaction tax (LBTT)
= £0
New build house with stone and timber cladding

Looking To Sell Or Let?

Rettie is one of the most trusted and well-respected names in property. Our unrivalled market knowledge helps people from around the world buy, sell, let and develop property in Scotland and the North East of England - from city apartments and rural cottages to large townhouses and prime country homes, farms and estates. We deal with some of the most prestigious properties on the market, but provide the same exceptional standards of service and value for money to all our clients.