Property Description
9 Lynedoch Place offers the rare opportunity to purchase an exceptional A-listed four storey Georgian townhouse with front and rear gardens, ideally situated in the heart of Edinburgh’s prestigious West End.
Presented to the market for the first time in 30 years, this much-loved family home retains a wealth of original period features, including high ceilings, ornate cornicing/plasterwork, sash and case windows, domed ceiling cupola, and marble fireplaces. Whilst now in need of modernisation, the property presents the incoming purchaser the versatility to bespoke to their individual needs.
The property offers spacious accommodation comprising eight bedrooms (two with ensuite bathrooms) and four reception rooms. Externally, the property further benefits from a front garden and south facing rear garden ideal for al fresco dining and entertaining.
Located on the western-edge of the historic New Town – a UNESCO World Heritage site, Lynedoch Place is ideally situated in within easy walking distance of the prestigious West-End, the city’s financial, business and shopping districts, a variety of acclaimed restaurants and excellent recreational facilities and is only a short walk from sought after Stockbridge with its abundance of independent shops, restaurants and bars.
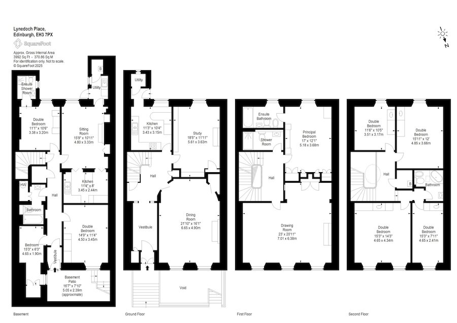
Summary Of Accommodation
Ground Floor
Entrance Vestibule and Hall, Dining Room, Study, Kitchen, Utility
First Floor
Drawing Room, Principal Bedroom with Ensuite Bathroom, Shower Room
Second Floor
Four Double Bedrooms, Bathroom, Hall Storage Cupboard
Lower Ground Floor
Sitting Room, Utility, Kitchen, Double Bedroom with Ensuite Shower Room, Two Further Bedrooms, Bathroom with Storage Cupboard
Outside Space
Enclosed Front Patio & Garden, Rear Patio Garden
More Details
EPC: E
Council Tax Band: H
Tenure: Freehold
Viewing by appointment.
Your home may be repossessed if you do not keep up repayments on your mortgage.
There may be a fee for mortgage advice. The actual amount you pay will depend upon your circumstances. The fee is up to 1% but a typical fee is 0.3% of the amount borrowed.
Similar Properties
Looking To Sell Or Let?
Rettie is one of the most trusted and well-respected names in property. Our unrivalled market knowledge helps people from around the world buy, sell, let and develop property in Scotland and the North East of England - from city apartments and rural cottages to large townhouses and prime country homes, farms and estates. We deal with some of the most prestigious properties on the market, but provide the same exceptional standards of service and value for money to all our clients.
