Offers Over £1,150,000
Semi Detached House
5 Bedrooms
2 Bathrooms
2 Reception Rooms
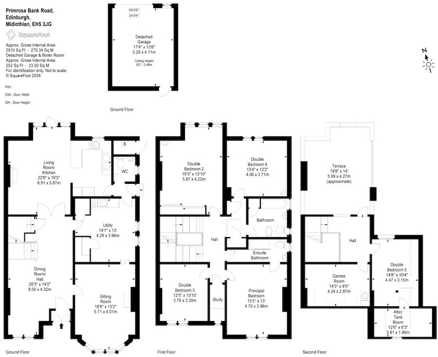
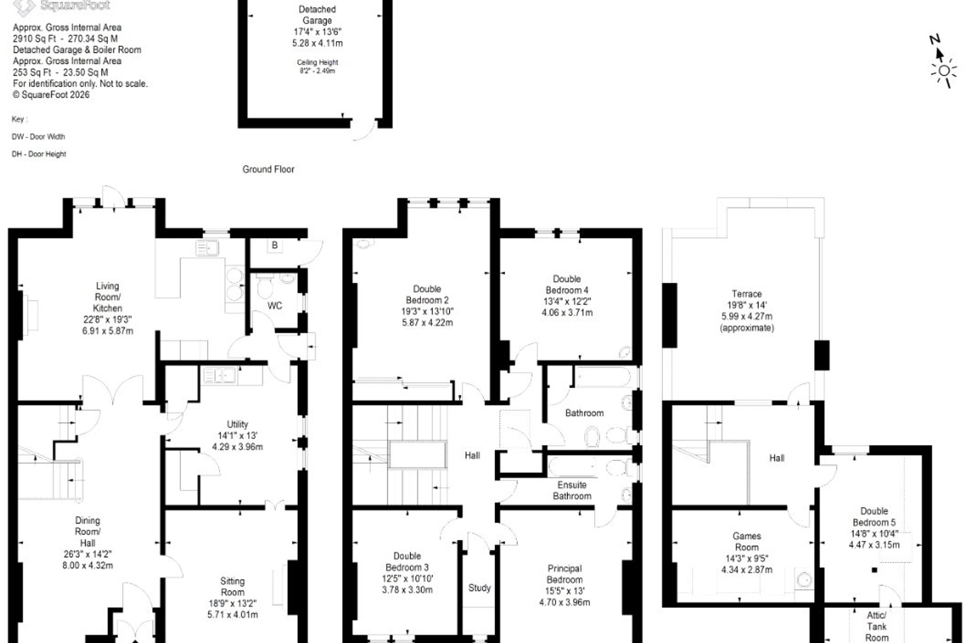
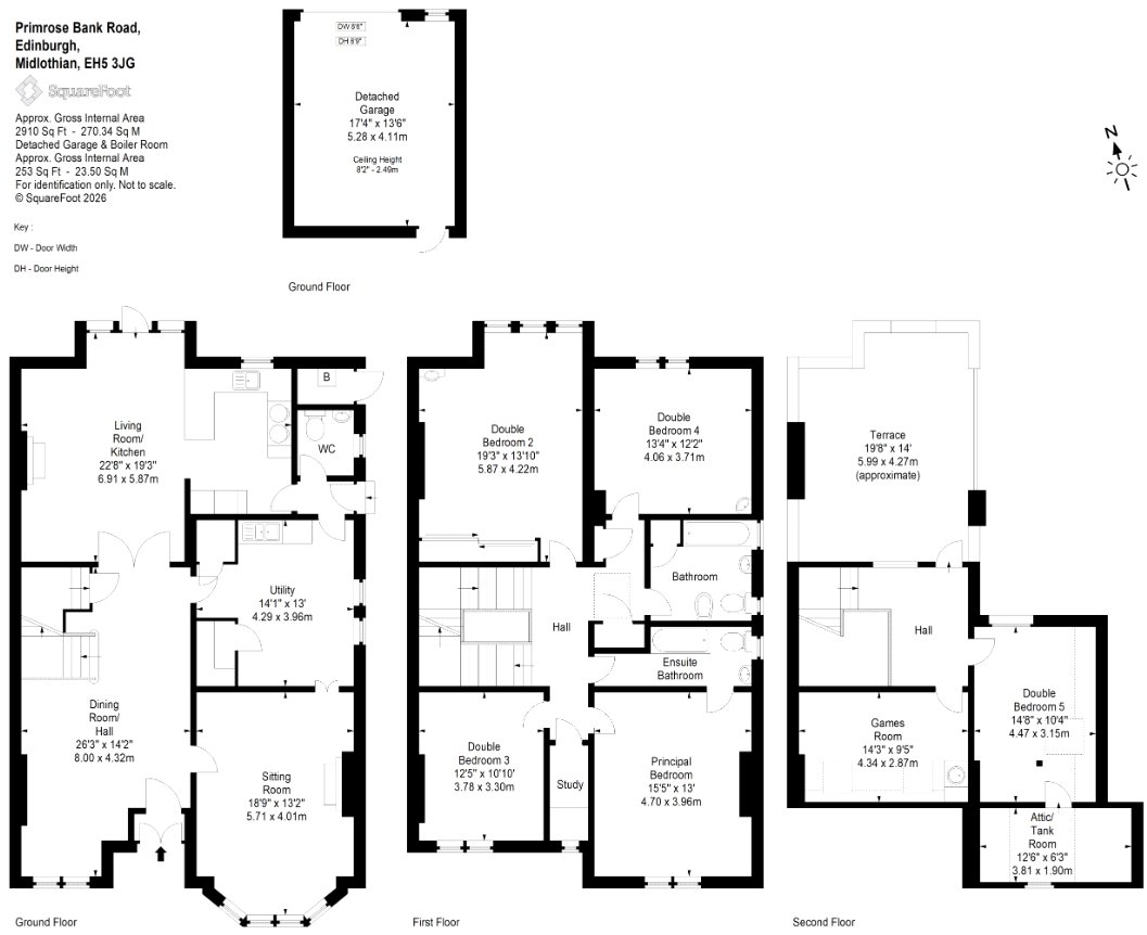
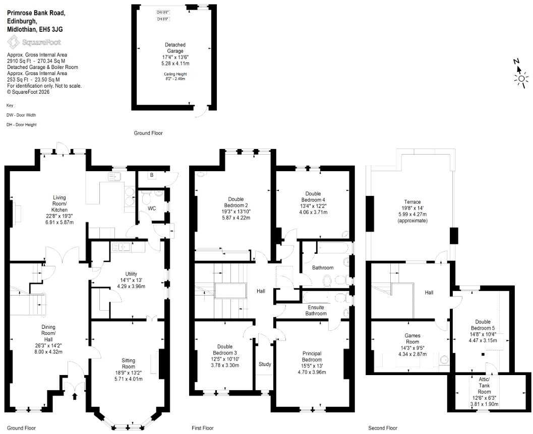
2,910 sq.ft
Private Garden
Property Description
A handsome semi-detached villa (built 1926) of considerable character, this impressive red brick-built home extends to almost 3,000 sq ft and offers beautifully proportioned accommodation over three levels. Occupying an elevated position, the property enjoys spectacular, uninterrupted views to the rear across the Firth of Forth and towards Fife, a rare and highly sought-after feature.
This is a much-loved family home that has been conscientiously maintained over the past 40 years (with hard-wood double glazing throughout), now offering an exciting opportunity for a new owner to undertake a degree of internal upgrading and create a superb contemporary home within a fine period shell. The house retains a wealth of original charm, including ornate woodwork, panelling, and fireplaces, while offering flexible family accommodation suited to modern living.
Externally, there are mature and well-established gardens to both the front and rear - widely admired and beautifully stocked - together with the significant benefit of a large garage accessed via a rear lane, an unusual and valuable asset for a property of this type.
More Details
EPC: D
Council Tax Band: G
Tenure: Freehold
Viewing by appointment.
Your home may be repossessed if you do not keep up repayments on your mortgage.
There may be a fee for mortgage advice. The actual amount you pay will depend upon your circumstances. The fee is up to 1% but a typical fee is 0.3% of the amount borrowed.
Similar Properties
Looking To Sell Or Let?
Rettie is one of the most trusted and well-respected names in property. Our unrivalled market knowledge helps people from around the world buy, sell, let and develop property in Scotland and the North East of England - from city apartments and rural cottages to large townhouses and prime country homes, farms and estates. We deal with some of the most prestigious properties on the market, but provide the same exceptional standards of service and value for money to all our clients.
