5 Brighouse Park Gait, Edinburgh, EH4 6QT

Edinburgh, EH4 6QT
Under Offer
Pin View on map

Offers Over £1,250,000

House

Detached House

Bed

6 Bedrooms

Bathroom

5 Bathrooms

Reception

5 Reception Rooms

Size

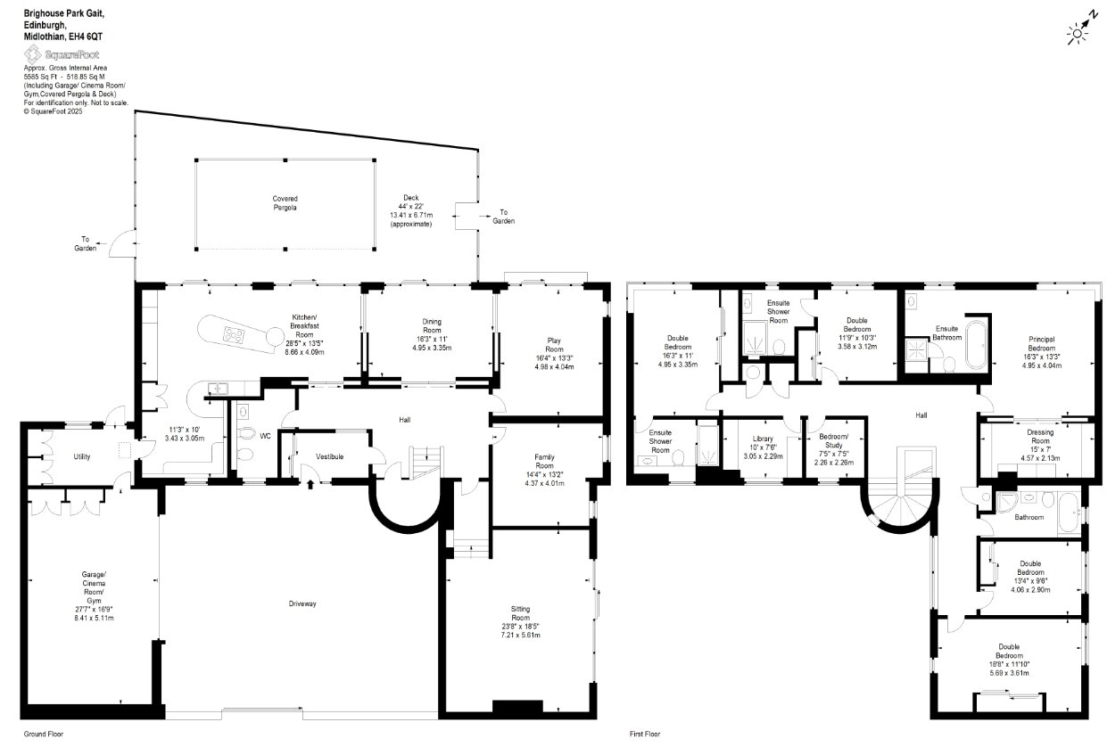
5,585 sq.ft

Tree

Private Garden

Garage

Double Garage

Telephone

Property Description

This substantial and beautifully maintained detached family home enjoys a peaceful position within the exclusive Brighouse Park development in Cramond. The present owners, who are the original occupiers of the property, have lovingly cared for and significantly upgraded the home throughout their tenure - ensuring it remains in modern and excellent condition throughout.

Set over two spacious floors and extending to over 5,500 sq ft, the property offers flexible and well-balanced accommodation ideally suited to contemporary family living and entertaining on a grand scale.

Key Features

  • Only ever owned and occupied by the present owners
  • Thoughtfully upgraded and modernised over time
  • Detached modern villa in pristine condition
  • Spacious and versatile accommodation over two floors
  • High
  • quality fixtures and fittings throughout
  • Driveway parking and landscaped gardens
  • Located in a peaceful, exclusive cul de sac

More Details

EPC: B
Council Tax Band: H
Tenure: Freehold

Viewing by appointment only.

Contact Us

Maz Purdie

Maz Purdie

Senior Sales Negotiator
Max Mills

Max Mills

Director, Residential Sales
Paul Banyard Cert CII (MP)

Paul Banyard Cert CII (MP)

Mortgage & Protection Advisor
Mortgage Calculator
Monthly payments
Please set an interest rate.

Your home may be repossessed if you do not keep up repayments on your mortgage.

There may be a fee for mortgage advice. The actual amount you pay will depend upon your circumstances. The fee is up to 1% but a typical fee is 0.3% of the amount borrowed.

Tax Calculator
LBTT calculator for properties purchased in Scotland. Stamp Duty calculator for properties purchased in England.
Land & buildings transaction tax (LBTT)
= £0
New build house with stone and timber cladding

Looking To Sell Or Let?

Rettie is one of the most trusted and well-respected names in property. Our unrivalled market knowledge helps people from around the world buy, sell, let and develop property in Scotland and the North East of England - from city apartments and rural cottages to large townhouses and prime country homes, farms and estates. We deal with some of the most prestigious properties on the market, but provide the same exceptional standards of service and value for money to all our clients.