Property Description
Set on a peaceful residential street in sought-after Ravelston, 14 Blinkbonny Gardens is an attractive and deceptively spacious 1930s detached bungalow that has been thoughtfully extended and upgraded to offer generous, flexible accommodation across two levels.
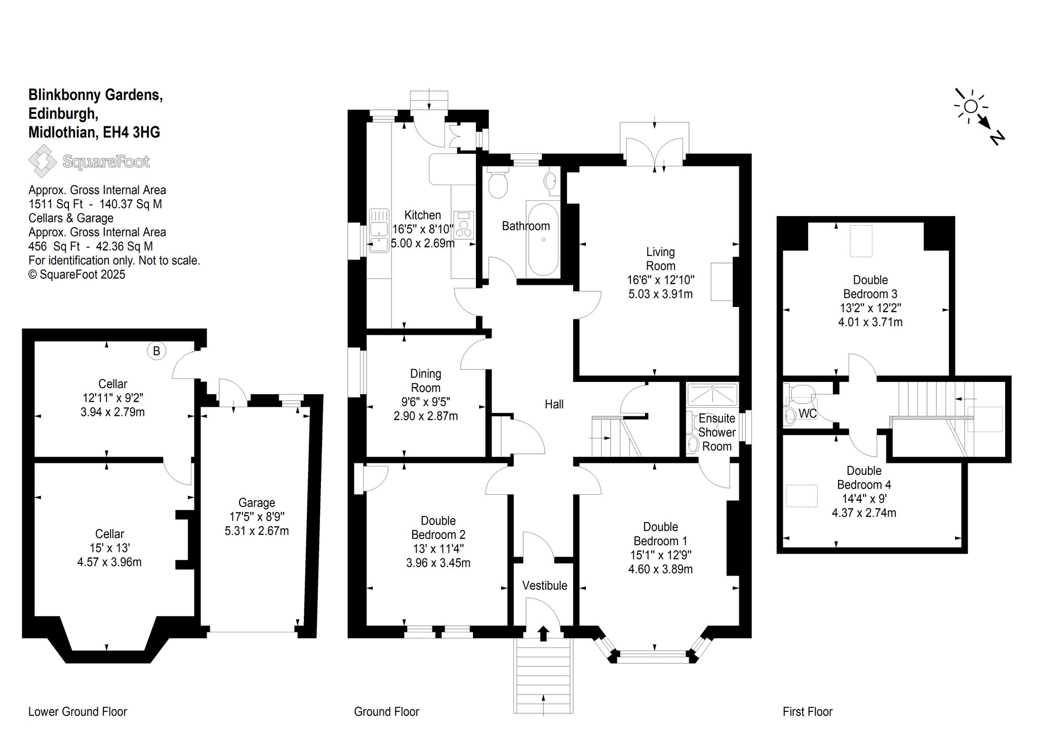
The house extends to around 1,511 square feet and is complemented by an immaculate private garden to the rear, a single garage, driveway parking, and a substantial cellar space of almost 500 square feet - ideal for storage and ease of maintenance.
More Details
EPC: D
Council Tax Band: G
Tenure: Freehold
Viewing by appointment only.
Your home may be repossessed if you do not keep up repayments on your mortgage. There may be a fee for mortgage advice. The actual amount you pay will depend upon your circumstances.
Similar Properties
Looking To Sell Or Let?
Rettie is one of the most trusted and well-respected names in property. Our unrivalled market knowledge helps people from around the world buy, sell, let and develop property in Scotland and the North East of England - from city apartments and rural cottages to large townhouses and prime country homes, farms and estates. We deal with some of the most prestigious properties on the market, but provide the same exceptional standards of service and value for money to all our clients.

