5 Milton Road East, Edinburgh, Midlothian, EH15 2ND
Property Description
A rare opportunity to acquire a uniquely designed, beautifully maintained and substantial four bedroom detached family home situated in the area of Joppa, adjacent to cosmopolitan Portobello.
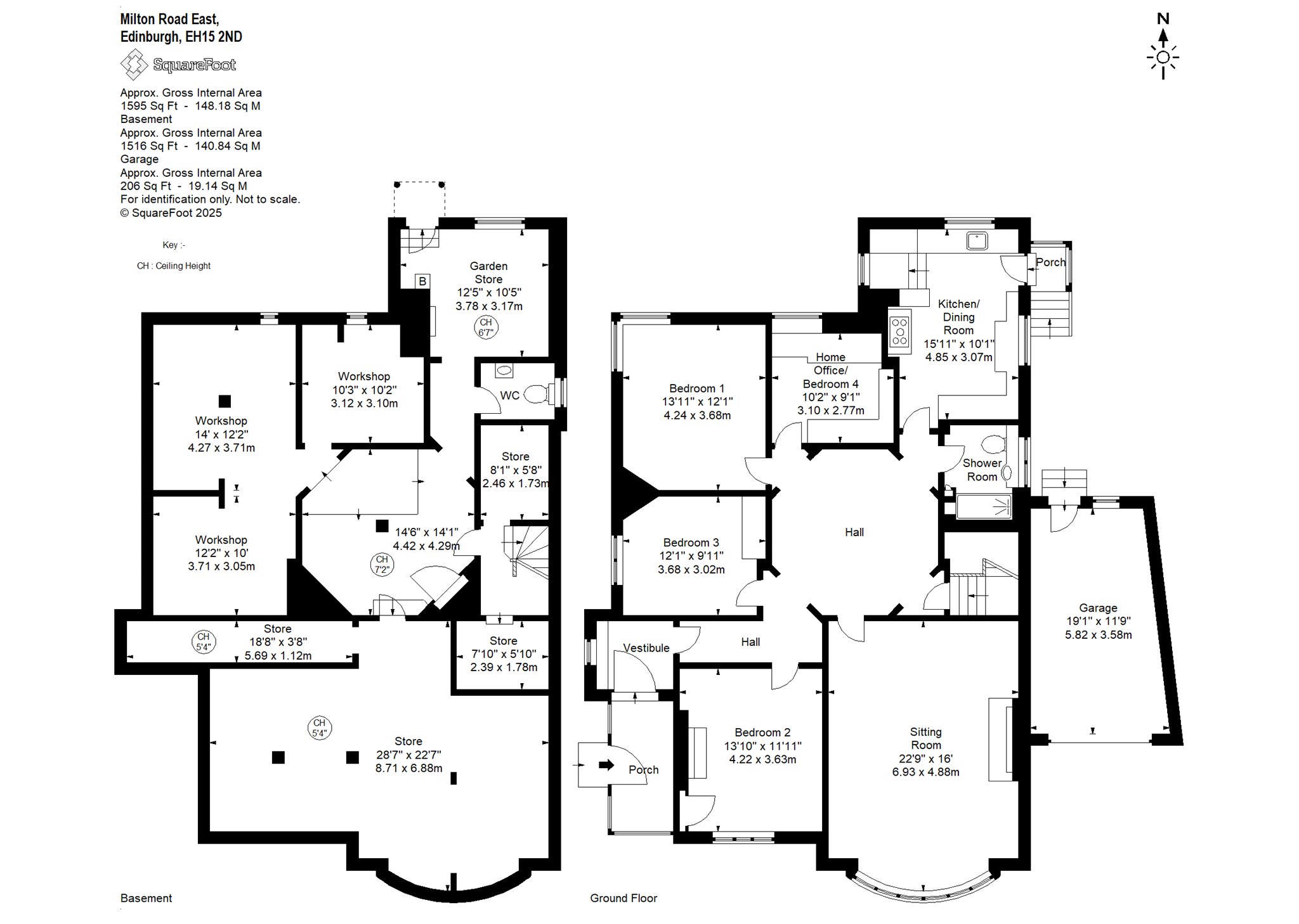
5 Milton Road East offers extensive living space seamlessly blending classic character with thoughtful modern enhancements. With a gross internal area exceeding 3,000 sq ft (including a large basement and garage), this unique home benefits from a mature garden, dual driveway, and elevated views over the Firth of Forth to the Fife coastline.
The grand entrance porch opens into a bright vestibule and hexagonal central hallway, showcasing classic design features such as a stunning terrazzo floor, intricate door design, and an elegant cupola that draws natural light into the heart of the home - this can also be used as a dining area for special occasions. To the front of the property, the sitting room features generous proportions, a multi-fuel stove, beautiful bay window, solid wooden varnished flooring and original detailing. The kitchen/dining room to the rear is a true centrepiece – ideal for entertaining, with bespoke shaker-style kitchen units, polished granite worktops, and direct access to a sunny patio ideal for morning coffee. Three spacious double bedrooms are well-positioned, with the principal bedroom benefiting from a dual aspect, abundant natural light, and breathtaking views over the Firth of Forth. An additional home office (bedroom 4), perfect for remote working, and a modern shower room with underfloor heating complete the ground floor accommodation.
Accessed via an internal stair, the basement level offers vast flexibility – with three separate workshops and multiple storerooms. The lower ground floor also has direct garden entrance, this space has scope for development subject to the relevant consents.
Externally, the property benefits from two driveways, one with electric gates, garage and a fabulous fully enclosed large mature garden with many well-established shrubs and plants, including fruit trees, vegetable plot and natural habitat areas to encourage wildlife, large lawn and patio areas.
Summary Of Accommodation
Ground Floor
Entrance Porch, Vestibule, Hexagonal Hall, Sitting Room, Dining Kitchen, Three Double Bedrooms, Home Office/Bedroom Four, Shower Room
Lower Ground Floor
Garden Store, Extensive Workshop & Store Space, WC
Outside Space
Two Driveways with Off Street Parking, Garage with Electric Door, Large Landscaped Rear Garden with Direct Access to Joppa Quarry Park
More Details
EPC: D
Council Tax Band: F
Tenure: Freehold
Viewing by appointment.
Your home may be repossessed if you do not keep up repayments on your mortgage. There may be a fee for mortgage advice. The actual amount you pay will depend upon your circumstances.
Similar Properties
Looking To Sell Or Let?
Rettie is one of the most trusted and well-respected names in property. Our unrivalled market knowledge helps people from around the world buy, sell, let and develop property in Scotland and the North East of England - from city apartments and rural cottages to large townhouses and prime country homes, farms and estates. We deal with some of the most prestigious properties on the market, but provide the same exceptional standards of service and value for money to all our clients.
