159 (1f), Colinton Road, Edinburgh, Midlothian, EH14 1BG
Offers Over £650,000
Duplex Apartment
4 Bedrooms
2 Bathrooms
2 Reception Rooms
1,620 sq.ft
Private Garden
On Street/Permit
Property Description
Elegant Double Upper Villa | 4 Bedrooms | Southwest-Facing Garden
Colinton Road presents a beautifully modernised traditional double upper villa that perfectly blends classic period charm with contemporary style. Fully refurbished by the current owners, this exceptionally bright and stylish home offers generous, flexible accommodation ideal for modern family living.
Entered via a shared vestibule, the welcoming hallway and landing are flooded with natural light from an impressive cupola above. The elegant double-aspect sitting room is a wonderful space for relaxation, featuring a large bay window, an additional window for maximum light, an original fireplace, and ornate cornice detailing.
The heart of the home is the stunning open-plan kitchen, dining, and family area—perfect for both everyday living and entertaining. The bespoke kitchen features a large central island and an excellent range of integrated appliances, including a full-height fridge and freezer, oven, microwave, induction hob with extractor, dishwasher, and wine fridge. The adjoining dining and family area enjoys a cosy wood-burning stove and ample space for both dining and seating areas. A versatile fourth bedroom or study and a sleek shower room with a utility cupboard (plumbed for a washer-dryer) complete this level.
Upstairs, the principal bedroom includes a study area and a stylish en-suite bathroom. Bedroom two also benefits from its own study area, alongside a third bedroom and a large, flexible storeroom offering excellent potential.
Outside, the charming southwest-facing garden provides a private sun trap with space for outdoor dining and a useful garden shed. On-street parking is readily available, and there may be an opportunity to purchase a single lock-up garage nearby by separate negotiation
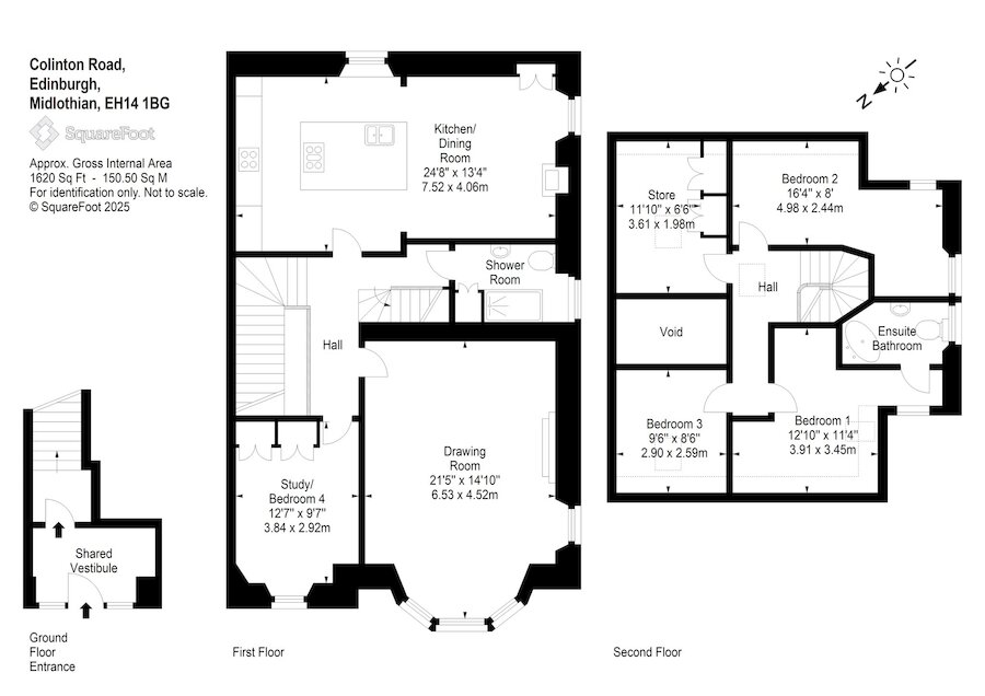
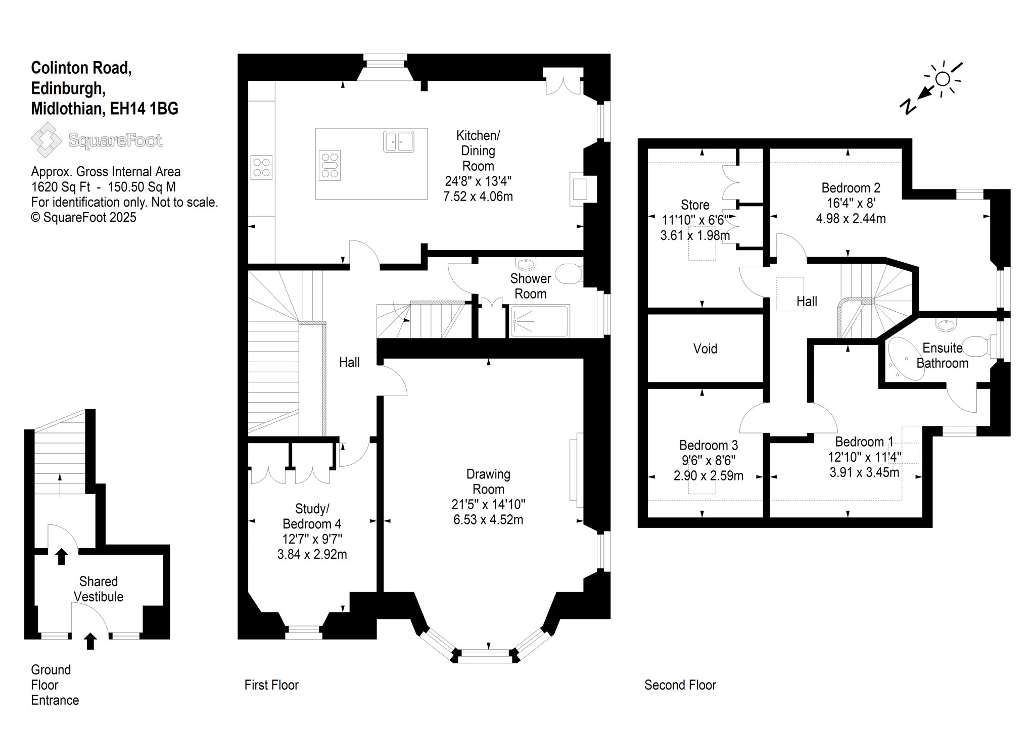
Summary of accommodation
First Floor
Shared Vestibule, Hall, Drawing Room, Kitchen/Dining Room, Study/Bedroom 4, Shower Room
Second Floor
Principal Bedroom with En-suite Bathroom, Two Further Double Bedrooms, Large Walk-in Storeroom
Outside
Southwest Facing Private Garden, On-/street Parking
A Private Lock-up Garage may be available by separate negotiation
More Details
EPC - C
Council Tax Band - F
Tenure - Freehold
Your home may be repossessed if you do not keep up repayments on your mortgage. There may be a fee for mortgage advice. The actual amount you pay will depend upon your circumstances.
Similar Properties
Looking To Sell Or Let?
Rettie is one of the most trusted and well-respected names in property. Our unrivalled market knowledge helps people from around the world buy, sell, let and develop property in Scotland and the North East of England - from city apartments and rural cottages to large townhouses and prime country homes, farms and estates. We deal with some of the most prestigious properties on the market, but provide the same exceptional standards of service and value for money to all our clients.
