3 Brunstane Mill Road, Edinburgh, Midlothian, EH15 2LY
Offers Over £850,000
Detached House
5 Bedrooms
3 Bathrooms
4 Reception Rooms
3,226 sq.ft
Private Garden
Double Garage
Off Street Parking
Property Description
3 Brunstane Mill Road is a substantial and impressive detached family home set within a desirable residential address in Edinburgh. Extending to approximately 3,226 sq ft including a double garage, the property offers generously proportioned and flexible accommodation arranged over two floors, ideally suited to modern family living.
The house enjoys a peaceful setting with private gardens, a large double garage and ample off-street parking, while remaining conveniently located for easy access to the city centre and the excellent amenities available in the surrounding area.
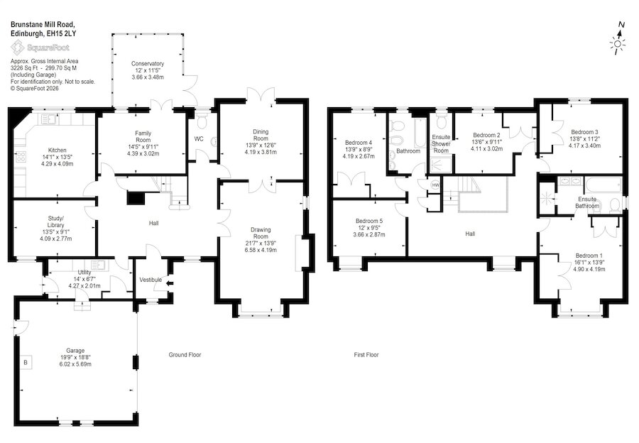
The accommodation on the ground floor begins with a welcoming vestibule leading into a central hall which provides access to the principal reception rooms. The impressive drawing room is a particularly fine space with large windows allowing for excellent natural light and offering an elegant setting for entertaining. A separate dining room provides a more formal space for family meals and gatherings, while the spacious family room sits to the rear of the property and connects directly to a bright conservatory overlooking the garden, creating a relaxed everyday living area. The kitchen is well proportioned and offers good storage and workspace, with the adjoining utility room providing additional practicality and access to the exterior. A study or library offers an ideal space for home working, reading or quiet retreat, and a convenient guest WC completes the ground floor accommodation.
The first floor provides five well-proportioned bedrooms arranged around a central landing. The principal bedroom benefits from a private ensuite bathroom and generous proportions, creating a comfortable and private retreat. Bedroom three also enjoys its own ensuite bathroom, while the remaining bedrooms are served by a family bathroom, ensuring excellent facilities for family life or visiting guests. The layout provides considerable flexibility, with the additional bedrooms easily adaptable for use as guest rooms, home offices or hobby spaces if required.
Externally, the property benefits from a large double garage offering secure parking and significant storage space, complemented by a private driveway that provides additional off-street parking for several vehicles. The surrounding gardens offer an attractive outdoor setting with space for relaxation, entertaining and family use, while also providing privacy from neighbouring properties.
Summary Of Accommodation
Ground Floor
Entrance Vestibule, Hallway, Drawing Room, Dining Room, Family Room, Kitchen, Study, Utility, Conservatory, W.C
Second Floor
Principal Bedroom with Ensuite Bathroom, Bedroom Two with Ensuite Shower Room, Bedroom Three, Bedroom Four, Bedroom Five, Family Bathroom.
Externally
Double Garage, Off-Street Parking to the Front, Rear Garden.
More Details
Tenure - Freehold
Council Tax - H
EPC - C
Your home may be repossessed if you do not keep up repayments on your mortgage.
There may be a fee for mortgage advice. The actual amount you pay will depend upon your circumstances. The fee is up to 1% but a typical fee is 0.3% of the amount borrowed.
Similar Properties
Looking To Sell Or Let?
Rettie is one of the most trusted and well-respected names in property. Our unrivalled market knowledge helps people from around the world buy, sell, let and develop property in Scotland and the North East of England - from city apartments and rural cottages to large townhouses and prime country homes, farms and estates. We deal with some of the most prestigious properties on the market, but provide the same exceptional standards of service and value for money to all our clients.
