Offers Over £750,000
Terraced House
4 Bedrooms
3 Bathrooms
1 Reception Room
1,733 sq.ft
Private Garden
Garage
Off Street Parking
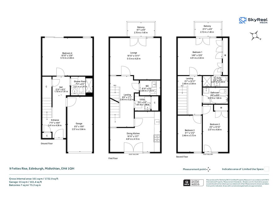
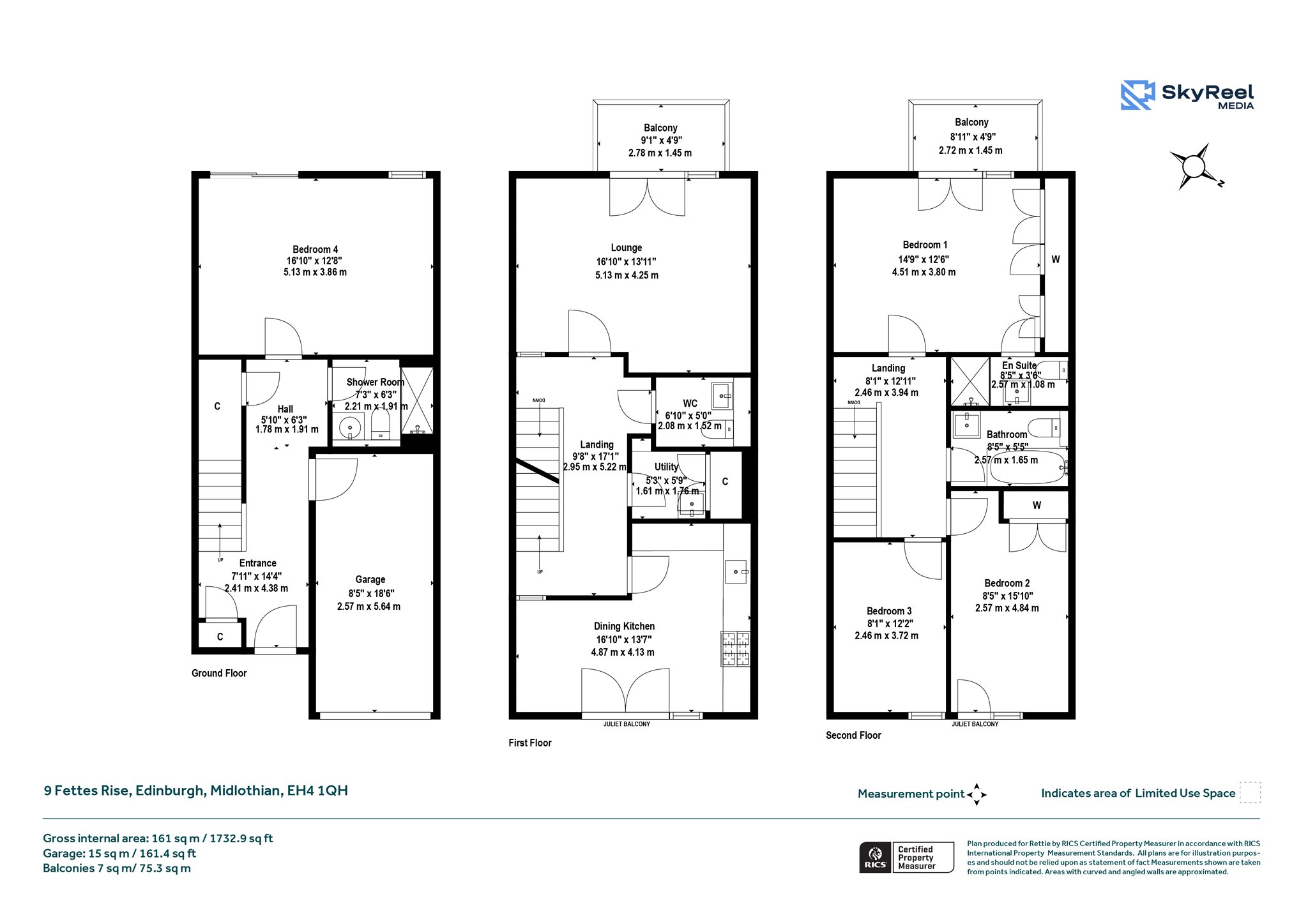
Property Description
An impressive four-bedroom, three-storey terraced townhouse with private garden, balcony spaces, garage and driveway parking, forming part of the highly regarded Fettes Rise development.
Presented in excellent condition throughout, this superb family home offers bright, spacious and flexible accommodation extending to approximately 161 sq m, thoughtfully arranged over three levels. Finished in neutral tones, the property is ready for immediate occupation and perfectly suited to modern family living.
The ground floor comprises a welcoming entrance hallway with useful storage, a generous double bedroom ideal for guests or home working, and a contemporary shower room. Internal access leads directly to the integral garage, providing excellent convenience and additional storage.
On the first floor, the heart of the home is the stylish dining kitchen, offering ample space for family meals and entertaining, with doors opening to a Juliet balcony. A separate utility room and WC add practicality. To the rear, a bright and spacious lounge benefits from direct access to a private balcony, creating an ideal setting for relaxing or entertaining.
The second floor hosts three further well-proportioned bedrooms, including a generous principal bedroom with built-in wardrobes, en-suite shower room and access to a private balcony. The remaining bedrooms are served by a modern family bathroom, completing the upper accommodation.
Externally, the property enjoys a private garden, perfect for outdoor dining and family use. A single garage and driveway provide valuable off-street parking
Summary Of Accommodation
Ground Floor
Entrance vestibule; Hall; Family room/bedroom 4 leading out to garden; Shower room.
First Floor
Landing; Lounge with French doors leading out to balcony; Dining kitchen with French doors opening on to Juliet balcony; Boxroom; WC.
Second Floor
Landing; Principal bedroom with double fitted wardrobes, balcony and ensuite shower room; Two further double bedrooms; Family bathroom.
More Details
Tenure - Freehold
Council Tax: G
EPC: B
Your home may be repossessed if you do not keep up repayments on your mortgage.
There may be a fee for mortgage advice. The actual amount you pay will depend upon your circumstances. The fee is up to 1% but a typical fee is 0.3% of the amount borrowed.
Similar Properties
Looking To Sell Or Let?
Rettie is one of the most trusted and well-respected names in property. Our unrivalled market knowledge helps people from around the world buy, sell, let and develop property in Scotland and the North East of England - from city apartments and rural cottages to large townhouses and prime country homes, farms and estates. We deal with some of the most prestigious properties on the market, but provide the same exceptional standards of service and value for money to all our clients.
