The New House, Dundonachie, Dunkeld, Perthshire, PH8 0DX

Dundonachie, Dunkeld, Perthshire, PH8 0DX
Sold
Pin View on map

Offers Over £695,000

House

Detached House

Bed

5 Bedrooms

Bathroom

3 Bathrooms

Reception

2 Reception Rooms

Tree

Private Garden

Telephone

Property Description

An architect-designed, contemporary home in an idyllic and elevated woodland setting, on the edge of the Tay Forest Park and minutes from the popular town of Dunkeld.

Under construction by an experienced local developer, The New House at Dundonachie will offer approximately 2583 sq. ft. of contemporary living accommodation, comprising the following:

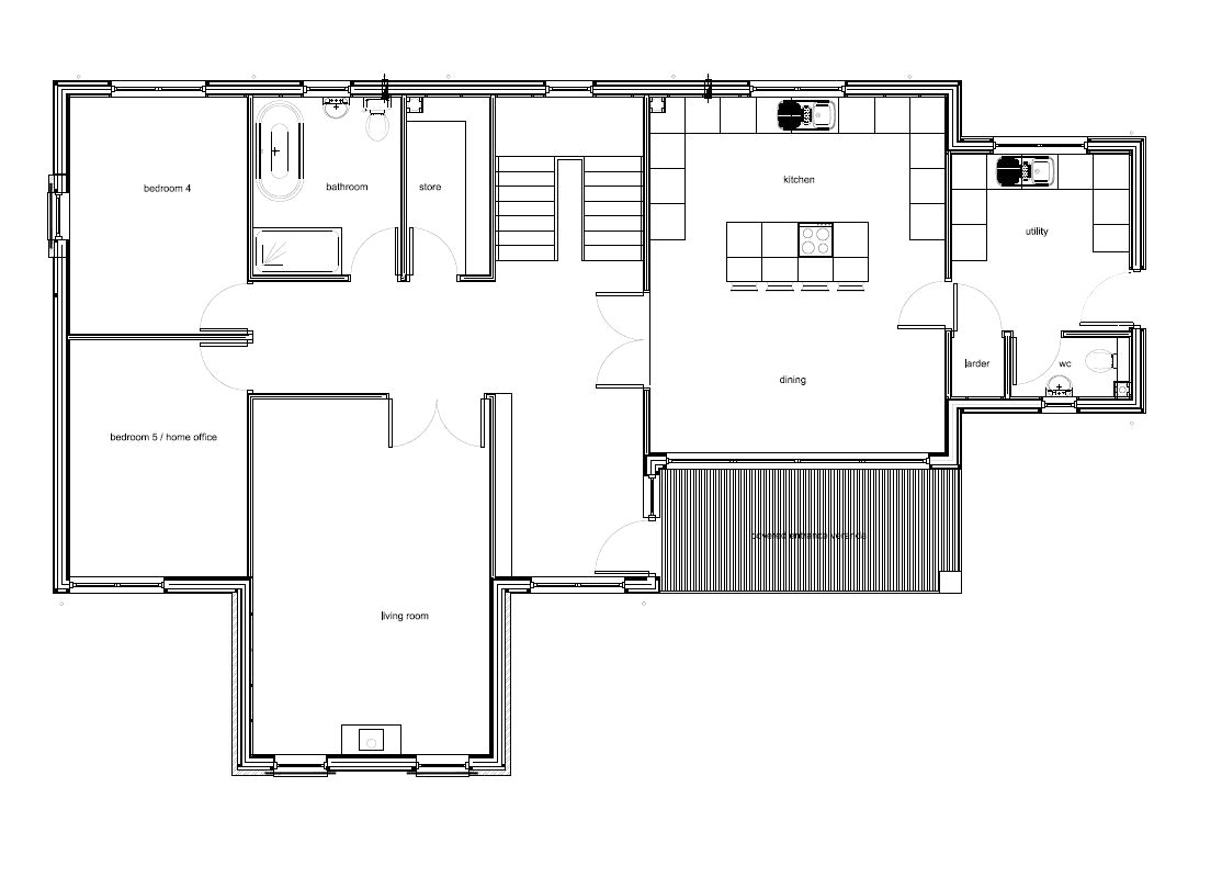
Ground Floor: Hall, Sitting Room, Kitchen/Dining Room, Double Bedroom 4, Double Bedroom 5/Home Office, Bathroom, Utility Room with adjoining Pantry and Cloakroom/WC, and Store/Plant Room.

First Floor: Upper Hall, Library, Principal Bedroom with en suite Bathroom and Dressing Room, two further Double Bedrooms, Family Bathroom and Linen Cupboard.

Exterior: Plot extending to approximately 0.33 acres. Driveway and detached double garage with electric door and power. Garden to be landscaped with split level areas, accented by external lighting and paths, an elevated alfresco dining area or space for hot tub to the rear of the house, and timber fencing to property boundaries.

Dunkeld 2 miles (3 km); Perth 15 miles (25 km); Edinburgh City Centre 60 miles (97 km); Glasgow City Centre 72 miles (116 km).

(All distances are approximate).

The New House at Dundonachie has been designed by the well-regarded Chartered firm, Jon Frullani Architects, and
construction on the house is underway by an active local developer, operating as Care Construction Dunkeld Ltd. At
the time of publication, it is anticipated that the build will completed before the end of 2023.

The house has been designed with deference to the elevation and gradient of the plot, which is accessed off the A822,via a shared private driveway, and enjoys charming views through the surrounding woodland canopy. The proposed one-and-a-half storey home has a covered verandah, as well as a generous fenestration, featuring concertina doors and tall windows. The Perth & Kinross Council’s Planning Reference Number for the planned home is 21/00316/FLL.

Further specification can be found in sales brochure.

More Details

Tenure - Freehold.
Council Tax Band - TBC

Contact Us

Alastair Houlden MRICS

Alastair Houlden MRICS

Director of Country House Sales
Paul Banyard Cert CII (MP)

Paul Banyard Cert CII (MP)

Mortgage & Protection Advisor
Mortgage Calculator
Monthly payments
Please set an interest rate.

Your home may be repossessed if you do not keep up repayments on your mortgage.

There may be a fee for mortgage advice. The actual amount you pay will depend upon your circumstances. The fee is up to 1% but a typical fee is 0.3% of the amount borrowed.

Tax Calculator
LBTT calculator for properties purchased in Scotland. Stamp Duty calculator for properties purchased in England.
Land & buildings transaction tax (LBTT)
= £0
New build house with stone and timber cladding

Looking To Sell Or Let?

Rettie is one of the most trusted and well-respected names in property. Our unrivalled market knowledge helps people from around the world buy, sell, let and develop property in Scotland and the North East of England - from city apartments and rural cottages to large townhouses and prime country homes, farms and estates. We deal with some of the most prestigious properties on the market, but provide the same exceptional standards of service and value for money to all our clients.