Property Description
A substantial Grade B Listed country house, which has retained fine period detail and enjoys expansive views over the surrounding countryside.
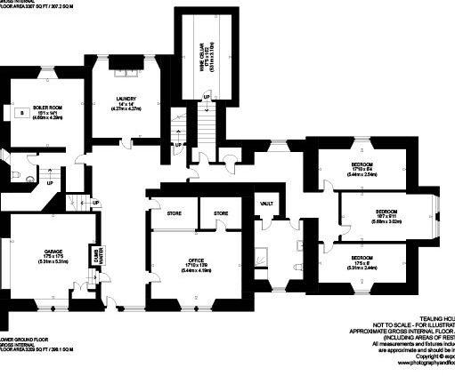
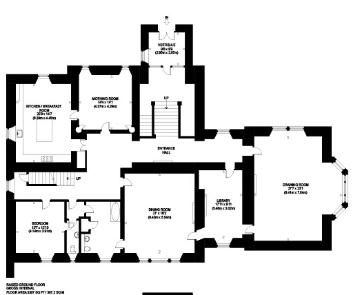
Summary Of Accommodation
Raised Ground Floor: Porch with outer hall and inner hall, drawing room, library, dining room, morning room, kitchen/breakfast room, double bedroom, Jack & Jill bathroom, separate WC.
First Floor: Landing, six double bedrooms, study, shower room, bathroom.
Garden Level: Hall, three bedrooms, shower room, office, laundry room, boiler room, separate WC.
Exterior: The house is accessed via a stone pillared entrance, with a private drive leading to the gravel sweep in front of the house. The grounds, gardens and policies extend to approximately 12.4 acres, including extensive lawns and mature trees such as, Wellingtonia, Beech and Pine.
There are two plots which might be suitable for development subject to obtaining the necessary consents. Garaging, car port, outbuilding and large greenhouse.
Approx. 12.4 acres
More Details
EPC Rating: F
Council Tax Band: H
Tenure: Freehold
Your home may be repossessed if you do not keep up repayments on your mortgage. There may be a fee for mortgage advice. The actual amount you pay will depend upon your circumstances.
Similar Properties
Looking To Sell Or Let?
Rettie is one of the most trusted and well-respected names in property. Our unrivalled market knowledge helps people from around the world buy, sell, let and develop property in Scotland and the North East of England - from city apartments and rural cottages to large townhouses and prime country homes, farms and estates. We deal with some of the most prestigious properties on the market, but provide the same exceptional standards of service and value for money to all our clients.
