The Parsonage, Dunmore Park, Airth, Falkirk, FK2 8LU

Dunmore Park, Airth, Falkirk, FK2 8LU
Pin View on map

Offers Over £1,750,000

House

Detached House

Bed

11 Bedrooms

Reception

5 Reception Rooms

Size

8,574 sq.ft

Plot

About 14.80 Acres

Tree

Private Garden

Telephone

Property Description

An architecturally distinguished country house, forming part of the historic Dunmore Park, set in a spectacular parkland setting, with private grounds extending to approximately 14 acres.

The Parsonage is replete with opportunity for development or reinvention and has been granted full planning permission for its conversion into landmark, luxury Wellness Retreat.

Accommodation Summary

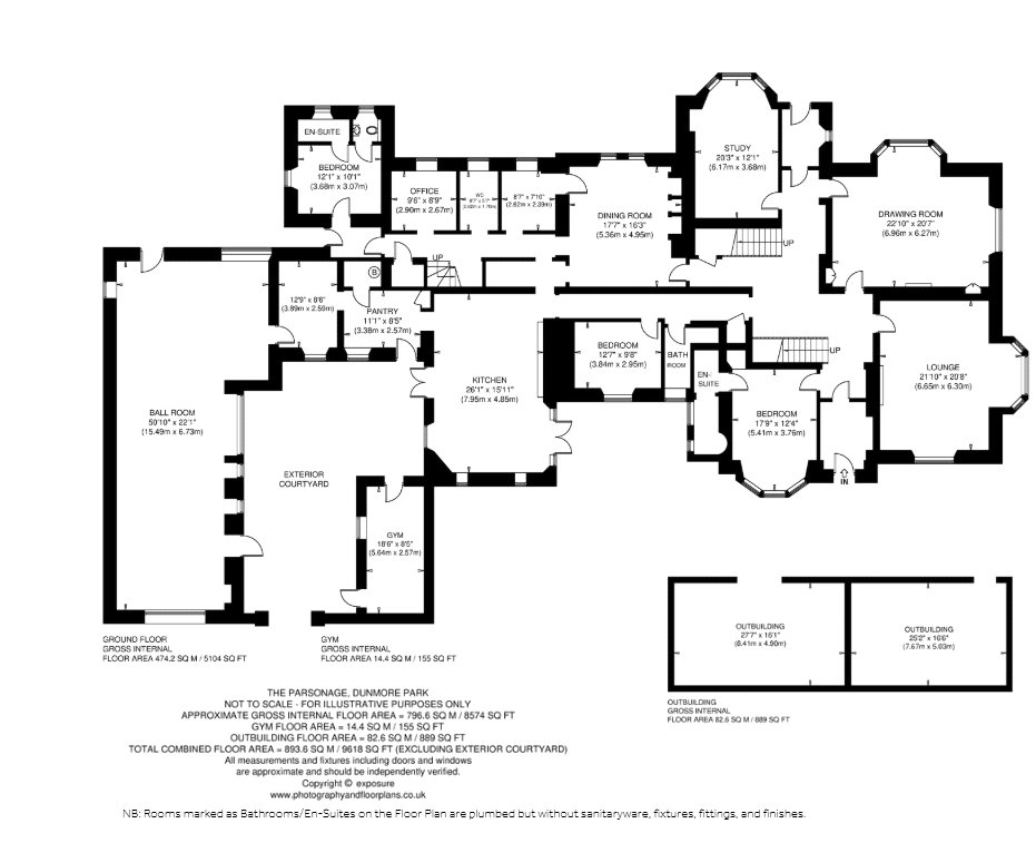
Ground Floor
Entrance & Rear Vestibules, Hall, Drawing Room, Dining Room, Lounge, Study, (former) Kitchen/Living Room and Pantry, Ball Room and Home Gym.

Three Double Bedrooms (one with WC).

Office & Storerooms.

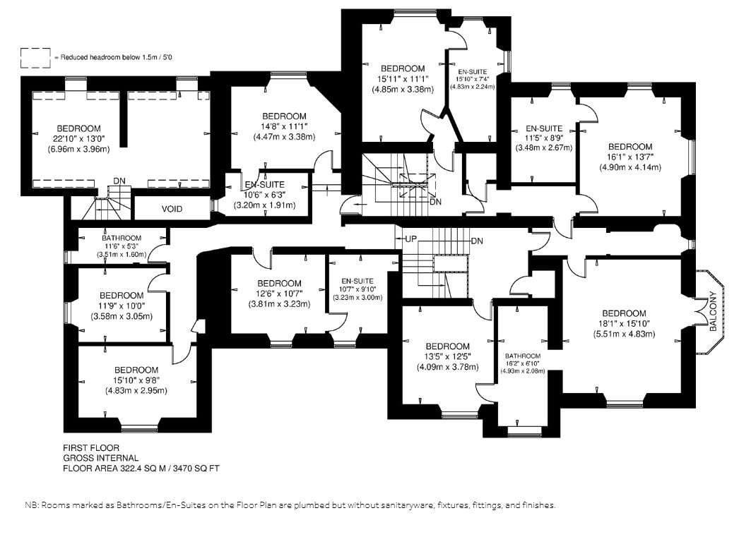
First Floor
Four Double Bedrooms with accompanying rooms for en-suite Bath or Shower Room facilities.

Two Double Bedrooms sharing adjoining room for Jack-and-Jill en-suite Bath/Shower Room.

Double Bedroom 7, 8 and (former) Family Bathroom.

Former Service Bedroom accessed via separate staircase.

Grounds and Outbuildings

Approximately 14.8 acres in total.

The grounds at The Parsonage befit a property of its stature and extend to approximately 14.8 acres, affording the house a wonderful setting and a high level of privacy and amenity.

On approach, a tree-lined driveway passes through stone pillars with wrought iron gates, and sweeps through the parkland setting up to the front of the house, where there is a large gravelled parking area.

Sweeping lawn and parkland grazing sweeps around the north, east, and south of the house and is lent great character by a combination of mature trees and banks of rhododendrons.

The principal, formal garden extends away from the house to the rear, towards a bank of mature woodland set along the western boundardy. It showcases an extensive, paved patio terrrace which sweeps along the western elevation of the house and provides an ideal area for alfresco living and entertaining.

A traditional courtyard provides another sheltered, alfresco living area and can be accessed directly from the kitchen or the former ball room and gym.

To the north west of the house, there is an outbuilding which was previously used as garaging, which could be converted back, or redeveloped to provide stabling or annexe accommodation, subject to necessary consents.

Ochil Hills Retreat Planning Permission:

Planning Reference Number: P/23/0535/FUL

Further planning documentation and plans will
be made available on request.

Tenure - Freehold
EPC Rating - E
Council Tax Band/Rateable Value - TBC

More Details

Situation: Private Garden
Council Tax Band: Contact branch
Tenure: Freehold

Request More Details

Alastair Houlden MRICS

Alastair Houlden MRICS

Director of Country House Sales
Paul Banyard Cert CII (MP)

Paul Banyard Cert CII (MP)

Mortgage & Protection Advisor
Joanna Tinson

Joanna Tinson

Senior Sales Negotiator
Mortgage Calculator
Monthly payments
Please set an interest rate.

Your home may be repossessed if you do not keep up repayments on your mortgage.

There may be a fee for mortgage advice. The actual amount you pay will depend upon your circumstances. The fee is up to 1% but a typical fee is 0.3% of the amount borrowed.

Tax Calculator
LBTT calculator for properties purchased in Scotland. Stamp Duty calculator for properties purchased in England.
Land & buildings transaction tax (LBTT)
= £0
New build house with stone and timber cladding

Looking To Sell Or Let?

Rettie is one of the most trusted and well-respected names in property. Our unrivalled market knowledge helps people from around the world buy, sell, let and develop property in Scotland and the North East of England - from city apartments and rural cottages to large townhouses and prime country homes, farms and estates. We deal with some of the most prestigious properties on the market, but provide the same exceptional standards of service and value for money to all our clients.