Smithy Cottage, Luncarty, Perth, Perth and Kinross, PH1 3JA

Luncarty, Perth, Perth and Kinross, PH1 3JA
Sold
Pin View on map

Offers Over £590,000

House

Detached House

Bed

4 Bedrooms

Bathroom

2 Bathrooms

Reception

2 Reception Rooms

Size

1,938 sq.ft

Plot

About 0.80 Acres

Tree

Private Garden

Telephone

Property Description

Timeless country living within a tastefully refurbished, converted cottage, which commands an open outlook across undulating rural scenery and is accompanied by a pair of versatile, traditional outbuildings.

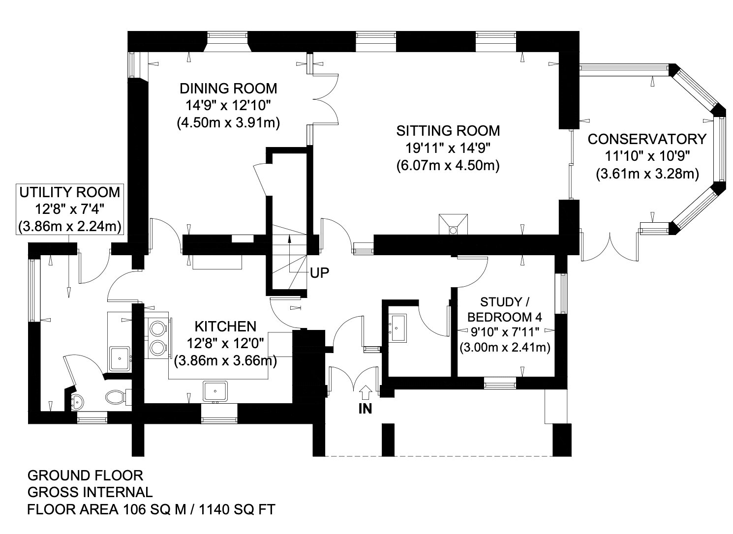
Accomodation

Ground Floor: Entrance Vestibule, Hall, Sitting Room, Dining Room, Conservatory, Kitchen/Breakfast Room, Study/Bedroom 4, Utility Room, WC, and Cloak/Boot Room.

First Floor: Principal Bedroom with en suite Shower Room and Roof Terrace, Two further Double Bedrooms and a Bathroom.

Exterior: Smithy Cottage is ensconced within a mature and charming plot extending to approximately 0.8 acres. It incorporates: a spacious garden which is predominantly laid to lawn; an enclosed lily pond; a decked terrace with direct access via patio doors from the conservatory; a summerhouse; and an expansive driveway area suitable for parking and turning multiple vehicles.

Once thought to have been a blacksmith's forge/workshop, the property has two large, detached steading buildings - a stone-built barn and a brick-built shed.

Approx = 0.8 acres

Council Tax Band: E
EPC Rating: D

More Details

Situation: Private Garden
Council Tax Band: Contact branch
Tenure: Freehold

Contact Us

Alastair Houlden MRICS

Alastair Houlden MRICS

Director of Country House Sales
Joanna Tinson

Joanna Tinson

Senior Sales Negotiator
Paul Banyard Cert CII (MP)

Paul Banyard Cert CII (MP)

Mortgage & Protection Advisor
Mortgage Calculator
Monthly payments
Please set an interest rate.

Your home may be repossessed if you do not keep up repayments on your mortgage.

There may be a fee for mortgage advice. The actual amount you pay will depend upon your circumstances. The fee is up to 1% but a typical fee is 0.3% of the amount borrowed.

Tax Calculator
LBTT calculator for properties purchased in Scotland. Stamp Duty calculator for properties purchased in England.
Land & buildings transaction tax (LBTT)
= £0
New build house with stone and timber cladding

Looking To Sell Or Let?

Rettie is one of the most trusted and well-respected names in property. Our unrivalled market knowledge helps people from around the world buy, sell, let and develop property in Scotland and the North East of England - from city apartments and rural cottages to large townhouses and prime country homes, farms and estates. We deal with some of the most prestigious properties on the market, but provide the same exceptional standards of service and value for money to all our clients.