Plot at The Oaks, The Oaks, Moneydie, Luncarty, PH1 3HA

The Oaks, Moneydie, Luncarty, PH1 3HA
Under Offer
Pin View on map

Offers Over £145,000

Plot

About 2.10 Acres

Tree

Private Garden

Telephone

Property Description

A charming and established house plot of approximately 2.1 acres, with full planning permission for a statement, architect-designed family home, which is set in a picturesque, semi-rural setting amidst Southern Perthshire countryside.

The plot occupies an enviable position on the edge of the small enclave of five, individually designed homes at The Oaks, some 1.5 miles from the A9 and 6 miles from the centre of Perth.

Plot Summary

Approximately 2.1 acres in total.

Planning Permission for architect-designed, 5-bedroom home extending to approximately TBC sq. ft.

Bounded by a combination of mature trees and hedgerows, providing a high degree of privacy and seclusion.

Incorporating sections of the Schochie and Coldrochie Burns.

Accessed from country lane via stone pillared entrance gates and shared private driveway.

Planning Reference Number: 22/00919/FLL

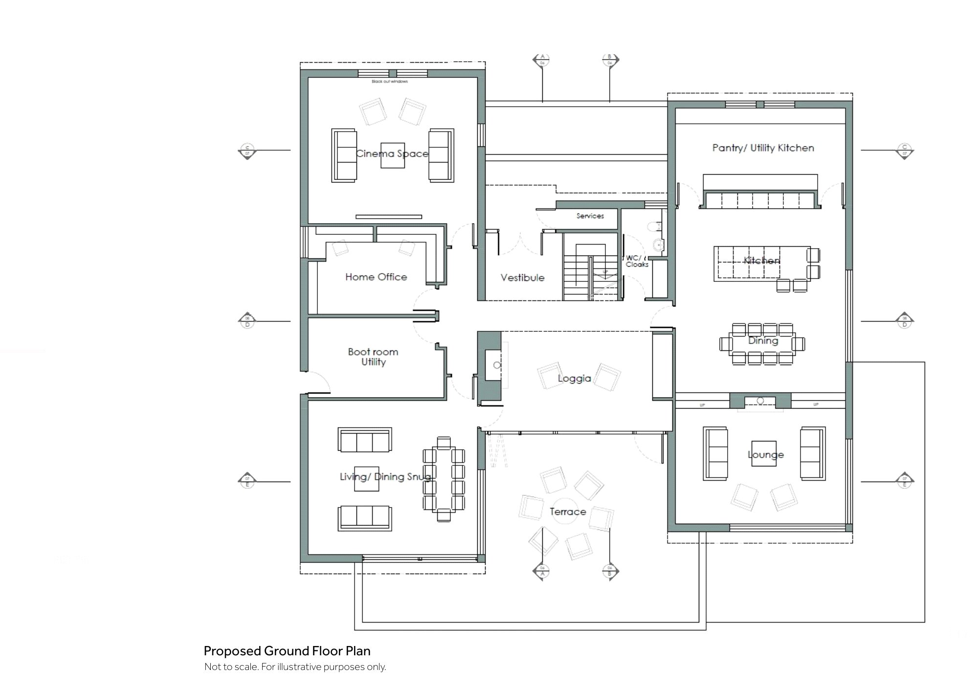
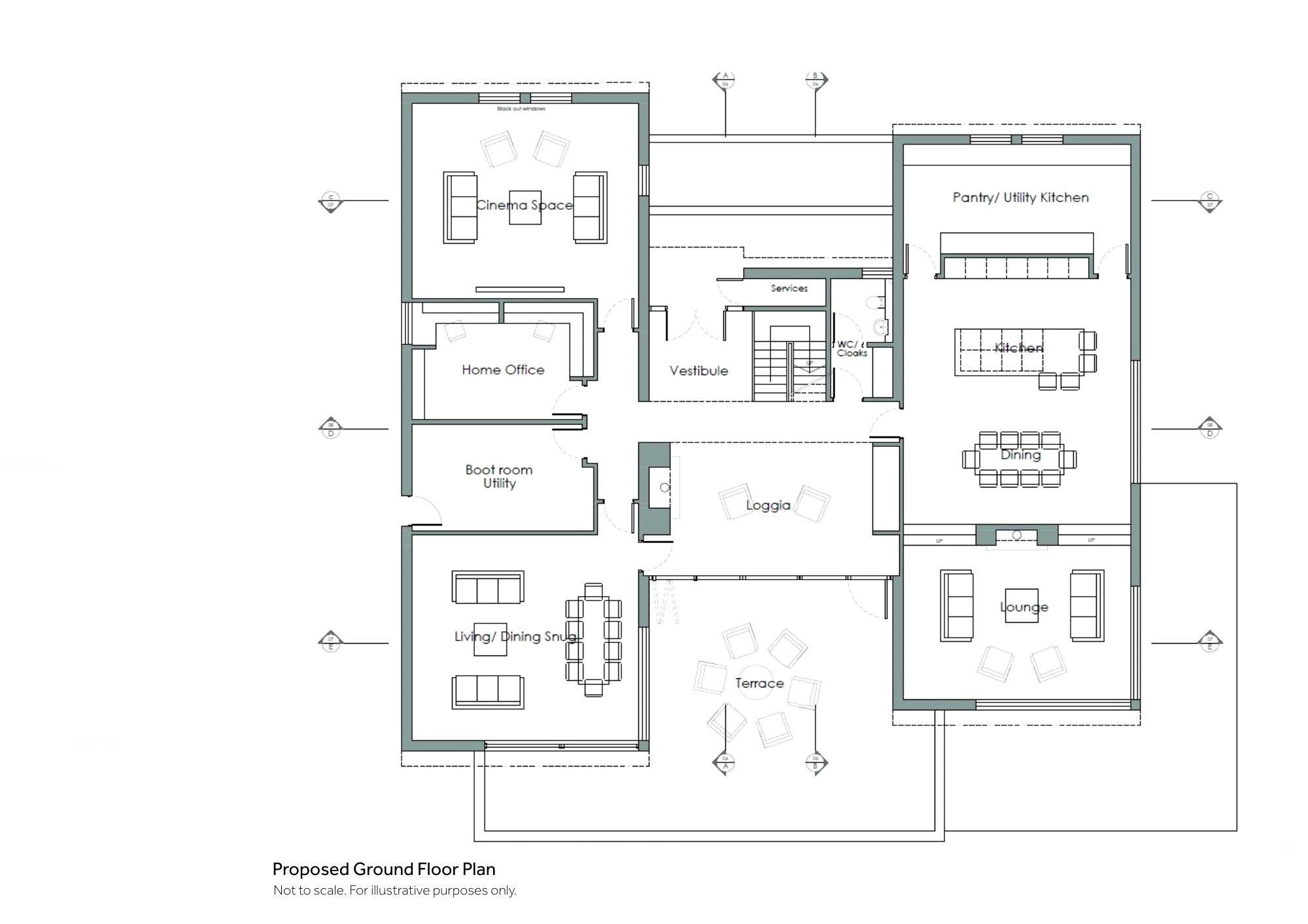
Proposed Accommodation Summary

Ground Floor

Entrance Vestibule and Loggia with Bi-folding doors to Terrace.

Open-plan, split level Kitchen/Dining Room and double-height Sitting Room.

Living Room, Home Office, and Home Cinema.

Pantry and Utility Room, Cloakroom with WC, and Boot Room.

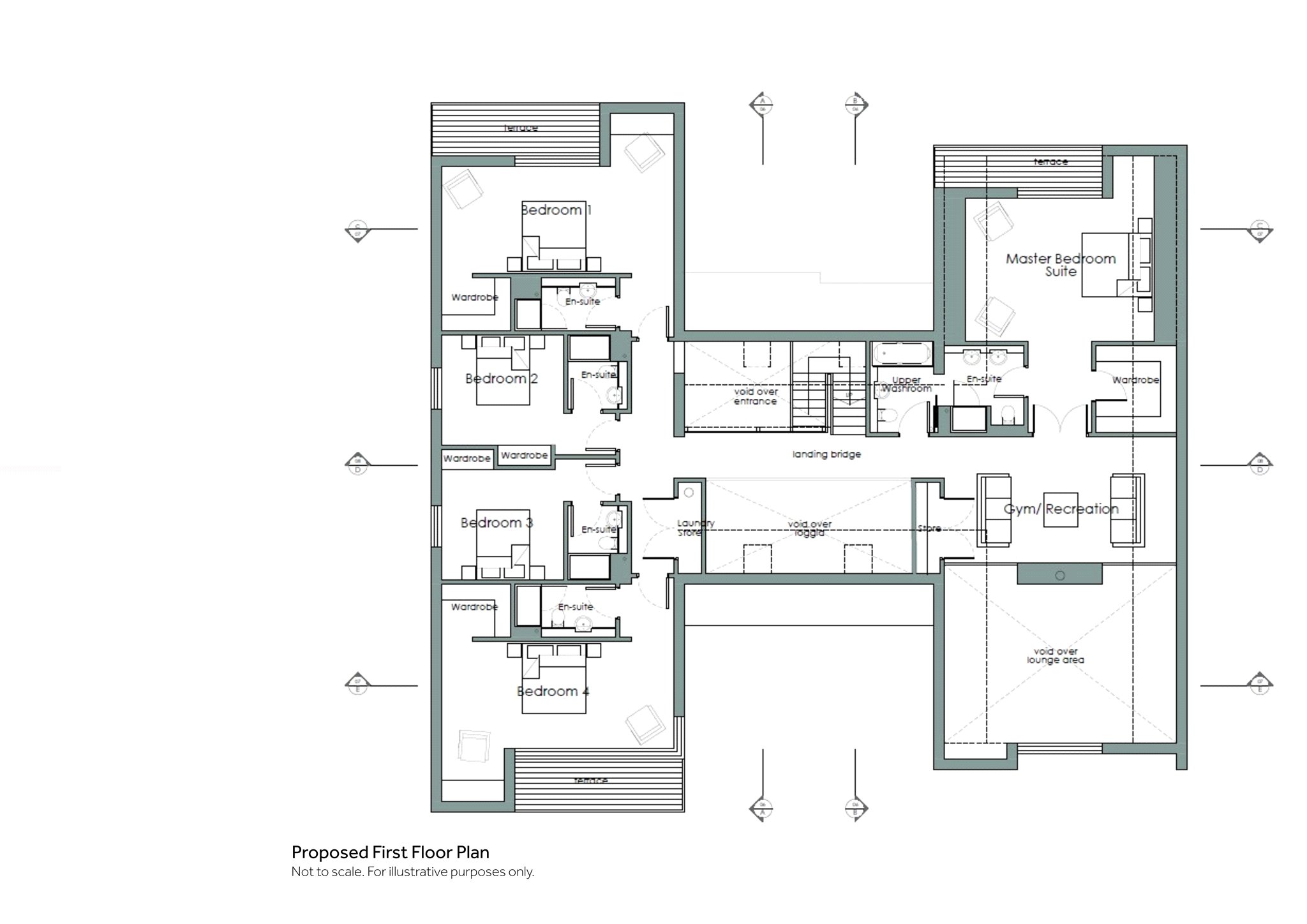
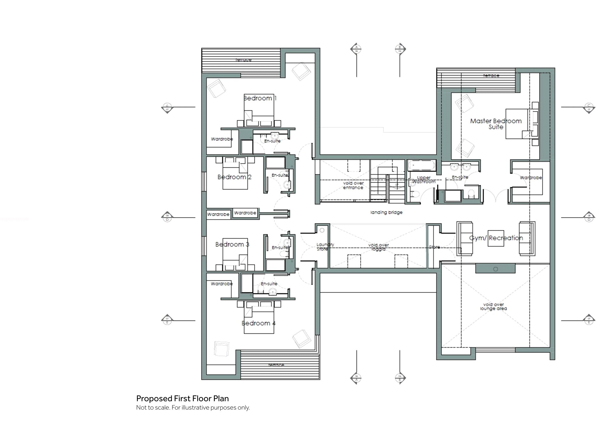
First Floor:

Galleried Landing with space for Lounge.

Principal Bedroom Suite with Dressing Room, Bathroom, and Terrace.

Two further Double Bedrooms with ensuite Shower Rooms, walk-in Wardrobes, and Terraces.

Double Bedroom 4 & 5 with en-suite Shower Rooms.

Generous volume of built-in storage.

Detached Double Garage.

Further information can be found in sales brochure.

More Details

EPC - N/A
Tenure - Freehold
Council Tax Band - TBC

Contact Us

Joanna Tinson

Joanna Tinson

Senior Sales Negotiator
Paul Banyard Cert CII (MP)

Paul Banyard Cert CII (MP)

Mortgage & Protection Advisor
Mortgage Calculator
Monthly payments
Please set an interest rate.

Your home may be repossessed if you do not keep up repayments on your mortgage.

There may be a fee for mortgage advice. The actual amount you pay will depend upon your circumstances. The fee is up to 1% but a typical fee is 0.3% of the amount borrowed.

Tax Calculator
LBTT calculator for properties purchased in Scotland. Stamp Duty calculator for properties purchased in England.
Land & buildings transaction tax (LBTT)
= £0
New build house with stone and timber cladding

Looking To Sell Or Let?

Rettie is one of the most trusted and well-respected names in property. Our unrivalled market knowledge helps people from around the world buy, sell, let and develop property in Scotland and the North East of England - from city apartments and rural cottages to large townhouses and prime country homes, farms and estates. We deal with some of the most prestigious properties on the market, but provide the same exceptional standards of service and value for money to all our clients.