Muir House, Carnock Road, Dunfermline, KY12 9NU

Carnock Road, Dunfermline, KY12 9NU
Sold
Pin View on map

Offers Over £675,000

House

Detached House

Bed

4 Bedrooms

Bathroom

2 Bathrooms

Reception

3 Reception Rooms

Plot

About 4.74 Acres

Tree

Private Garden

Garage

Garage

Parking

Off Street Parking

Telephone

Property Description

An immaculately refurbished and handsomely proportioned period home, set in approximately 4.74 acres of grounds on the periphery of historic Dunfermline.

Muir House occupies an enviable, edge-of-village style setting and is set apart by its well-appointed equestrian facilities and uninterrupted outlook to the South over open countryside.

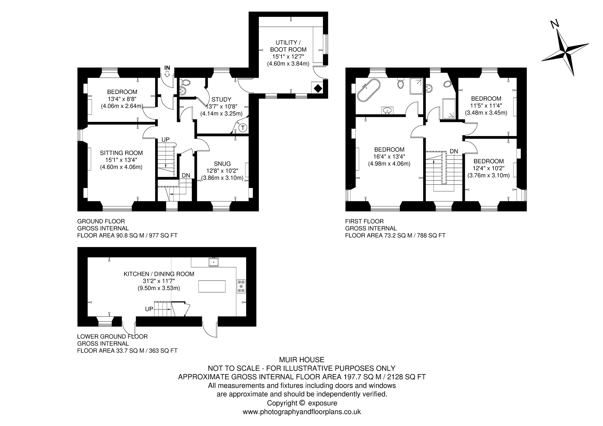
Accommodation

Entrance Vestibule and Hall.

Sitting Room, Family Room, and Study.

Open-plan Kitchen/Dining/Living Room with access to garden.

Principal Bedroom with en-suite Bathroom, three further Double Bedrooms, and Shower Room.

Utility/Boot Room and WC.

Private grounds extending to approximately 4.74 acres.

Spacious and well-established garden ground featuring a sweeping lawn, a stylish and south-facing patio terrace with a hot tub, a collection of fruit trees, and a colourful array of specimen trees and flowering shrubs.

Extensive block paved driveway for multi-car parking and turning, together with a refurbished garage and a EV charging point.

Purpose-built stable block serviced with power and water, complete with three loose boxes, a wash bay, a feed/hay store, and a secure tack room.

All-weather equestrian arena (25m x 40m) with sand and rubber crumb surface. Enclosed paddock grazing. Access to good local hacking routes.

More Details

EPC Rating - Band D
Tenure - Freehold
Council Tax Band - G

Contact Us

Alastair Houlden MRICS

Alastair Houlden MRICS

Director of Country House Sales
Paul Banyard Cert CII (MP)

Paul Banyard Cert CII (MP)

Mortgage & Protection Advisor
Mortgage Calculator
Monthly payments
Please set an interest rate.

Your home may be repossessed if you do not keep up repayments on your mortgage.

There may be a fee for mortgage advice. The actual amount you pay will depend upon your circumstances. The fee is up to 1% but a typical fee is 0.3% of the amount borrowed.

Tax Calculator
LBTT calculator for properties purchased in Scotland. Stamp Duty calculator for properties purchased in England.
Land & buildings transaction tax (LBTT)
= £0
New build house with stone and timber cladding

Looking To Sell Or Let?

Rettie is one of the most trusted and well-respected names in property. Our unrivalled market knowledge helps people from around the world buy, sell, let and develop property in Scotland and the North East of England - from city apartments and rural cottages to large townhouses and prime country homes, farms and estates. We deal with some of the most prestigious properties on the market, but provide the same exceptional standards of service and value for money to all our clients.